Původní stodolu nahradil moderní dům v tradičním kabátě
Na místě historické stodoly, jež musela být kvůli špatnému stavu zbourána, vnikl rodinný dům, který je moderní a tradiční zároveň. Architektům se podařilo ho výborně zasadit do okolní zástavby a přitom neslevili z moderních technologií.
EARCH.CZ , 30. 1. 2018
Hustá a uzavřená zástavba v centru, nádherná hlavní ulice lemovaná vinnými sklípky a mírný, kopcovitý kraji jsou hlavní charakteristiky vinařské vesnice Auersthal v oblasti Weinviertel. Na okraji obce, sevřená mezi okolními budovami, zůstala stodola typická pro zdejší region – bohužel ve špatném stavu. Rodina investora ji tedy nechala strhnout. Na jejím místě vznikla novostavba, která ctí propojení s tradicí, ale i vedlejším domem rodičů.
Vlastníci domu s živým zájmem o architekturu měli na stole celou řadu návrhů, včetně např. dřevěné kostky kontrastující s okolím – od těchto vizí však majitelé brzy upustili. Nakonec se rodina rozhodla pro architekta Martina Rührnschopfa, který je znám svým citlivým a ekologickým přístupem k okolí i k architektuře. Ten po důkladné analýze okolí zvolil metodu workshopu „simultanplanning“, která umožňuje zpracování celé řady variant projektu. Tak se podařilo najít řešení, jež je dokonale sladěné s architekturou obce i požadavky majitelů. „Vznikl tak dům, který není ani moderní, studeně působící kostka, ale ani klasické upravené venkovské stavení se zlatými příčkami v oknech a polystyrenovou fasádou,“ doplňuje k tomu architekt.
Novostavba připomíná svým vzhledem původní venkovskou budovu. Je harmonicky zapracována do řady domů a propojena s domem rodičů. Architekt se nechal inspirovat tradičními konstrukčními prvky regionu, jako jsou větrací štěrbiny či posuvná vrata stodoly. Ta umožňují otevřít dům do ulice, či jej naopak uzavřít. Z domu vyzařuje přívětivá jednoduchost, která byla po celá staletí pro region typická a vytvářela jeho kulturní krajinu.
Fasádu orientovanou do zahrady tvoří jedno velké okno umožňující přirozené propojení vnitřního a vnějšího prostředí. Sousední domy navíc chrání tento úsek zahrady před větrem, hlukem i zvědavými kolemjdoucími.
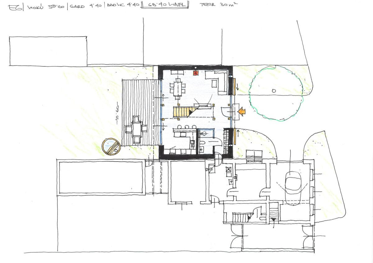
Hlavní část přízemí je věnována prostorné obývací kuchyni s jídelnou. Tu doplňuje šatna a sociální zázemí. Jednotícím prvkem celého prostoru je voskovaná betonová podlaha. V interiéru je dále použito převážně dřevo a černě lakovaná ocel. Vnitřní uspořádání eliminuje schodiště a jiné nevyužité prostory. Umělecky provedené schody jsou zabudovány přímo do obytného prostoru jako jeho vizuální součást; jde o jednoduché schodiště vedoucí do patra. Zde najdeme chodbu, ložnici a koupelnu. Nejvyšší patro je pojato jako otevřený prostor a funguje jako skrýš pro dceru, která si zde může hrát, spát a odpočívat. Jednotlivé prostory nejsou pevně ohraničené stěnami, takže obyvatelé domu na sebe z různých úrovní vidí.
Důležitým aspektem návrhu bylo zajištění dostatečného přísunu denního světla do všech místností. Dostatečné prosvětlení zajišťuje nejen velká svislá prosklená plocha na jižní straně domu, ale také dobře rozmístěná střešní okna VELUX. Díky chytrému využití světla proudícího shora se světlo dostane skrze patro i do středních částí přízemí, které je tak rovnoměrně prosvětlené. Dokonalá interakce mezi svislou prosklenou plochou a střešními okny v kombinaci s bílými stěnami a dřevěnou i betonovou podlahou vytváří fascinující světelnou atmosféru.
Výslovným přáním stavebníka bylo nepoužívat mechanickou ventilaci. Architekt tedy pracoval již od raných fází s ideálním rozmístěním otvorů pro přívod a odtah vzduchu v podobě fasádních a střešních oken. Výsledkem je komínový efekt, který zajišťuje maximální účinnost větrání bez spotřeby energie. Jde o automatický systém přirozené ventilace, který minimalizuje nutnost použití dalších technologií.
Velkoryse pojaté posuvné dveře v přízemí vizuálně propojují vnitřek domu s ulicí. Střešní balkon VELUX umožňuje doširoka otevřít střechu a nabízí výhled do kopcovité krajiny regionu Weinviertel. Za jasných dnů je v dálce vidět i vrchol Schneebergin. Tříčlenná rodina se psem si dům zařídila s použitím starých i nových prvků. Myšlenka života na venkově tedy byla úspěšná díky unikátní kombinaci tradice a inovací uvnitř a stávajících i nových prvků venku.
- Autoři: Martin Rührnschopf
- Země: Rakousko
- Město: Auersthal
- Realizace: 2013
- Užitná plocha: 129.00m2




