Architektura / industriální a technické stavby

Robert Konieczny odlívá z betonu části fasády ostravských jatek

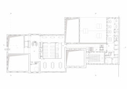
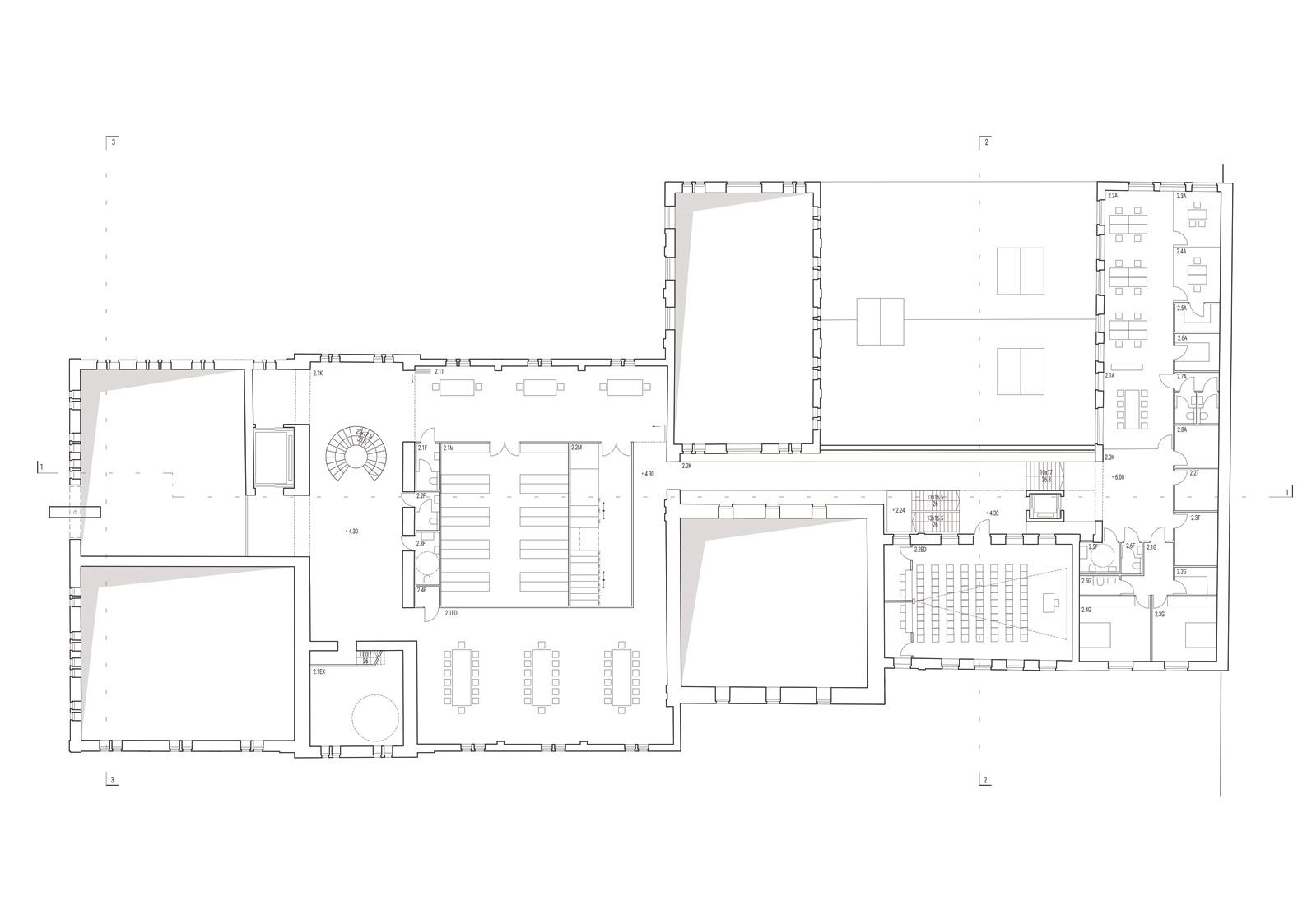
Před měsícem byl vyhlášen vítěz mezinárodní architektonické soutěže na obnovu historického objektu bývalých jatek v Ostravě pro potřeby městské galerie PLATO. Soutěže se účastnil také polský ateliér KWK promes v současnosti stále známějšího architekta Roberta Konieczného. Konieczny patřil mezi pětici napřímo vyzvaných kanceláří a přestože jeho návrh nezvítězil, jedná se o zajímavý přístup k řešení. (Aktualizace 20. 2. 2020: Investor se nedomluvil na podmínkách s vítězem soutěže Petrem Hájkem a k realizaci vyzval studio KWK promes. S rekonstrukcí se má začít letos na jaře.)

Robert Konieczny , 1. 6. 2017

Klíčová slova:

KWK Promes Robert Konieczny

Nabídky práce

Mohlo by vás zajímat

Generální partner
Hlavní partneři