
Rodinný dům od studia 3+1 architekti nabízí panoramatický výhled na okolní krajinu
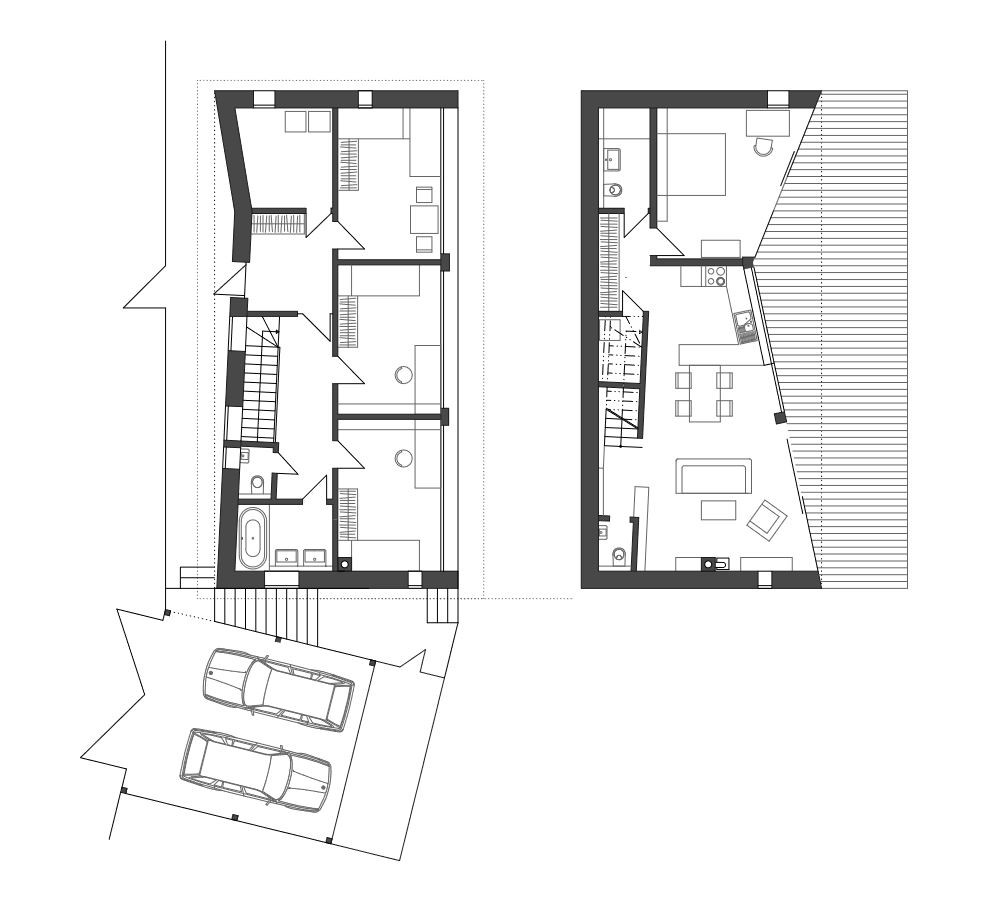
Na hranu prudce svažitého pozemku na okraji města Kočkov umístili architekti ze studia 3+1 dvoupodlažní rodinný dům. Klesání terénu umožňuje dům zpřístupnit exteriéru z obou podlaží – horní funguje směrem do ulice jako hlavní vstup, spodní podlaží se pak pomocí velkých oken otevírá soukromé zahradě. Inspiraci našli architekti ve formě nedalekých zahradních chatek a nad okolní rezidenční zástavbou tak nenápadně „vykukuje“ jednoduchá, dřevem opláštěná hmota poskytující svým uživatelům panoramatický výhled na celé okolí.
3+1 architekti , 18. 12. 2018
- Ateliér: 3+1 architekti
- Země: Česká republika
- Město: Kočkov
- Ulice, číslo: Na Kopečku, 27
- Datum projektu: 2014
- Realizace: 2018
- Užitná plocha: 143.00m2
- Zastavěná plocha: 103.00m2
- Plocha pozemku: 1 020.00m2