Rozsáhlá rekonstrukce zanechala domu jeho původní genius loci
Rodinný dům na pražském Žižkově prošel rozsáhlou rekonstrukcí. Dostal novu přístavbu, nadstavbu, vyměněna byla i všechna okna. Interiér domu navrhla designérka Kamila Jarkovská tak, aby vyhovoval aktivnímu životnímu stylu jeho majitelů a kombinoval v sobě živé barvy i přírodní materiály.
M&T , 14. 12. 2022 / Advertorial
Dům s neobytnou půdou se líbil budoucím majitelům od prvního okamžiku. Duch místa je oslovil natolik, že se dům rozhodli koupit i s vědomím, že je čeká náročná rekonstrukce. O tom, jak rozsáhlé stavební úpravy si nakonec rekonstrukce vyžádá, ale v začátcích neměli potuchy. Návrhu celého interiéru i rozsahu stavebních úprav se ujala designérka Kamila Jarkovská, která na úvod přibližuje přání a vizi majitelů: „Rodina je velmi aktivní, věnuje se sportu, má ráda umění a často přijímá návštěvy přes noc. Zadáním tak byl osobitý interiér, který by odrážel její způsob života a poskytoval zázemí pro bohatý společenský život s rodinou a přáteli. Navrhla jsem proto rozčlenění interiéru tak, aby nabízel různé možnosti společného trávení času u sklenky vína, večeře nebo kina.“
Více k tématu
Propojení interiéru s exteriérem
V rámci rekonstrukce došlo hned k několika výrazným stavebním zásahům. Tím nejzásadnějším bylo zvednutí konstrukce střechy a vytvoření obytného podkroví, včetně výstavby dvou nových vikýřů. K domu byla také na přání majitelů přistavěna zimní zahrada, která hraje roli propojujícího článku mezi interiérem domu a zahradou. Nově zbudovaný prostor slouží k odpočinku i ležérnímu posezení s přáteli, ale samozřejmě také k zazimování rostlin ze zahrady.
Prostor zimní zahrady oddělují od exteriéru velkoformátové HS portály z hliníkových profilů s efektním vizuálním rozčleněním oken od výrobce JIS, který na stavbu dodával i další okenní prvky. „Při rekonstrukci starého domu je dnes naprostou samozřejmostí výměna oken. U této stavby ale bylo specifické to, že jsme se rozhodli všechna okna zvětšit, aby do interiéru proudilo co nejvíc přirozeného světla. Okna jsme zvětšovali jak na výšku, tak i do šířky – u mnohých stavebních otvorů tak bylo nezbytné vyměnit i stavební překlady,“popisuje Kamila Jarkovská.
Tím ale stavební zásahy nekončily. V celém domě bylo třeba udělat novou elektroinstalaci, jelikož ta původní neodpovídala dnešním standardům. V přízemí pak muselo dojít ke stržení několika příček z důvodu jejich špatného stavu a dělala se zde kompletně nová podlaha.

Interiér ozvláštněný kontrasty
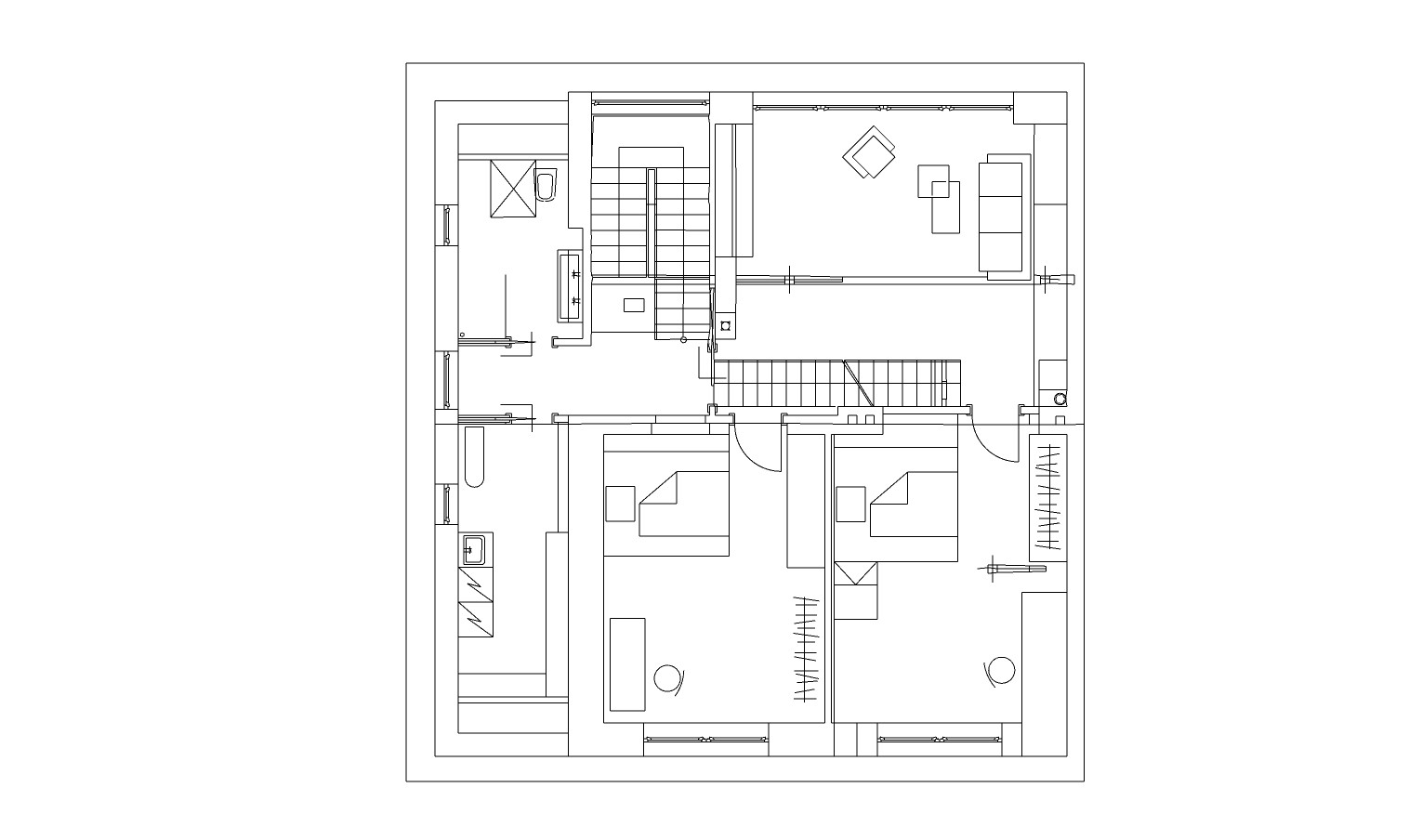
Vstup do domu střeží dvoubarevné bezpečnostní vchodové dveře – zvenčí jsou červené, uvnitř pak černé, ozvláštňují tak předsíň zahalenou z velké části do dřevodekoru. Prostor předsíně je vybavený velkou vestavěnou skříní a naproti situovaným velkoformátovým zrcadlem umístěným mezi dvěma francouzskými okny, které úzký prostor opticky zvětšuje. Předsíň ústí do chodby se schodištěm, jehož orientace byla v rámci rekonstrukce změněna. „Původní schodiště bylo pravotočivé a z chodby vedl pod schodištěm vstup do sklepa. Ten jsme po dohodě s majiteli nově zpřístupnili z kuchyně a schodiště v chodbě jsme celé zbourali, posunuli ho a otočili jeho orientaci – nyní je levotočivé,“ vysvětluje designérka.
Od dalších místností je chodba oddělená interiérovými dveřmi v barvě slonové kosti, které jsou v celém domě osazené kováním od českého výrobce M&T. „Všechny otočné dveře v interiéru jsou vybavené klikami Mini-S, posuvné dveře do stavebních pouzder pak mušlemi MINIMAL. Obě varianty kování jsem pro efektní kontrast s dveřmi zvolila v černém provedení, stejně jako řadu dalších interiérových prvků a doplňků,“ říká Kamila Jarkovská, která kování značky M&T vybrala na základě předchozích pozitivních zkušeností. Roman Ulich, hlavní designér M&T, zvolené modely přibližuje: „Kování Mini-S má velmi příjemný ergonomický tvar, který přesně padne do ruky. Jeho úzká rozeta navíc dopřeje dveřnímu křídlu elegantní, ničím nerušený vzhled. Mušle MINIMAL pak umožňují zasouvacím dveřím zcela zajet do stěny, jelikož jsou zapuštěné do jejich plochy. Otvor díky tomu zůstane plně průchozí,“ a dodává: „Masivní mosaz, která je základovým materiálem obou modelů, jim pak dodává pevnost a dlouhou životnost. K celkové odolnosti ještě přispívá kovová povrchová úprava titan černý mat.“

Praktické vstupy
Dveře u paty schodiště vedou do koupelny zařízené v netradiční barevné kombinaci žluté a černé. Koupelna s toaletou je přístupná nejen z chodby, ale také francouzským oknem ze zahrady, což se osvědčilo zejména v případě pořádání venkovních posezení s rodinou a přáteli a také při saunování. „Ze sudové sauny na zahradě lze tímto francouzským oknem snadno vejít do koupelny a zchladit se pod sprchou,“ vysvětluje designérka. Rodina však tento přístup do koupelny vítá také z pohledu ulehčení každodenního omývání tlapek jejího psího člena.
Druhé otočné dveře v chodbě vedou do ložnice majitelů, která je zařízená v příjemných zemitých odstínech. Posuvné dveře pak chodbu oddělují od hlavního obytného prostoru. Za dveřmi po levé straně se nachází kuchyňský kout složený ze dvou lineárních částí, mezi nimi je situovaný vchod na terasu. Vysoké kuchyňské skříně ve světlém dřevodekoru v sobě pak skrývají vstup do sklepa. Toto sofistikované řešení vymyslela designérka z důvodu usnadnění přístupu k potravinám uchovávaným ve sklepě přímo z kuchyně a zároveň zachování designové čistoty. Naproti kuchyňské pracovní ploše se nachází jídelní stůl obklopený šesti židlemi, které jsou netypicky každá v jiném designu, což interiéru přidává na osobitosti. HS portálem se lze z jídelny dostat do nového přístavku se zimní zahradou. „Nejvýraznějším prvkem centrální místnosti je červená stěna vedoucí přes celou jídelnu i obývací pokoj. Pomyslný předěl mezi nimi vytváří krbová kamna v černém provedení, které velkou červenou plochu efektně pohledově „rozbíjí“ na dvě části,“ popisuje designérka. Obývací pokoj je pak výraznou barvou ohraničený i z protější strany – za pohovkou je stěna téměř černá.

S myšlenkami na budoucnost
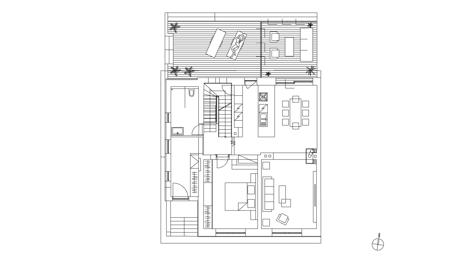
Nově vytvořenému obytnému podkroví, které je přístupné schodištěm z chodby v přízemí, předcházela řada stavebních úprav. „Abychom maximálně využili potenciálu druhého nadzemního podlaží, bylo třeba zvednout konstrukci sedlové střechy. Ke komfortnímu užívání pak přispívají také vikýře,“vysvětluje Kamila Jarkovská. Právě nově vybudovaný vikýř v otevřené místnosti, s opakujícím se motivem červené výmalby vytváří příjemné vzdušné prostředí. Místnost je navržená tak, aby v domě mohlo případně v budoucnu vzniknout dvougenerační bydlení – ve stěně za promítacím plátnem jsou připravené rozvody vody i elektřiny pro vytvoření kuchyňského koutu. Z tohoto otevřeného prostoru pak vedou dveře do dětských pokojů – starší dcery a mladšího syna majitelů, a dále přímé schodiště do třetího nadzemního podlaží. Pod vrcholem střechy se nachází domácí fitness a prostor určený k přenocování návštěv.
Ve druhém patře nechybí ani koupelna, která je situovaná napravo od schodiště a vyvedená v jemných odstínech modré a béžové a doplněná dřevěnými prvky. Naproti koupelně se nachází velká místnost, která slouží mimo jiné jako prádelna.

Živé barvy a přírodní materiály
Celému interiéru dominuje bílá, béžová, černá a červená. Z pohledu materiálů se zde často objevuje dřevo. „Interiér je velmi osobitý. Jeho barevnost je pro zdejší trh netypická a jsem ráda, že klient se nebál navržených barevných kombinací,“ říká designérka Kamila Jarkovská, která dům navrhla v souladu s životním stylem a filozofií FENG SHUI – HAM YU, jíž se zabývá. Výraz celku pak dotvářejí působivá umělecká díla od českých umělců.
Průběh rekonstrukce komplikovala probíhající pandemie, která se odrážela v problémech s dodávkami materiálů i v uzavření obchodů a výrobních firem. Značnou část zařizovacích předmětů bylo nutné vybrat z internetu bez osobní prohlídky. I přes tato úskalí se ale vše podařilo zvládnout a výsledek stojí za to. Navzdory výrazným změnám navíc zůstal genius loci původního domu zachován.
- Autoři: Kamila Jarkovská
- Země: Česká republika
- Město: Praha
- Užitná plocha: 240 m2
- Realizace: 2021