Pražský mezonet získal skandinávský interiér se saunou a zvětšenou terasou

Velkorysý mezonetový byt v šestém patře pražského činžovního domu prošel důslednou rekonstrukcí, která mu vtiskla skandinávskou atmosféru. Současně došlo na podstatné zvětšení terasy, prosklení ložnice i instalaci finské sauny.
M&T , 19. 8. 2022 / Advertorial
Ten správný
Nikdy není brzo na to přizvat si architekta k rekonstrukci nemovitosti. Své o tom vědí majitelé mezonetového bytu ve starém činžovním domě v pražské Letné – ti nejdříve oslovili architektu a až poté koupili byt, který s její pomocí zrekonstruovali ke své spokojenosti. „S klienty jsme si nejdříve ujasnili, co od vysněného budoucího bytu očekávají a jaké na něj mají nároky a požadavky. Tomu jsme následně výběr bytu podřídili,“ říká architektka Hana Novotná z architektonického studia 2MAD.
Rekonstrukce se týkala velkého sto čtyřiceti metrového bytu s terasou – že splňoval přesně to, co od něj majitelé očekávali, dokazuje fakt, že šlo hned o první byt, který spolu s architektkou navštívili. „Než mě klienti oslovili, sami nejdříve absolvovali dvě prohlídky jiných bytů. Vzhledem ale k jejich specifickým požadavkům, které zahrnovaly například umístění sauny, bylo třeba vybírat vhodnou nemovitost s ohledem na technické záležitosti, aby vše bez problémů fungovalo. Proto se nakonec rozhodli obrátit na odbornou pomoc,“ doplňuje architektka.
Více k tématu
Prostor na míru
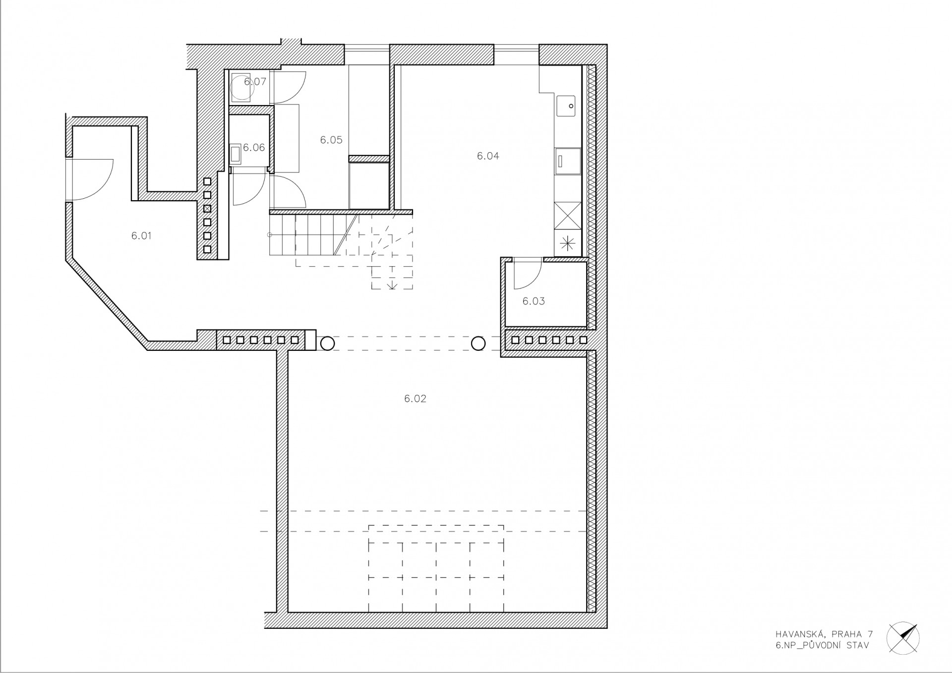
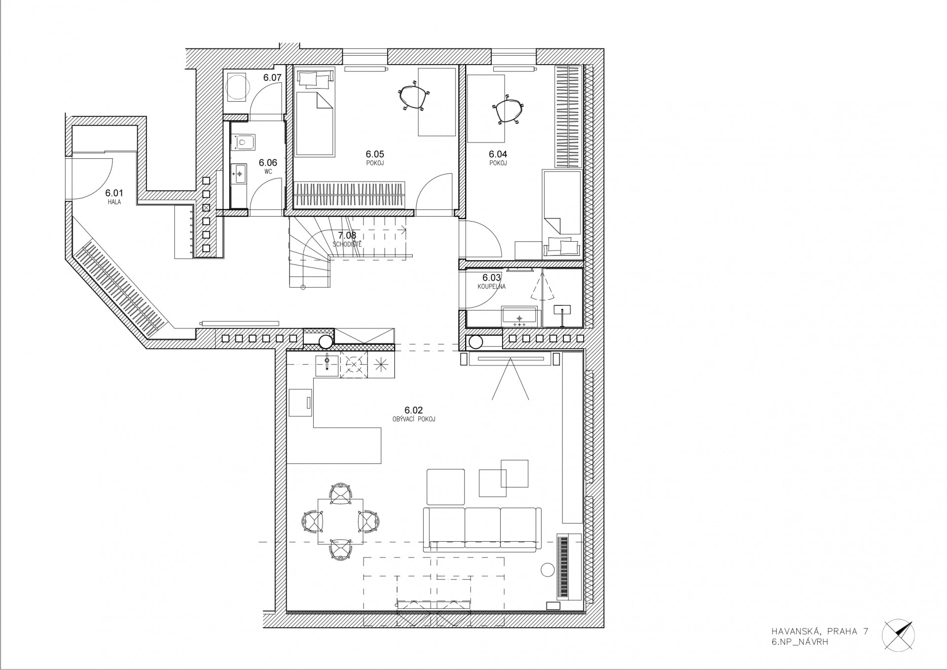
Byt byl ve špatném stavu a jeho dispoziční řešení příliš nefungovalo. Navíc terasa, která byla ze strany klientů zásadní podmínkou pro výběr i koupi bytu, působila velice stísněným dojmem. Po vzájemné domluvě a rok trvajícím plánování tak nastaly rozsáhlé stavební úpravy. „Klienti byli otevření novým možnostem, a proto jsme mohli navrhnout razantní změny a odvážná řešení. V bytě prakticky nezůstalo nic původního – došlo k zásadní úpravě dispozic v obou patrech,“ popisuje architektka Hana Novotná. Ve spodním patře nově vznikly dva dětské pokoje a koupelna se sprchovým koutem. Původně samostatná kuchyně byla ve formě kuchyňského koutu přemístěna do prostorné centrální místnosti, kde společně s jídelní částí a obývacím pokojem vytvořily místo pro setkávání celé rodiny.
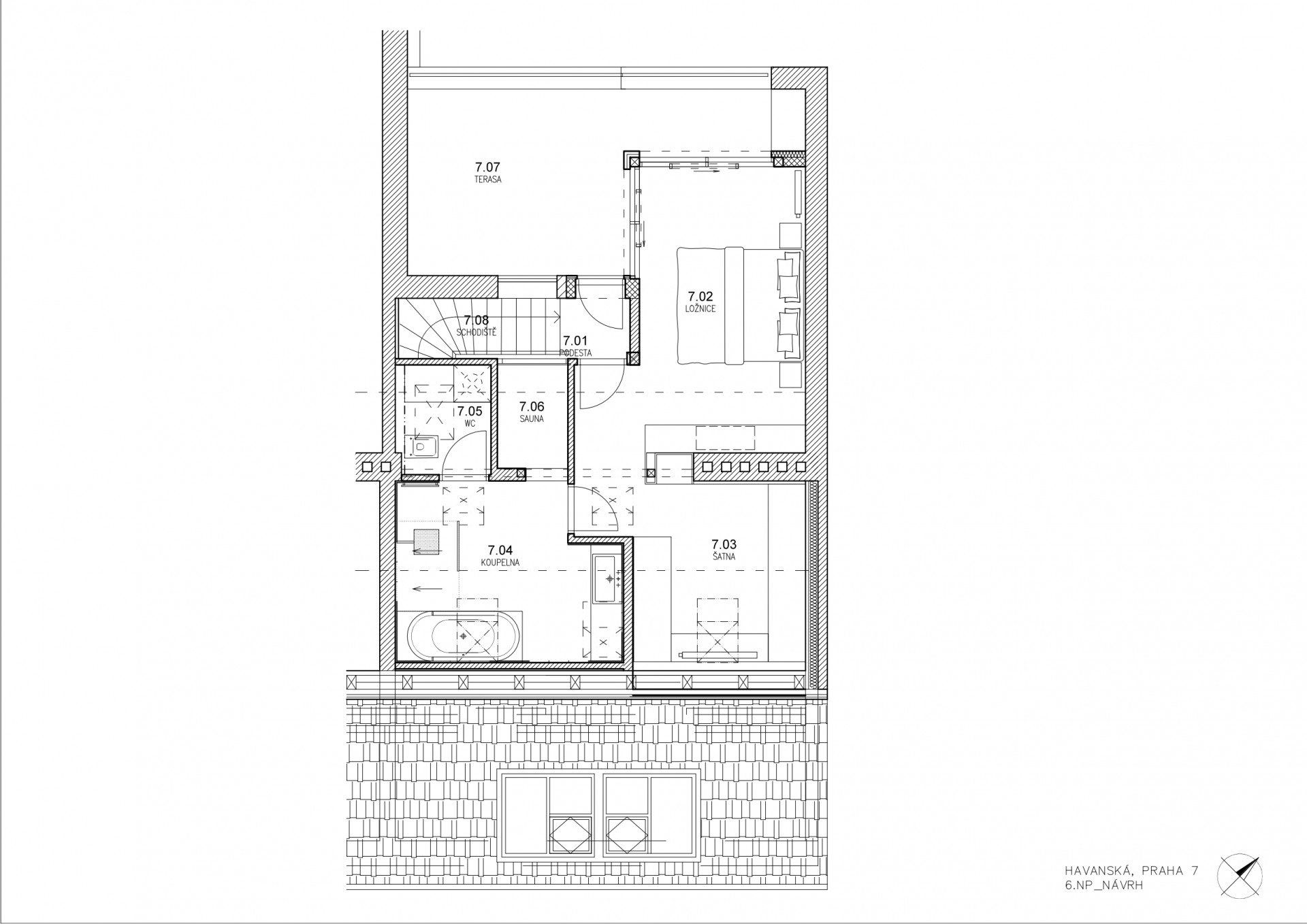
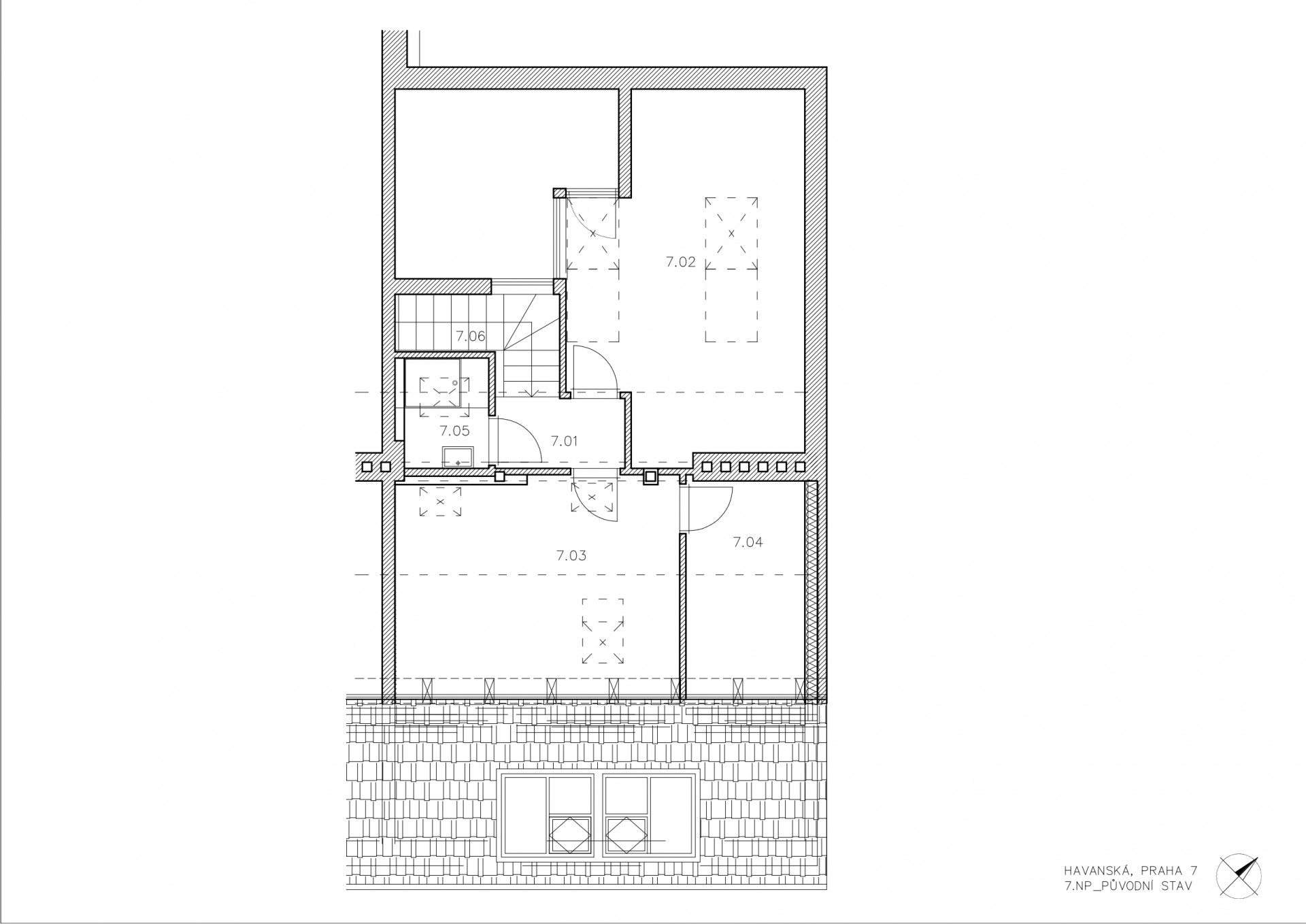
V horním patře, ve kterém se nachází takzvané manželské studio, byla úprava dispozic náročnější z důvodu hledání optimálního řešení uzlu koupelna, sauna a šatna. „Nová dispozice horního patra zahrnovala jednu zcela zásadní úpravu, a to zvětšení terasy, která se tak více otevřela do prostoru. Vlastní ložnice byla doplněna šatnou, koupelnou se samostatnou toaletou a na míru vyrobenou finskou saunou vytápěnou elektrickými kamny, která malým oknem nabízí skrz velkoformátové prosklení terasy průhled ven,“ popisuje autorka návrhu celé rekonstrukce. Jelikož je terasa orientovaná západním směrem, v podvečerních hodinách poskytuje výhled na zapadající slunce.

Technické výzvy
Právě sauna s terasou byly stěžejními prvky celé rekonstrukce, které bylo nutné řešit zejména z technického hlediska. Například u sauny bylo nezbytné vyřešit odvod tepla a vlhkosti, což bylo provedeno nuceným odvětráváním. Konstrukčně i legislativně největším oříškem celé přestavby pak byla terasa.
„Abychom mohli terasu co nejlépe propojit s interiérem, navrhli jsme zásah do střechy podkroví a vytvořili velkoplošné rohové zasklení ložnice. Jelikož se však činžovní dům nachází v památkové zóně, tento návrh jsme museli konzultovat s orgány památkové péče, u nichž musel projít schvalovacím procesem. Komplikací bylo i to, že horní patro mezonetového bytu bylo navíc součástí půdy, s jejíž krokvovou konstrukcí nebylo možné jakkoli hýbat,“ vysvětluje architektka.
Prostor terasy se tak téměř zdvojnásobil, ovšem úprava střešní roviny, vytvoření vikýře a velkého prosklení byla v rámci průběhu rekonstrukce tou největší výzvou. „Problém nastal při otázce, jak budou tak velké prosklené plochy přepraveny do šestého nadzemního podlaží bez použití výtahu, který byl pro tyto účely příliš malý. Nové zasklení terasy, které pro tuto realizaci vyrobila firma Janošík, bylo tedy nakonec vyneseno ručně po schodech. Tomu se upravovaly i rozměry některých skel, aby je bylo na místo vůbec reálné dostat a aby s nimi byla snazší manipulace.“

Severské kouzlo
Skandinávská atmosféra se v bytě odráží nejen díky instalované sauně, ale také z pohledu ladění celého interiéru. Ten dle představ klientů nese prvky stylu severských zemí, do kterých se pravidelně vydávají na dovolenou. „V době vzniku bytu ještě tento styl nebyl v České republice tak plošně rozšířený, jako je tomu dnes. Ohledně interiérového vybavení jsme se s klientem naprosto shodovali a výběr zařizovacích prvků probíhal zcela bez konfliktů,“ popisuje spolupráci architektka.
Barevná paleta ladění bytu je zcela minimální. Velké bílé plochy jsou doplněné černými detaily, kterými jsou například i dveřní a okenní kliky MINIMAL od českého výrobce M&T, jež architektka do projektu zvolila v povrchové úpravě titan černý mat. „Když jsem majitelům bytu navrhla tyto kliky, se kterými jsem měla zkušenosti již z dřívějších projektů, okamžitě se pro ně nadchnuli. Získalo je zejména to, že stejný design klik lze použít jak na dveřních křídlech, tak i na posuvném HS portálu, což u výrobců kování rozhodně nebývá zvykem,“ říká Hana Novotná. „Kování MINIMAL nabízí ucelenou kolekci, která zahrnuje prvky pro dveře, okna, HS portály, ale třeba i dveřní zarážky. Jednotlivé prvky jsou tak pohledově sladěné a interiéru dodávají ucelený výraz,“ doplňuje Roman Ulich, hlavní designér společnosti M&T, jediného českého výrobce designového dveřního a okenního kování v České republice.

Černobílou kombinaci pak pohledově zjemňují a zútulňují dřevěné prvky v dubovém provedení, jako například podlaha, schodiště s dubovými nášlapy či masivní dubový nábytek na míru z dílny českých výrobců Stylishrooms. Puristickou barevnost bytu se podařilo zachovat i po jeho obydlení.
I přes veškerá úskalí se byt podařilo zrealizovat k maximální spokojenosti jeho majitelů. „Kompletně změněné dispozice bytu na rodinných 4+kk vnímáme velmi pozitivně, stejně tak vybudování sauny a také vyřešení problému přílišného zkosení horní mezonetové části bytu s rekonstrukcí přilehlé terasy. Zpětně můžeme potvrdit, že se nám určitě vyplatila poctivá příprava včetně časné komunikace se stavebním úřadem a orgány památkové péče,“ říkají majitelé bytu. Že spolupráce majitelů s architektkou probíhala ke spokojenosti obou stran dosvědčuje také to, že společně už pracují na dalším projektu – rekonstrukci chalupy v Krkonoších.
- Autoři: Hana Novotná
- Ateliér: 2MAD
- Země: Česká republika
- Město: Praha
- Projekt: 2015
- Realizace: 2016-18
- Užitná plocha: 135 m² byt + 13 m² terasa
- Dveřní a okenní kování:: M&T, kolekce MINIMAL