Architektura
/
interiér
S Prahou jako na dlani
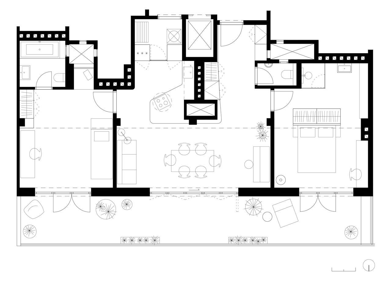
Víte, co to je penthouse? Nápověda se ukrývá i v tomto bytě, který má co do činění se střechou a sám o sobě vznikl spojením dvou menších jednotek. Interiér se díky novým oknům volně propojil s velkou průběžnou terasou a kombinuje tak příjemně drobné měřítko uvnitř s velkorysými jižními výhledy.
Lenka Míková Architekti , 28. 7. 2016
Více k tématu
- Autoři: Lenka Míková
- Ateliér: Lenka Míková Architekti
- Spolupráce: Ivan Boroš
- Země: Česká republika
- Realizace: 2014
- Město: Praha
- Datum projektu: 2012
- Realizace: 2014
- Užitná plocha: 108.00m2
- Poznámka: Foto © Michal Šeba