Schodiště v černém boxu. Půdní byt z 90. let neměl logiku, změnila to chytrá vestavba
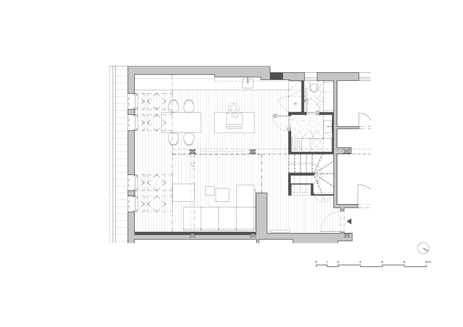
Pražskému půdnímu bytu chyběla logická prostorová koncepce a „radost z půdního prostoru“. Architekti ze studia Komon proto jeho rekonstrukci pojali dosti radikálně. V obýváku vytvořili převýšený prostor a jako srdce bytu do něj vložili černý box se schodištěm.
EARCH.CZ , 18. 10. 2023
Půdní byt v pražské Libni pochází z 30 let. Jeho půda však byla dlouhá léta pouze půdou. V 90. letech, které byly obecně boomem půdních vestaveb, se však proměnila v prostor bytový. Tehdejší majitel do ní nechal vestavět mezonetový byt.
Původní byt byl, co se týče prostorové plochy a pokojů velkorysý, pro majitele možná až příliš. Velikost a počet pokojů nejsou ovšem sami o sobě klíčem ke štěstí. Stejně důležitou roli hraje atmosféra a také jasná a logická prostorová a dispoziční koncepce. A právě tu byt jako takový postrádal.
Více k tématu
Majitel tak oslovil mladé pražské architekty ze studia Komon s úkolem, aby mu onu koncepci a slovy autorů „radost z půdního prostoru“ pomohli nalézt vhodným architektonickým řešením. Architekti se tak pustili do práce a ihned si definovali důležité nosné body, které by nový dům měl splňovat. Výsledkem se stalo poměrně radikální, prostorově však velice účinné řešení.

„Využili jsme hlavní kvality podkroví, jeho výšku. Obývacího pokoj s velkou knihovnou jsme otevřeli přes dvě podlaží. Do těžiště prostoru vkládáme černý box, srdce bytu, které skrývá provozní zázemí, slouží jako schodiště s lávkou do patra a vpouští světlo do jinak tmavé předsíně. Zjednodušili jsme tím původní dispozici bez nutnosti velkých stavebních úprav,“ popisuje koncepci Martin Gaberle z ateliéru Komon.
Výsledkem jejich řešení se stala velmi jasná a logická hierarchie bytových zón. Spodní patro bytu je pojato jako zóna společenská. Obývací pokoj s převýšeným stropem, který zdůrazňují monumentální skleněné lustry, se volně prolíná s kuchyní s nižším stropem. Nosné sloupy uprostřed dispozice mimo své hlavní funkce posloužili ještě k dalšímu účelu. Autoři mezi ně umístili promítací plátno.

Patro horní je pak koncipováno jako zóna soukromá. „Ložnice a koupelna jsou přes otevřený obytný prostor spojené černou lávkou. Z ložnice je francouzskými okny výstup na střešní terasu,“ upřesňuje architekt Martin Gaberle.
Spojovacím prvkem obou pater se stal zmíněný černý box, srdce a centrální prvek celého konceptu, který udává jasný charakter a atmosféru bytu. Černá olejovaná dýha boxu v obležení bílých stěn a nábytku zřetelně vystupuje a svým minimalistickým zpracováním a absencí detailu nutí pozorovatele zaměřit se na její čisté linie a jasnou texturu dřeva.

Architektům ze studia Komon se tak podařilo proměnit byt s nejasnou prostorovou koncepcí v logický celek s jasným charakterem naplno využívající kvalit půdního bytu. „V závěru realizace došlo ke změnám v osobním životě investora a s tím přišel požadavek na snížení nákladů,“ dodávají autoři. I když bylo potřeba nalézt úsporná řešení v dílčích detailech, síle a odvaze konceptu to neubralo. A to je hlavní.
- Ateliér: Komon architekti
- Autoři: Martin Gaberle
- Spolupráce: Bořek Peška, Lucie Roubalová, Jana Drtinová
- Země: Česká republika
- Město: Praha 8 – Libeň
- Projekt: 2019
- Realizace: 2021
- Zastavěná plocha: 141 m²
- Hrubá podlahová plocha: 109 m²
- Užitná plocha: 84 m²