
Šetrná chata na Šumavě od česko-francouzské architektky se přizpůsobuje svému okolí
Chatu v obklopení šumavským lesem navrhla architektka Gabriela Králová kompletně ze dřeva. Řešení stavby se inspiruje lokálními stavebními principy, kromě krytého zápraží nabízí také prostornou terasu.
EARCH.CZ , 17. 10. 2022
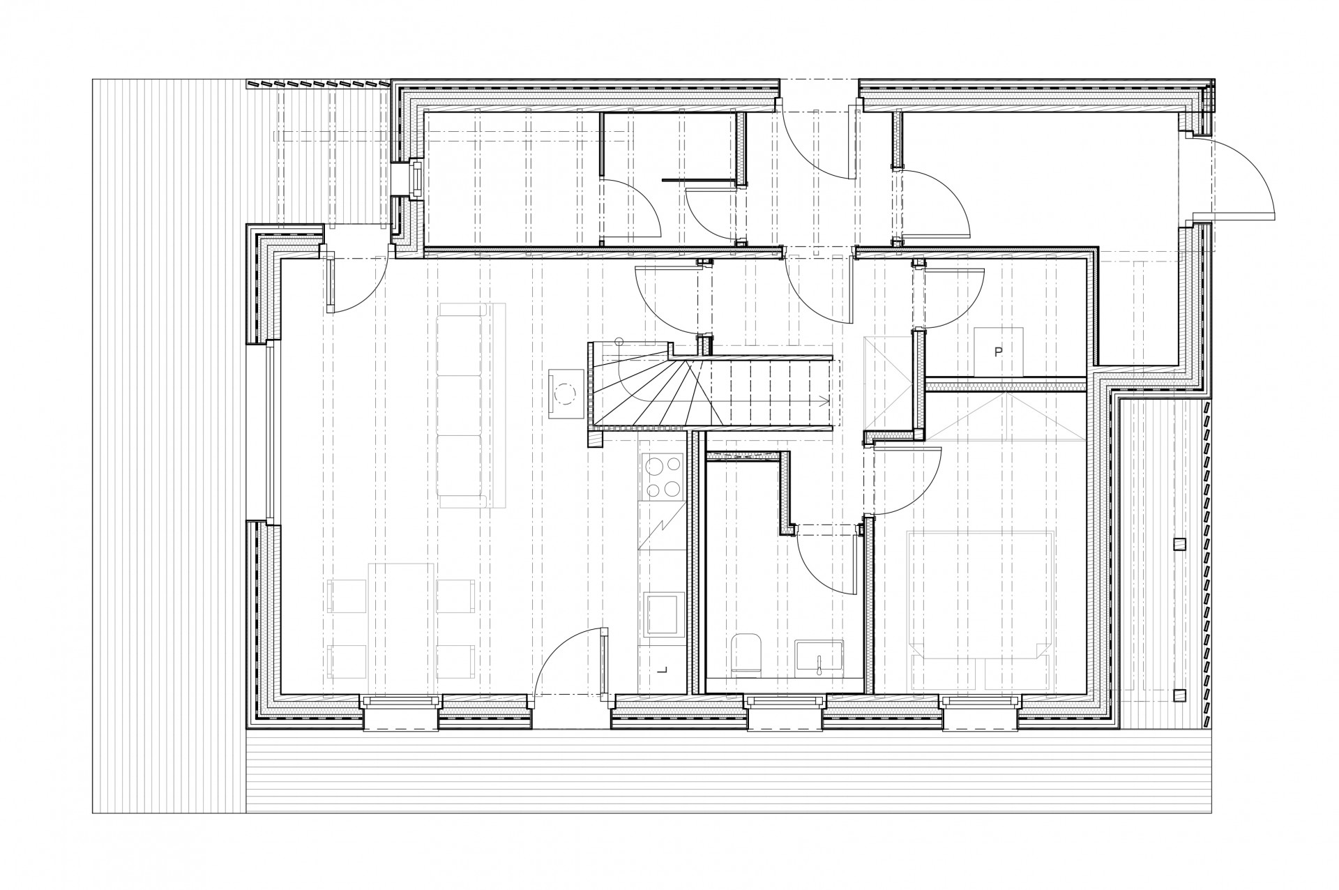
Zvenčí drobnou a zevnitř útulnou chatu na Lipně obestupují vzrostlé stromy, které uvozují začátek místního lesa. Novostavba zde vznikla namísto typizované chaty ze 70. let a díky použitým přírodním materiálům do lokality přirozeně zapadla. Svou formou odkazuje k architektonické tradici Šumavy – například krytým zápražím nebo zvýrazněním štítu formou jeho představení.
Více k tématu
„Stavba svým umístěním navazuje na rozvolněný urbanismus zástavby ve svém sousedství a respektuje výškové poměry v území. Pozemek je odcloněn vzrostlou zelení od regionální železniční trati, která prochází územím severovýchodně. Za tratí se jihovýchodně otevírá užší část vodní nádrže Lipno, respektive ústí řeky Vltavy,“ popisuje charakter místa architektka Gabriela Králová, která je spoluzakladatelkou architektonického ateliéru Les Archinautes sídlícího ve Francie.
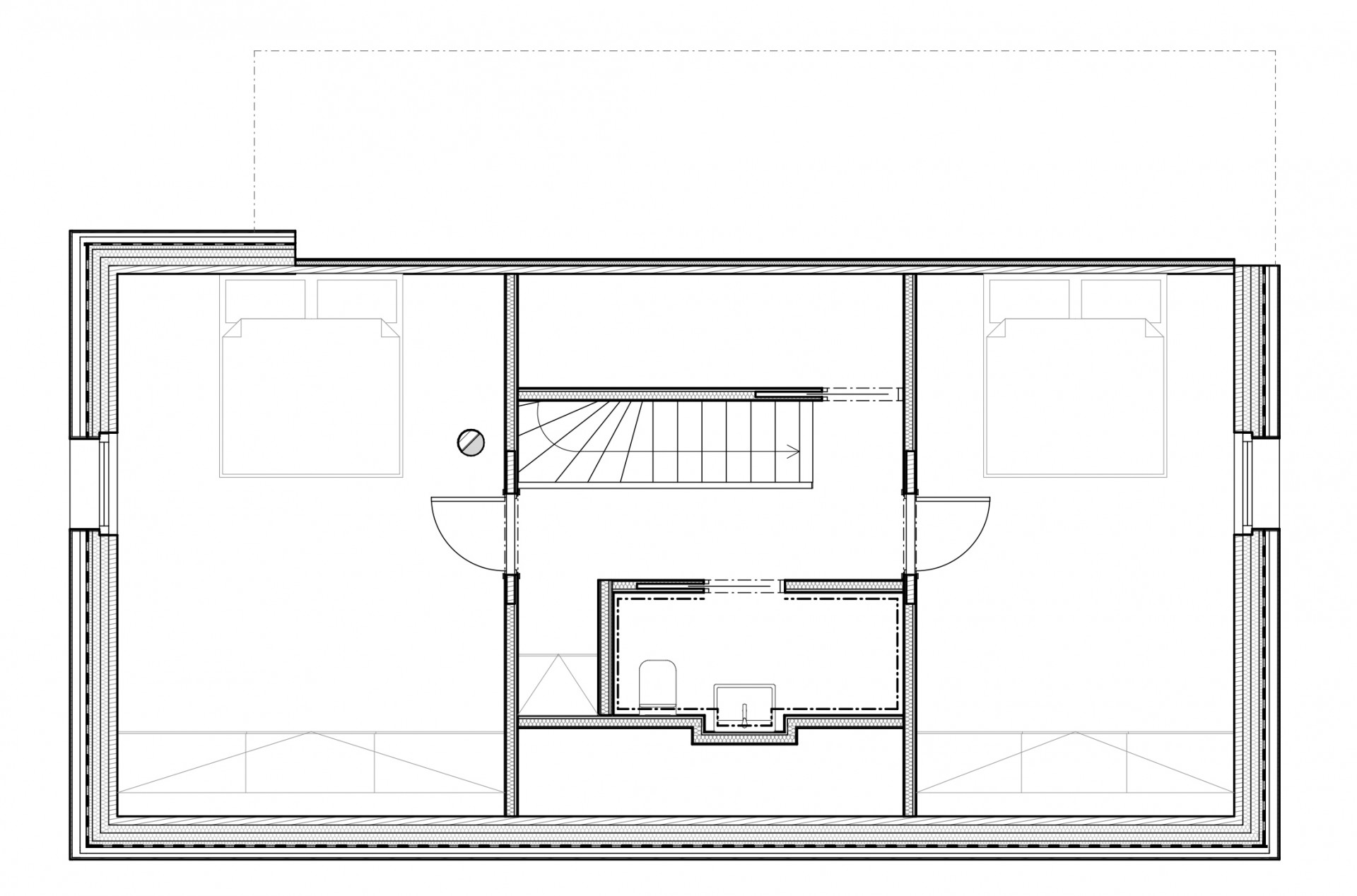
Stavbu na obdélníkovém půdoryse završuje vysoká sedlová střecha, pod kterou se nachází poměrně prostorné obytné podkroví se dvěma ložnicemi. Hlavní obytná místnost se pak nachází v přízemí, osvětluje ji velké čtvercové okno, za kterým se otevírá výhled na hladinu Lipna. Architektka Gabriela Králová chatu realizovala pro investory, kteří jsou nadšenými sportovci, v poměrně malé stavbě proto nechybí ani místnost pro uložení sportovního a technického vybavení nebo sauna. Nespornou výhodou chaty je prostorná terasa, která stavbu obestupuje hned ze tří stran a je krytá přesahem střechy.

Architektka chatu navrhla jako dřevostavbu z pohledových CLT panelů, které se propisují směrem do interiéru. Zvenčí je chata opláštěna obkladem z modřínového dřeva. „Pohledové dřevo v interiéru je natřeno tvrdým voskovým olejem s bílým pigmentem a UV filtrem. To zajistí, že si dřevo zachová svou čerstvou barvu po další desítky let a zároveň může do interiéru dýchat,“ popisuje Gabriela Králová. Kompaktní dřevostavbu uprostřed šumavské přírody realizovala podle návrhu architektky česká firma 3AE, která se na dřevostavby dlouhodobě specializuje. Stojí například za realizací nízkoenergetické chaty v Rokycanech na Plzeňsku nebo rodinného domu na Zbraslavi, obě stavby mají svou konstrukci právě z CLT panelů.

Gabriela Králová na konto dřevostaveb podotýká, že jsou nejen útulné, ale také ekologické. „Tento dům obsahuje okolo 50 m³ dřeva, čímž váže 43 tun CO2. To je stejné množství, které by vyprodukoval automobil ujetím 390 tisíc kilometrů. Při výstavbě se tedy více CO2 naváže, než vyprodukuje. Dům je navíc z 80–90 % kompletně recyklovatelný. Více než 90 % hmotnosti domu je vyrobeno v ČR, českými mistry, z českých materiálů a českého dřeva,“ vysvětluje.
- Autoři: Gabriela Králová
- Ateliér: Les Archinautes
- Spolupráce: Radek Vybíhal
- Země: Česká republika
- Realizace: 2021
- Zastavěná plocha: 123 m²
- Užitná plocha: 110 m²