
Chata i rodinný dům. Nízkoenergetická dřevostavba se přizpůsobí potřebám majitelů
Architekt Lukáš Pejsar z architektonického studia 3AE navrhl nízkoenergetickou dřevostavbu, která se do budoucna promění z rekreační chaty v plně vybavený rodinný dům.
EARCH.CZ , 8. 12. 2022
Dřevostavba Lukáše Pejsara se nachází na svažitém pozemku v Rokycanech na Plzeňsku, kde nahradila starou zchátralou chatu. K rekreaci slouží také nová stavba, nikoli ale na dlouho – majitelé totiž do budoucna počítají s její „transformací“ na plnohodnotný rodinný dům.
Parcela od začátku nabízela několik výhod: vedle svažitého terénu, který vybízí stavbu otevřít výhledům do dálky, to byla i vzrostlá zeleň. Útulnou atmosféru místa však mírně narušuje bytová stavba stojící jen kousek za hranou pozemku. I s touto překážkou si ale Lukáš Pejsar dokázal rafinovaným vrstvením hmot poradit.
Více k tématu
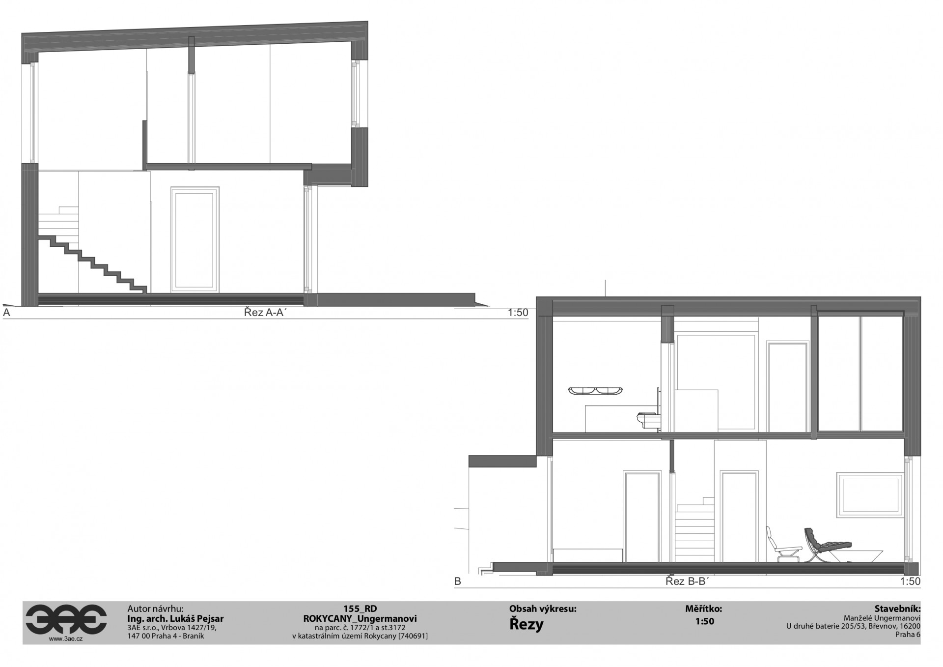
Dvoupatrová novostavba působí při pohledu zezadu jako dřevem obložená kostka. Zahradní průčelí však rozehrávají přes sebe vrstvené kubické jednotky. „Celé první patro je vůči přízemí předsazeno, čímž vzniká praktický přesah, který v létě zastiňuje okna do obývacího pokoje a brání tak přehřívání tohoto prostoru,“ přibližuje řešení domu architekt.
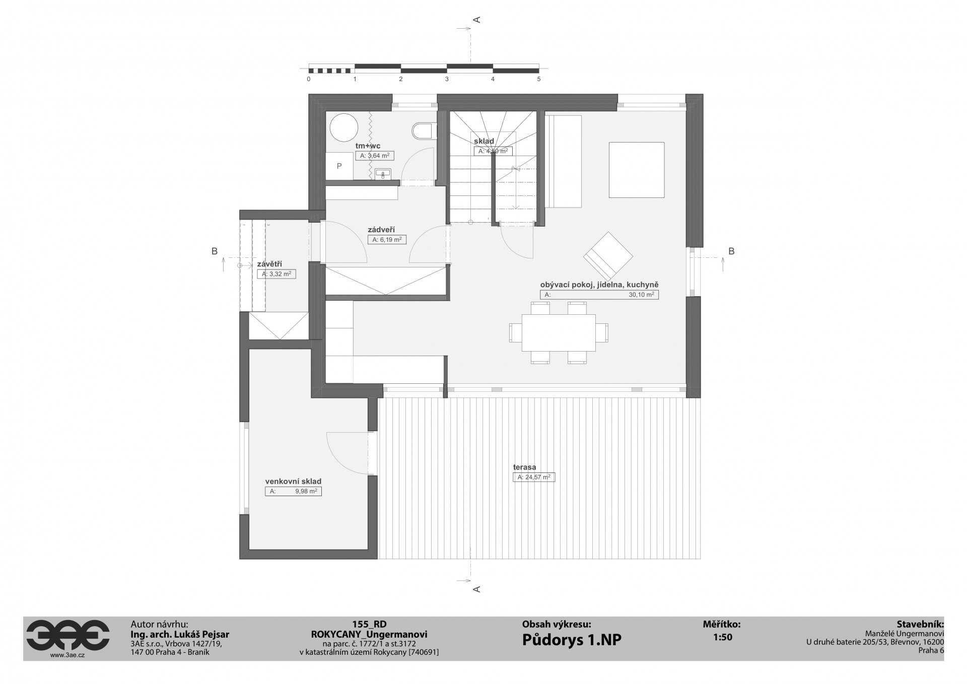
Většinu přízemí zabírá obývací pokoj s kuchyní, který se velkým francouzským oknem otevírá směrem do venkovní terasy a dále do zahrady. Aby měli majitelé dostatek soukromí i na terase, kryje ji z jedné strany hmota skladu.

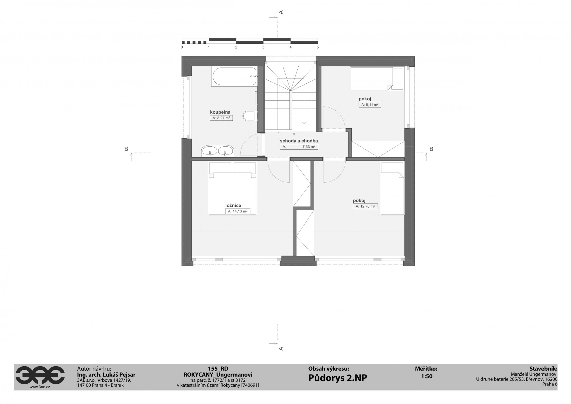
V prvním patře, které je zvenčí celé opláštěné laťkami ze severského modřínu, se nachází ložnice, dva samostatné pokoje a koupelna.
Dřevo hraje hlavní roli také v interiéru. Kromě toho, že zůstala přiznána samotná konstrukce dřevostavby, mají i stěny a stropy dřevěný obklad. Barevný akcent do řešení skromného domu přináší výrazné žluté okenní rámy.

- Autoři: Lukáš Pejsar
- Ateliér: 3AE s.r.o.
- Užitná plocha: 96 m²
- Zastavěná plocha: 81 m²
- Realizace: 2020
- Autor projektu: Libor Švehla