
Na samotě v Orlických horách vyrostla dřevěná chalupa bez technologií. Má být detoxem od společnosti
Pražské studio Molo architekti navrhlo na osamoceném místě v Orlických horách romantickou dřevostavbu sloužící k odpočinku mladé rodiny s dětmi, kterou příhodně pojmenovali Pařezová chaloupka.
EARCH.CZ , 2. 9. 2022
Po původním stavení místních obyvatel tady zbyly už jen kamenné základy a vzrostlé jasany, které ho obklopovaly. Majitelé totiž museli svůj dům násilně opustit po druhé světové válce v rámci plošného odsunu Němců. Odlehlý pozemek v Orlických horách pustl až do chvíle, kdy jej před pár lety zakoupila mladá rodina.
Více k tématu
Majitelé se obrátili na své přátele ze studia molo architekti, aby jim pro toto výjimečné místo navrhli jejich vysněné útočiště v přírodě, kde budou moct trávit nerušené chvíle mimo dosah civilizace. „Pařezová chaloupka vznikla jako domek bez technologií, detox od společnosti. Odpočinek od umělých materiálů a zbytečných informací,“ přibližují záměr autoři návrhu.

„Protože jsme chtěli paměť krajiny zachovat, navrhli jsme zde znovu chalupu. Stavbu velmi prostou, s jedinou myšlenkou - žít spolu a žít v krajině,“ pokračují architekti, kteří vypracovali návrh víkendového bydlení v podobě jednoduché přízemní stavby. Dominantní sedlová střecha zakrývá jak obytné místnosti, tak i prostornou terasu. Dřevěná terasa podstatně zvětšuje plochu interiéru, neboť ji lze s vnitřkem domu propojit pomocí rozměrných prosklených skládacích dveří vysokých 3 metry.

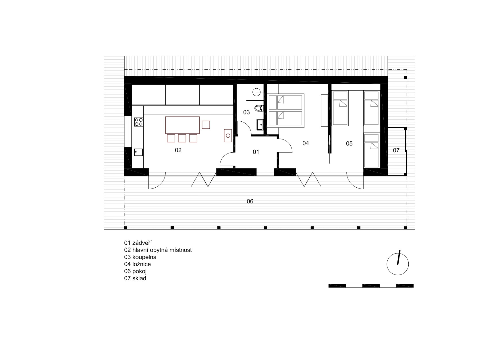
Do chalupy se vchází přes zádveří ve středu dispozice. Návštěvník pak má po levé ruce společný obytný prostor s kuchyní, velkým stolem a spací lavicí simulující spaní za pecí. Nechybí tu ani krb, který je jediným zdrojem vytápění. Na opačné straně domu se nachází ložnice a dětský pokoj. Prostorná koupelna je umístěna v návaznosti na vstupní zádveří.
- Autoři: Patrik Zamazal, Pavel Griz
- Ateliér: MOLO ARCHITEKTI
- Země: Česká republika
- Zastavěná plocha: 157 m²
- Adresa:: Orlické hory