Dřevěné domky na šumavské stráni postavili majitelé svépomocí
Ve stráni na západním okraji CHKO Šumavy se zabydlela trojice malých dřevěných chat, které byly postavené z velké části svépomocí. Za fasádou z modřínových prken nabízí vzdušné interiéry s velikými okny.
EARCH.CZ , 1. 7. 2022
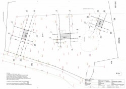
Vyhlídka, Hruška a Ateliér, to jsou názvy třech domků, jejichž návrh vypracovalo Sokoban studio pro soukromého investora za účelem rekreačních pronájmů. Chaty najdeme na samém okraji CHKO Šumava, stranou místních obydlí, kde si mohou hosté naplno užívat krás drsné šumavské přírody.

Pozemek najdeme hned pod silnicí lemovanou alejí kousek před obcí Děpoltice. Kromě krásného výhledu do údolí má pozemek ještě jednu velkou přednost – obklopují ho staré jabloňové sady a další divoká vegetace, takže se jednotlivé domky mohou schovávat mezi větvemi vzrostlých stromů.
Více k tématu
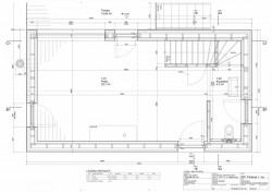
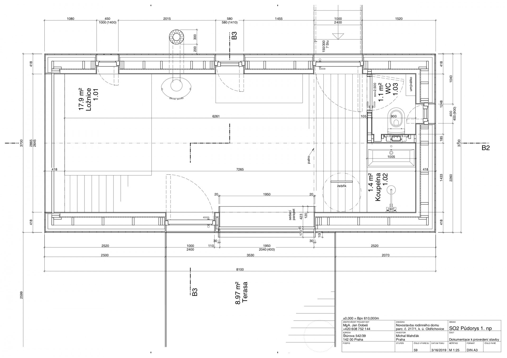
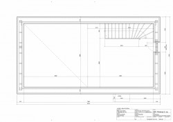
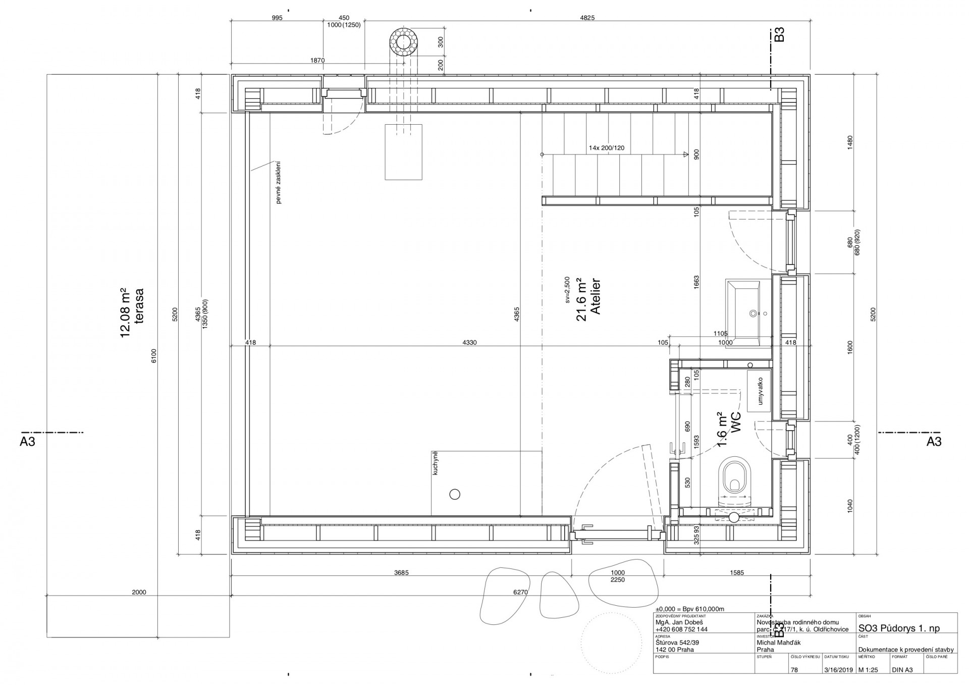
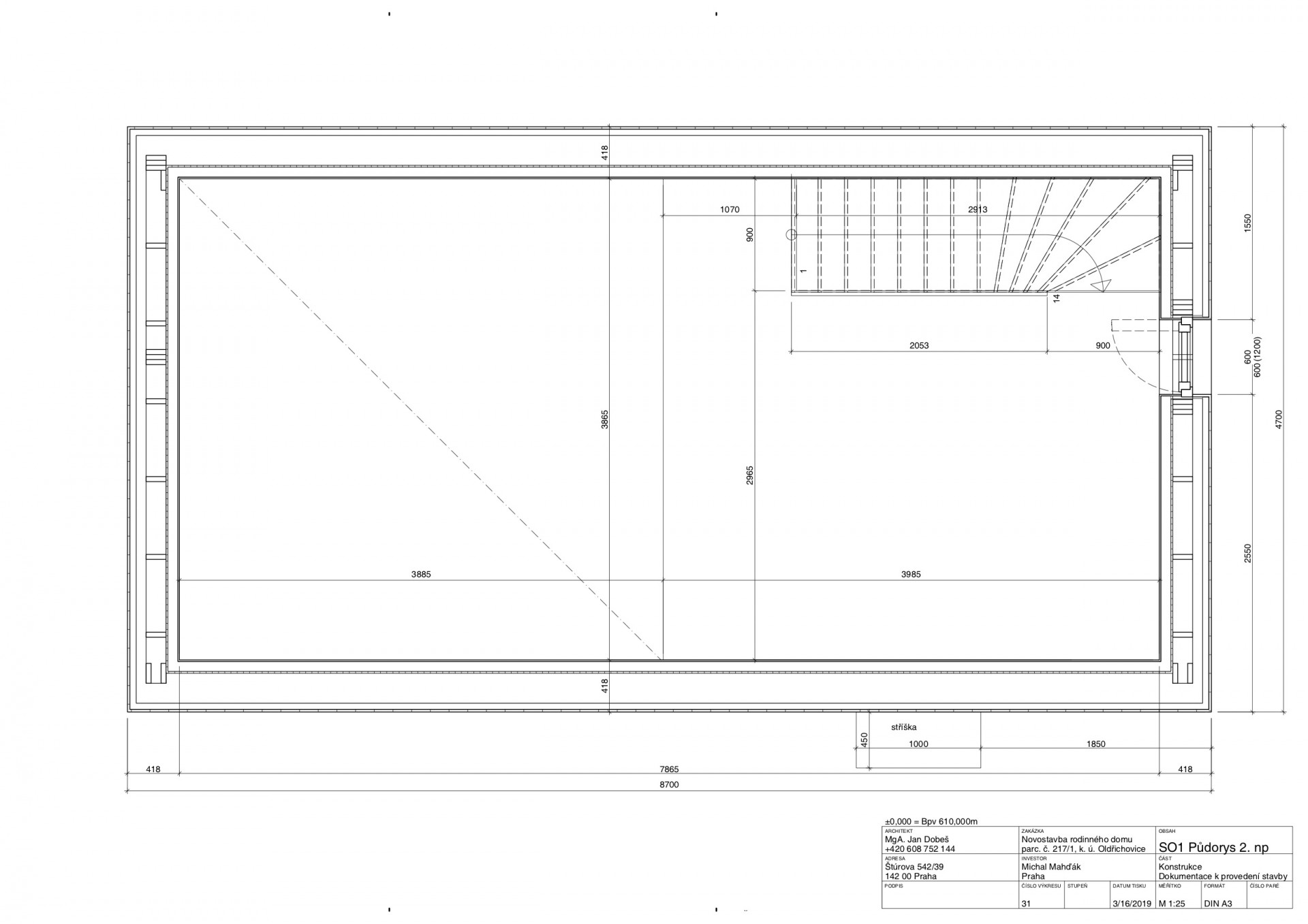
Každý domek má jiný tvar i velikost, přesto je sjednocuje podobný architektonický výraz. Stavebně jednoduché stavby s rámovou konstrukcí z KVH hranolů jsou na betonových pilířích rozmístěny ve svahu tak, aby hostům i navzdory velkoplošným oknům poskytovaly dostatek soukromí. Domky Vyhlídka a Hruška disponují sedlovou střechou, Ateliér má jako jediný střechu pultovou – všechny jsou přitom kryty černými plechy.

Dřevostavby jsou zabaleny do fasády z nehoblovaných modřínových prken, takže časem získají charakteristickou patinu. Spartánsky zařízené interiéry nabízí otevřené dispozice, kde se pohodlně ubytují až čtyři dospělí s dítětem. Prostor patra je oddělen pouze sítěmi. Pitná voda je zajištěna díky vlastní vrtané studni, domky jsou zároveň napojeny na domácí čistírnu odpadních vod.
Hrubou stavbu konstrukce se střechou provedla nedaleká stavební firma, zbytek už zvládl investor se svými přáteli svépomocí.
- Ateliér: Sokoban studio
- Autoři: Petr Souček
- Spolupráce: Michal Mahďák
- Země: Česká republika
- Město: Děpoltice
- Adresa: Oldřichovice 217/1
- Projekt: 2018
- Realizace: 2021
- Užitná plocha: 114 m²
- Zastavěná plocha: 137 m²
- Plocha pozemku: 5300 m²
- Dodavatel a realizace hrubé stavby: Palis Plzeň s.r.o.