Rodinný dům na Zbraslavi ukazuje cestu pro moderní dřevostavby, které se rozhodnou respektovat své okolí

Architekt Lukáš Pejsar zasadil do svahu na Zbraslavi pasivní dřevostavbu, která splývá se svým okolím, ale zachovává si moderní výraz.
EARCH.CZ , 26. 1. 2022 / Advertorial
Dům na skále
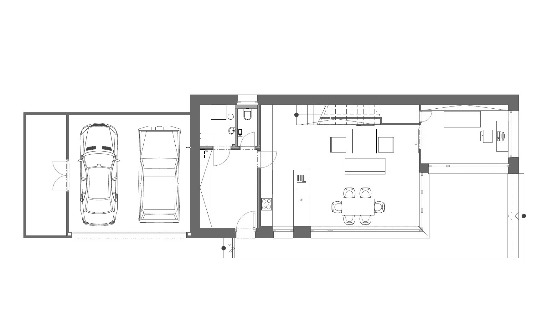
Moderní dřevostavba postavená podle návrhu Lukáše Pejsara ze studia 3AE s.r.o. nahradila na skalnatém pozemku zchátralý rodinný dům, který dříve obývala babička investora. Vztah a respekt k místu se projevil v celkovém pojetí novostavby. Kromě nenápadného ale ušlechtilého vzhledu je to i práce s náročným terénem, se kterým se architekt dokázal velmi dobře vypořádat a parcelu využil na úplné na maximum.
„Jelikož se pozemek nachází kompletně na skále, bylo nutno pracovat s různými úrovněmi, aby vznikl plnohodnotný prostor především pro zahradu,“ vysvětluje náročnou situaci Lukáš Pejsar. Dvoupodlažní dřevostavba složená z krabicovitých hmot vystupuje z kaskádové zahrady, která se tak stala důstojným soklem celé kompozice. Právě díky důsledné spolupráci architekta domu se zahradními architekty se tyto dvě složky navzájem úspěšně doplňují.
Více k tématu
Skutečně dřevěný dům
Pro konstrukci dřevostavby architekt zvolil masivní panely z křížem vrstveného dřeva NOVATOP, které zvládnou systémově vyřešit nosné i nenosné stěny ale i stropy a střechu. Jejich největším benefitem je možnost ponechat je v interiéru přiznané.
Křížem vrstvené dřevo neboli CLT (z anglického Cross Laminated Timber) svými vlastnostmi v mnoha ohledech překonává beton i ocel, ale současně si s těmito materiály velmi dobře rozumí. Vrstevné dřevo zároveň vyniká svou tuhostí, kompaktností a jednoduchými konstrukčními detaily, zároveň nijak neomezuje kreativitu návrhu. Dokáže překlenout i rozlehlé místnosti a dát jim horizontálně i vertikálně obdivuhodné parametry.

Kontakt s přírodou
Stěny domu prolomil architekt velkými okny, jejichž prostřednictvím se tak stírá hranice mezi interiérem a exteriérem. Kromě výhledu do kaskádových zahrad nabízí i pohled do okolních zalesněných kopců a údolí s řekou.
Ohleduplný k přírodě je i zvolený konstrukční systém NOVATOP vyráběný v České republice a splňující náročná kritéria pro řadu certifikací včetně prestižního Natureplus. Tato mezinárodní certifikace dokládá přesnou informaci o tom, jak výrobce hospodaří s energiemi a vodou, nakládá s odpady, jak přispívá ke snížení produkce oxidu uhličitého, emisí, nebo v jaké míře používá udržitelné materiály. Řezivo certifikované PEFC bez výjimky pochází z lesů obhospodařovaných trvale udržitelným způsobem.

Pokorný moderní dům
Lukáš Pejsar dům navrhl tak, aby místní přírodě nekonkuroval. Fasády proto nechal obložit dřevem a střechu osadil travinami. „Dům je laskavý k okolní přírodě a snaží se s ní splynout, namísto aby provokoval. Je to pokorný, moderní dům,“ dodává.
Barvy z exteriéru se přirozeně přelévají i do jednoduchého interiéru laděného do světlých a přírodních tónů. O slovo se zde hlásí zejména přiznaná dřevěná konstrukce CLT panelů. Otevřený prostor obývacího pokoje navíc ozvláštňují šikmé pilíře nebo okno přetažené přes roh.

Že jde o skutečně moderní pasivní dřevostavbu dokazuje i použitý inteligentní systém, který dokáže korigovat například vlhkost nebo množství CO2 uvnitř stavby. Vlaštovkou k energetické soběstačnosti jsou i fotovoltaické panely na střeše.
Lukáši Pejsarovi se v rodinném domě na Zbraslavi podařilo propojit moderní technologie s pokorným, ale přesto ryze současným architektonickým výrazem, díky kterému se stavba stala empatickým doplňkem zbraslavských svahů.
- Autoři: Lukáš Pejsar
- Ateliér: 3AE s.r.o.
- Město: Praha - Zbraslav
- Realizace: 2018
- Užitná plocha: 146 m²