Architektura / občanské stavby

Sociální bydlení pro lidi bez domova

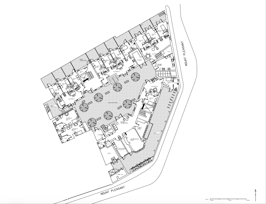
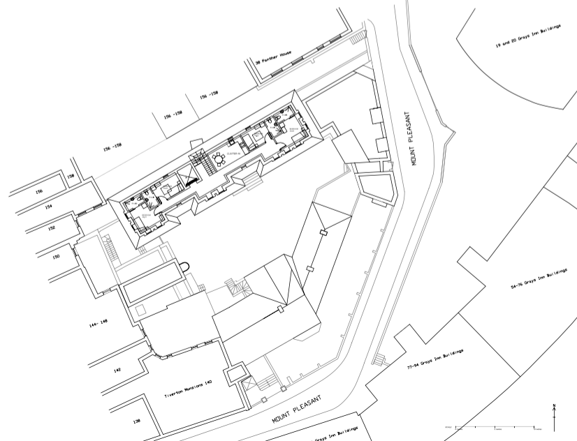
Mount Pleasant slouží jako sociální bydlení pro lidi bez domova, ke kterému patří také poklidný dvůr, kde si mohou obyvatelé bytů odpočinout. Objekt se nachází poblíž londýnské Gray’s Inn Road a High Holborn.

Peter Barber Architects , 9. 10. 2017

  • Ateliér: Peter Barber Architects
  • Země: Velká Británie
  • Město: Londýn
  • autor: Peter Barber Architects *
  • publikováno: * 9. 10. 2017
  • zdroj: * Autorská zpráva

Nabídky práce

Mohlo by vás zajímat

Generální partner
Hlavní partneři