Staronový činžák na Břevnově. Rekonstruovalo se poctivě
V bytovém domě na Břevnově se prolíná staré s novým. A není to klišé – do ulice vypadá jako sto let starý, do vnitrobloku jako současný.
Adéla Vaculíková , 6. 5. 2024
Práce se starým a novým zároveň je pro Markétu Zdebskou a Marka Žáčka z BY architects typická. Mají za sebou už řadu rekonstrukcí, při kterých se stavbám snaží zachovat, anebo dokonce vrátit jejich původní charakter. Na EARCH.cz jsme to ilustrovali například řadovým domem na Solidaritě nebo v Podolí. Teď na Břevnově se rekonstruovalo taky, dům zůstal do ulice takový, jak byl na začátku 20. století postaven, zároveň má ale několik současných vylepšení.
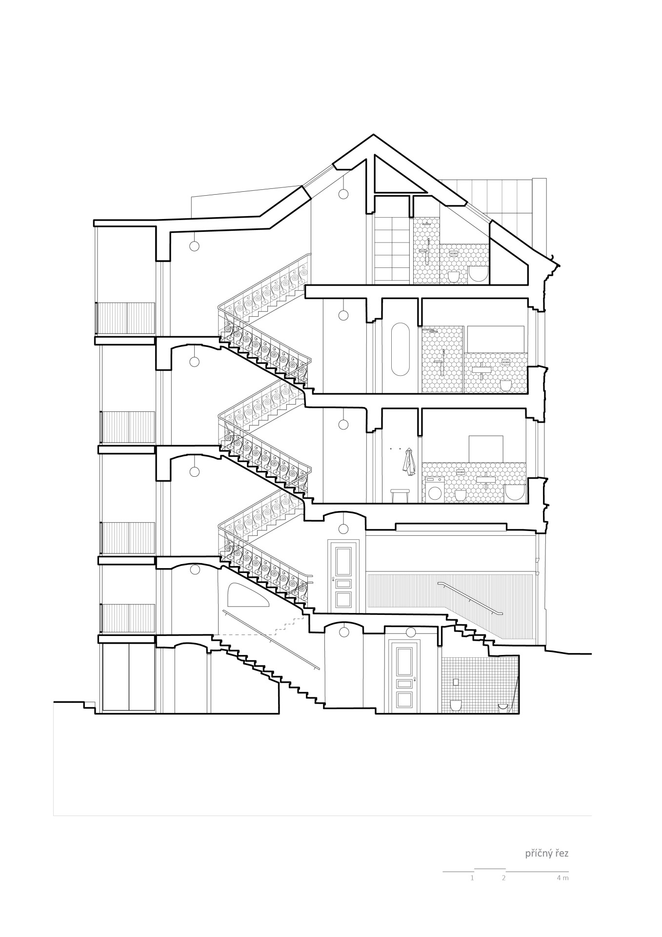
Jeho historizující fasáda prošla pečlivou obnovou. Reliéfní prvky na ní postupně gradují – v přízemí je bosáž, v dalších patrech je pak plocha čím dál odlehčenější, závěrem jsou jemné obloučky pod korunní římsou. Vikýře pak na střeše mají dekoru nejméně, vše má svou logiku a působí autenticky.

Přesto je tady prvek, který dům před rekonstrukcí neměl. Kdo si stavbu bude prohlížet pozorně, možná si ho všimne. Novinkou jsou zmíněné vikýře, díky kterým se podkroví domu stalo obyvatelným. Architekti jejich podobu založili na analogii s původními prvky z fasády. Zkosené vikýře se tak do celku zapojují nenápadně, tvarově jsou ale rozhodně odvážnější než zbytek klasicky pojatého domu.
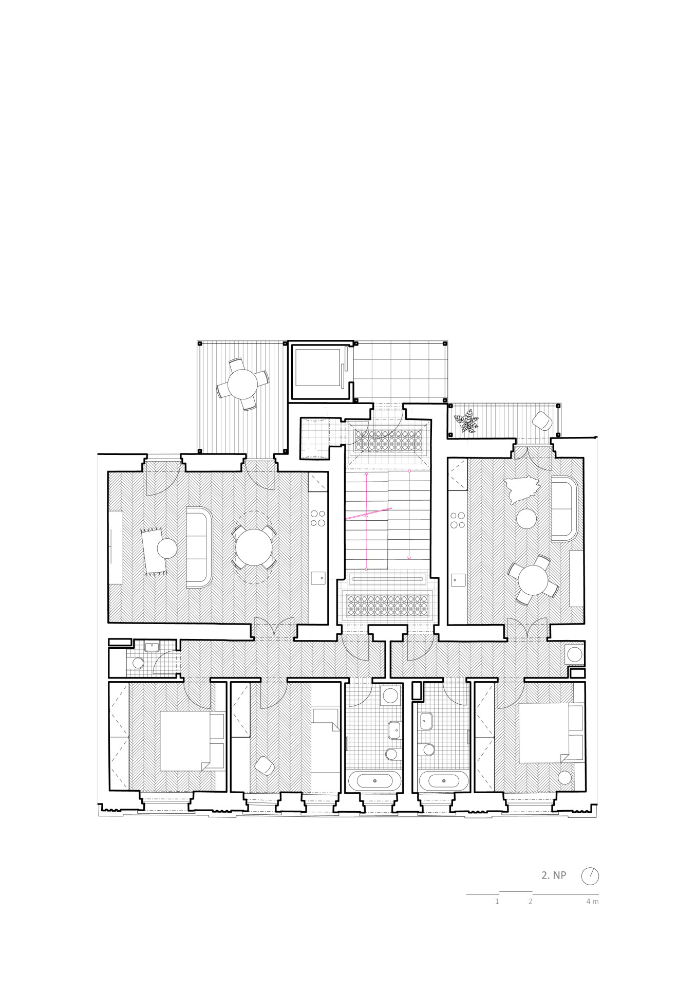
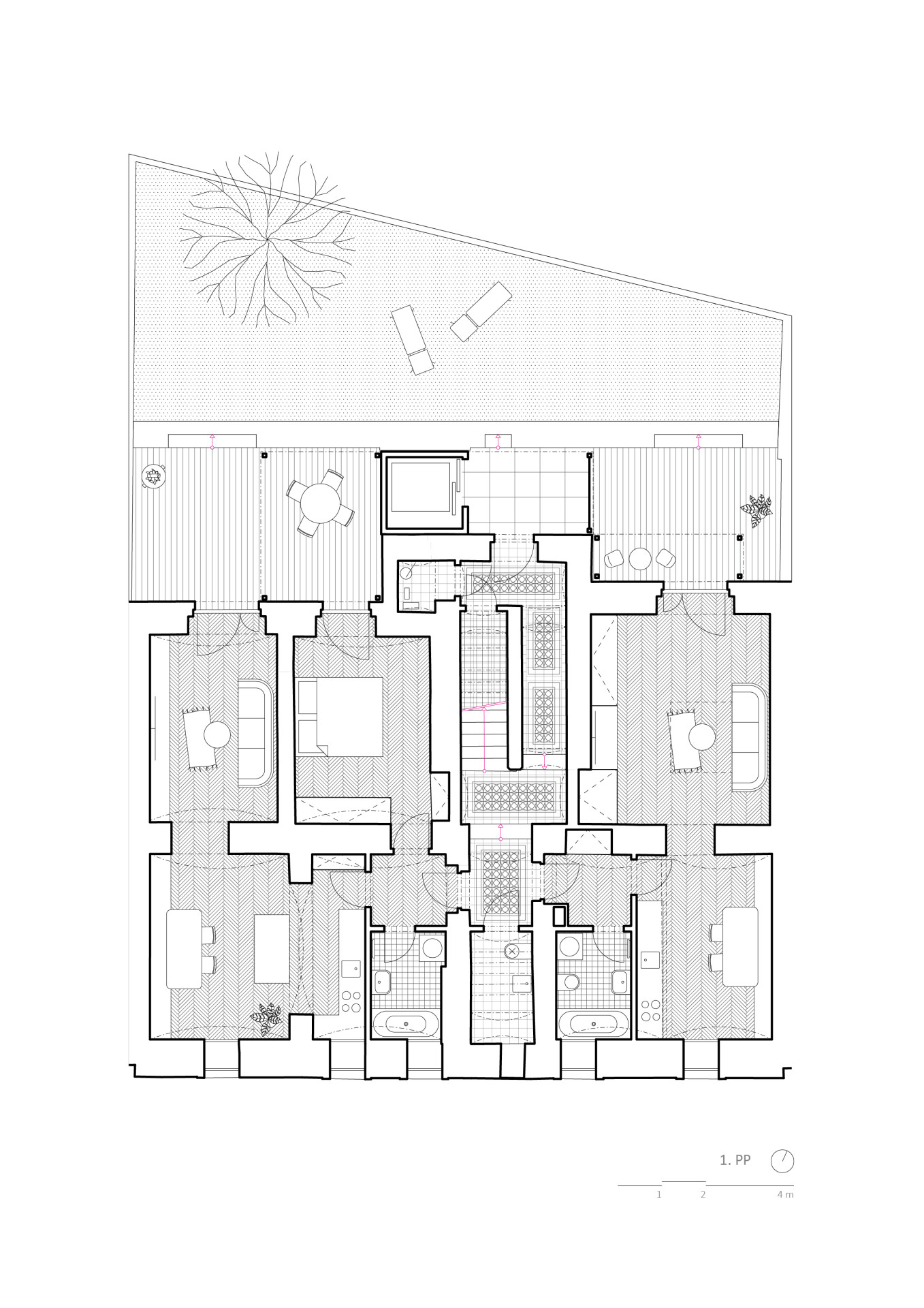
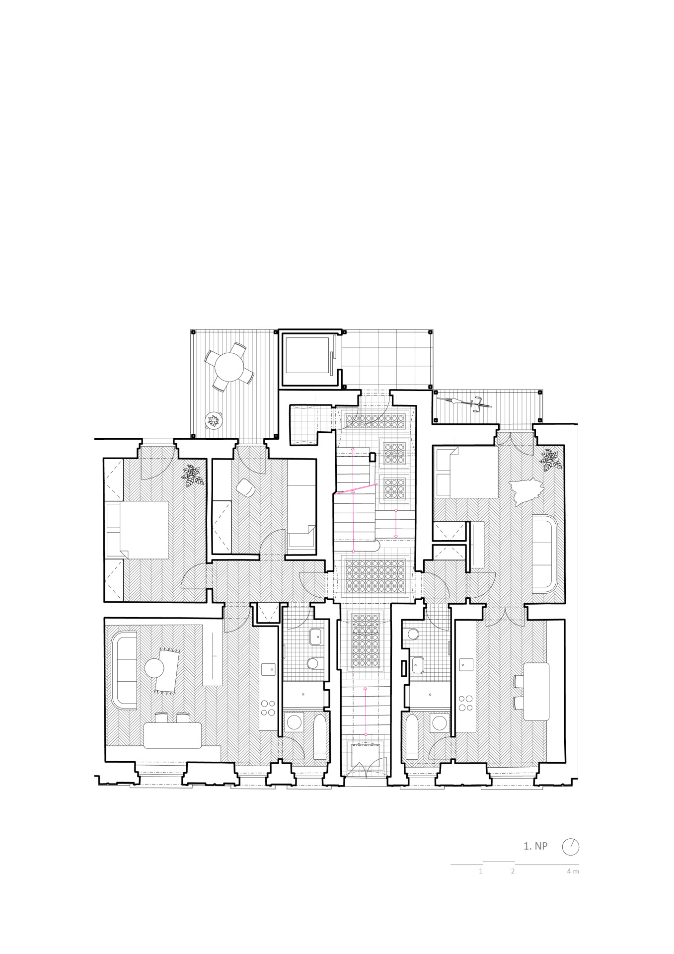
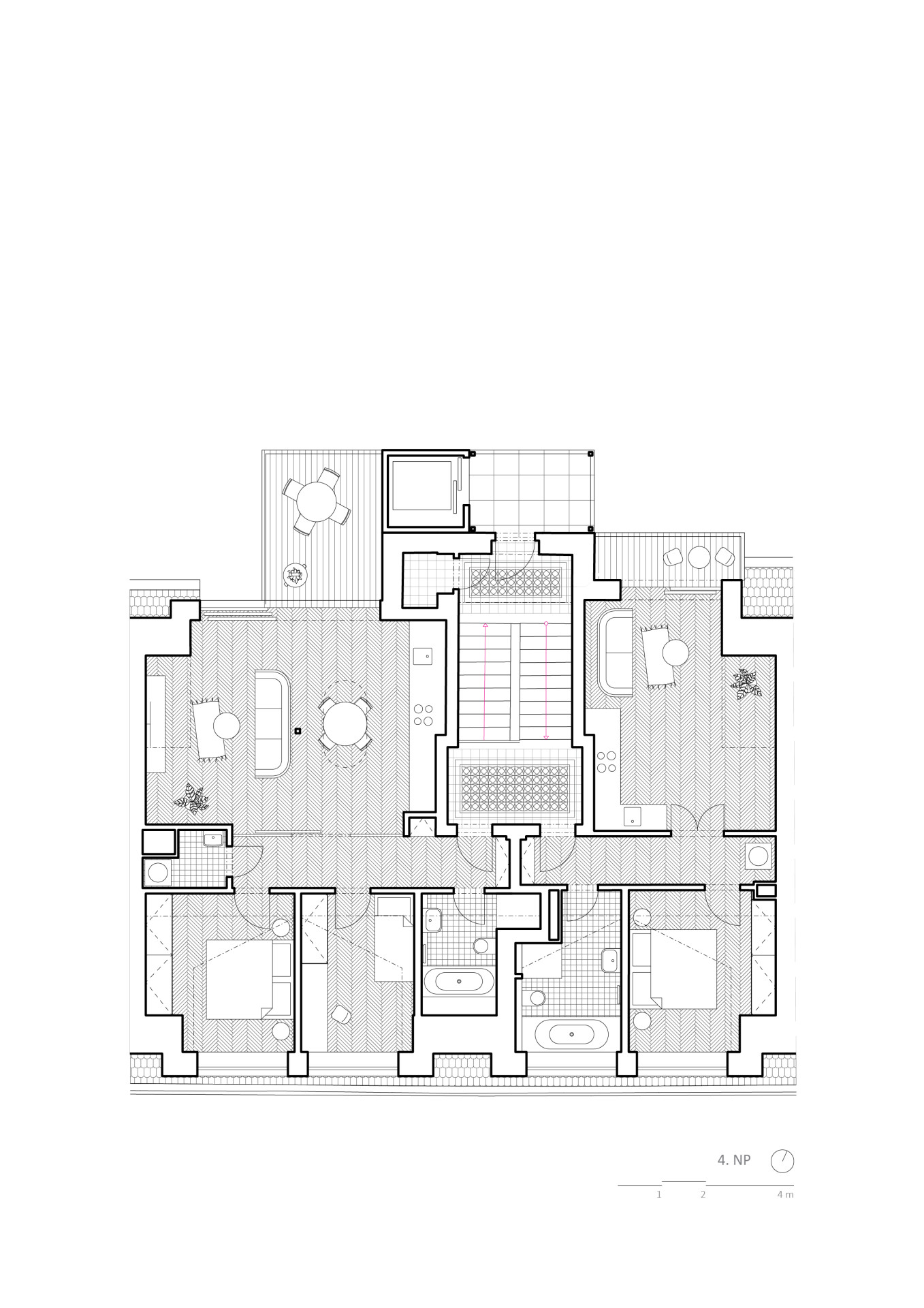
Do vnitrobloku dům naopak působí soudobě. Architekti nechali zvětšit všechna okna ubouráním parapetů. V interiéru sahají až k podlaze, zvenčí vidíme protažené formáty, které působí elegantně. Vertikální směr zdůrazňuje také konstrukce, na níž jsou zavěšené balkony, a výtahová šachta. Obojí je umístěno na vnější straně domu.

Uvnitř bylo navrženo dohromady deset bytů o dispozicích 2+kk a 3+kk. Zařízené byly jen částečně – mají koupelny či skleněné příčky. Už od začátku se totiž počítalo s tím, že budou na prodej. „S klientem jsme vhodný objekt k investici hledali dva roky. Když pak přišel s domem ve Šlikově ulici, bylo rozhodnuto. Potkávala se tu skvělá lokalita, solidní stavba s dochovanými historickými prvky a báječnými výhledy,“ komentují to architekti.

Svého klienta a investora popisují jako „odvážného a poctivého“. Na přístupu k rekonstrukci je to vidět – do detailu se řešilo i to, co by z hlediska potenciálu na realitním trhu nemuselo. Ve společných prostorech došlo třeba k obnově původního zábradlí, jeho kování má stejně zelenou barvu jako vstupní dveře - ty sice vypadají historicky, ale jsou nové, stjeně tak i historizující dlažba, ta původní se totiž nedochovala. Kultivovaně je k domu připojen už zmíněný výtah, do kterého se nastupuje z venkovních podest.
Více k tématu
Břevnov patří mezi oblíbené lokality k bydlení. Ceny bytů tady proto bývají vysoké. I byty v tomto bytovém domě jsou drahé, jejich ceny ale nevybočují. Výrazným rozdílem oproti jiným nabídkám na Břevnově je míra kultivovanosti rekonstrukce a dostavby domu. Když už kupovat drahý byt, tak k němu dostane majitel i kvalitní architekturu.
- Ateliér: BY architects
- Autoři: Markéta Zdebská, Marek Žáček
- Země: Česká republika
- Projekt: 2022-2023
- Realizace: 2023-2024
- Fotograf: Alex shoots buildings
- Město: Praha-Břevnov