Moderní byty pod historickými stropy. Jak bydlí diplomaté na Malé Straně
Nenabízí je žádná prestižní realitní kancelář, ale české ministerstvo zahraničních věcí. V čerstvě zrekonstruovaném renesančně-barokním paláci budou bydlet nejen diplomaté.
Adéla Vaculíková , 2. 8. 2024
Při procházkách Malou Stranou na sebe Malý Buquoyský palác pozornost kolemjdoucích nestrhne, ztrácí se totiž mezi ostatními nápadnějšími paláci v okolí Maltézského náměstí na Malé Straně. Díky zdařilé rekonstrukci podle návrhu Terezy Scheibové si ho však všimla porota České ceny za architekturu, ocitl se tak mezi letošními nominanty.
Až do roku 1945 patřil palác rodu Buquoyů. Po válce byl však Benešovými dekrety znárodněn a stal se tak majetkem státu. Dnes ho spravuje Diplomatický servis při Ministerstvu zahraničních věcí ČR. Za jeho financování proběhla v posledních třech letech celková rekonstrukce domu, ve kterém se teď nacházejí byty. Přednost pro ubytování v nich mají diplomaté a pracovníci zahraničních ambasád, čistě pro ně ale vyhrazené nejsou, pronajímatelem se tak může stát kdokoliv, bez ohledu na profesi.

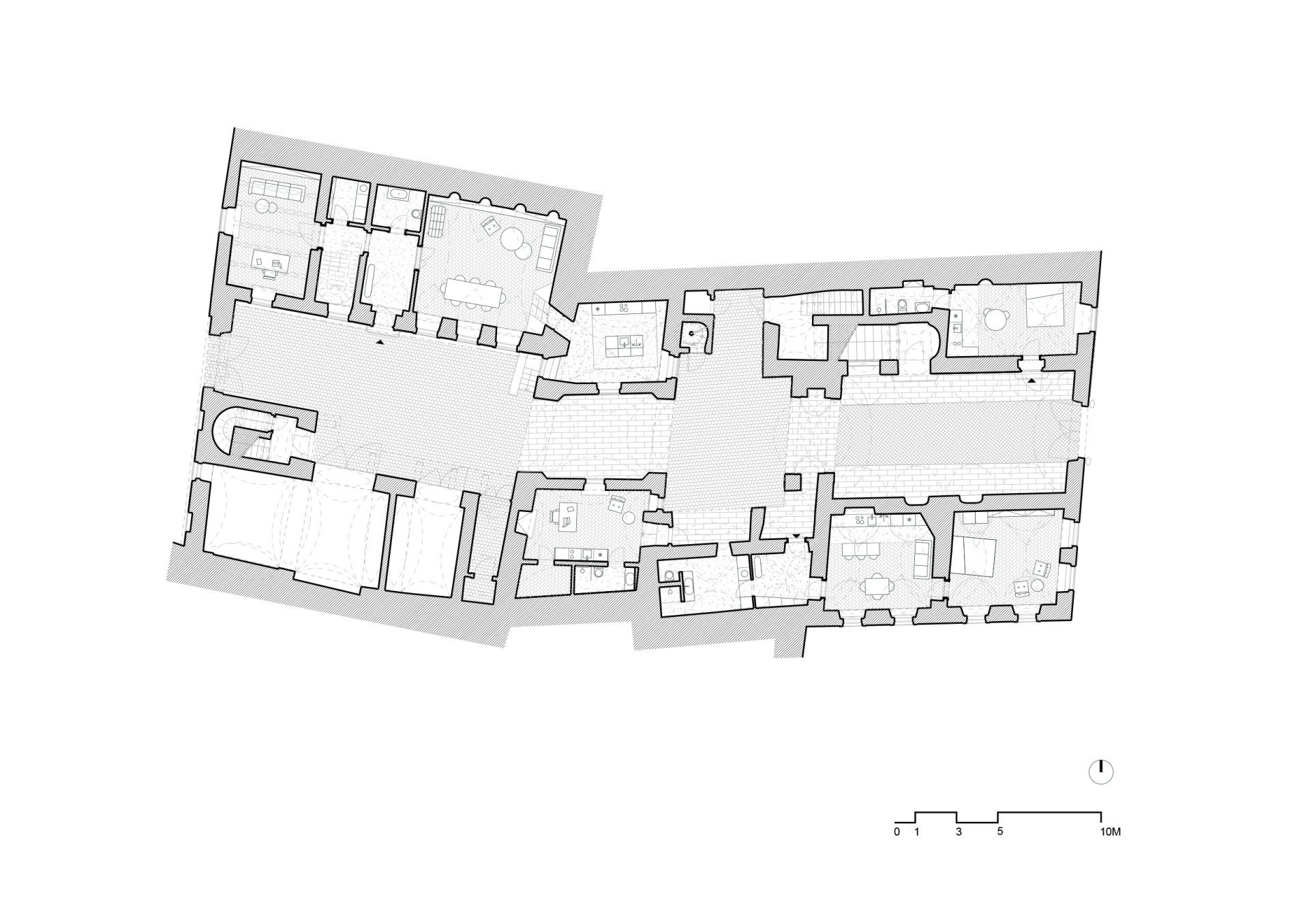
Kořeny Malého Buqoyského paláce sahají ještě před dobu, kdy ho tento francouzský rod koupil. Konkrétně se na parcele v původně klášterní zahradě začalo stavět v 16. století pod maltézským řádem, který má v těsné blízkosti svůj kostel. V té době dostal měšťanský dům půdorysný rozvrh a vysoký štít směřující do Velkopřevorského náměstí, obojí se dochovalo dodnes.
Mezi další pozůstatky renesance patří zaklenutí přízemních prostor hřebíkovými klenbami nebo malované záklopové stropy. Po rekonstrukci se pod nimi znovu bydlí, jsou zde pohodlné apartmány se základním vybavením – hlavně kuchyněmi a koupelnami. Architektka je navrhla v tlumených odstínech zelené a růžové, dala jim čisté linie a co nejméně detailů, nové vstupy se projevují v hladkých plochách.

Takové řešení příjemně kontrastuje se zdobností baroka. Když dům v druhé polovině 18. století koupili Buquoyové, zafinancovali taky jeho modernizaci v tomto stylu. Baroko se neprojevilo jen na fasádách, ale taky v různých způsobech zaklenutí místností, dostavění pavlačí nebo nové reprezentativní schodišťové hale.
Zdobí ji rokaje – při rekonstrukci, stejně jako mnoho dalších historických prvků, zrestaurované. Bylo to potřeba, naposledy se palác rekonstruoval v 90. letech, některé původní barokní prvky byly deponovány nebo zakryty „pseudobarokáliemi“ devadesátých let. Nynější rekonstrukce se místo toho, aby něco imitovala, vydala cestami současných řešení.
Více k tématu
„Došlo k maximálnímu možnému očištění, vybouralo se co nejvíc dodatečně přistavěných příček, prostor se co nejvíce navrátil k původním stavebním konstrukcím,“ popisuje Tereza Scheibová. Interiéry vybavil nový nábytek, současné je třeba taky elegantně zakřivené schodiště, funkčně jsou řešeny dispozice, na podlahách v namáhaných prostorech je terrazzo, a tak dále. Ve výsledku se staré s novým příjemně doplňuje.
„Trvali jsme na nekonečném vzorkování a řemeslně správně dokončených detailech, které byly mnohdy pro zaběhlou stavební firmu nevšední,“ říká k tomu Tereza Scheibová. Na výsledku to je vidět. Jednotlivosti nejsou dokonalé jen samy o sobě, ale taky ve vzájemné provázanosti.
- Ateliér: collcoll, DigiTry Art Technologies
- Autoři: Tereza Scheibová
- Země: Česká republika
- Město: Praha
- Realizace: 2023
- Investor: Ministerstvo zahraničních věcí ČR