
Starou zemědělskou usedlost na Vysočině upravili architekti pro potřeby rodinného útočiště
Sto let stará usedlost stojí osamoceně v klidné části Vysočiny, odkud se otevírají daleké pohledy na zvlněnou krajinu. Protože se nacházela ve zbídačeném stavu, bylo potřeba navrhnout větší stavební zásahy, které však nepřebily její původní venkovský charakter.
EARCH.CZ , 6. 3. 2023
„Manželé s již odrostlými dětmi hledali místo pro klidný a pohodlný život na venkově. Nalezli opuštěnou zemědělskou usedlost z roku 1922. Místo svou polohou zajišťuje žádaný klid i velkou zahradu a výhledy do krajiny,“ nastiňují architekti ze studia Rangherka 5 začátek projektu.
Objekt má podobu tradičního zemědělského statku ve tvaru písmene U, díky čemuž mají majitelé k dispozici také pootevřený dvůr chránící místo před vysočinským větrem. V prostředí části stavení najdeme klenuté chlévy, po stranách pak obytnou chalupu a stodolu, která byla kvůli špatnému technickému stavu nahrazena novou dřevostavbou obsahující garáž a sklad dřeva. Půdorysná stopa usedlosti však zůstala zachována.
Více k tématu
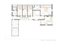
Nově vyzděna a izolována byla také část chalupy, aby mohl být obytný dům efektivně vytápěn tepelným čerpadlem. Chalupa je samozřejmým středobodem života rodiny. Velkou světnici rozdělují na kuchyň s jídelnou a odpočinkový kout s velkým oknem krásná kachlová kamna s vyhřívanou lavicí. V patře nad světnicí je situována hlavní ložnice, tři menší ložnice s velkou koupelnou se nachází v prostředním křídle.

„Ze zápraží, krytého konzolou nové spojovací chodby, se přes zádveří vstupuje do převýšené haly s velkým oknem v patře nad schody. Světlo z něj se měkce odráží od zaobleného stropu z bílých palubek. Dveře z haly vedou do velké světnice, která zabírá celý půdorys levého křídla,“ popisují autoři rekonstrukce Jan Forman a Michal Schwarz.

Aby mohla rodina trávit pohodlně čas také venku, navrhli architekti za domem zázemí letní kuchyně pod dřevěnou konstrukcí. Před chalupou našla své místo také bylinková zahrádka oplocená plaňkami, která je přístupná otevíravým křídlem ve velkém okně světnice. Stavení působí ve vysočinské krajině nenuceně přirozeným dojmem také díky zahradě, která je z větší části neoplocená a přechází tak volně v okolní louky.
- Autoři: Michal Schwarz, Jan Forman
- Ateliér: Jan Forman ateliér, RANGHERKA 5
- Země: Česká republika
- Projekt: 2016
- Realizace: 2019
- Adresa:: Vysočina