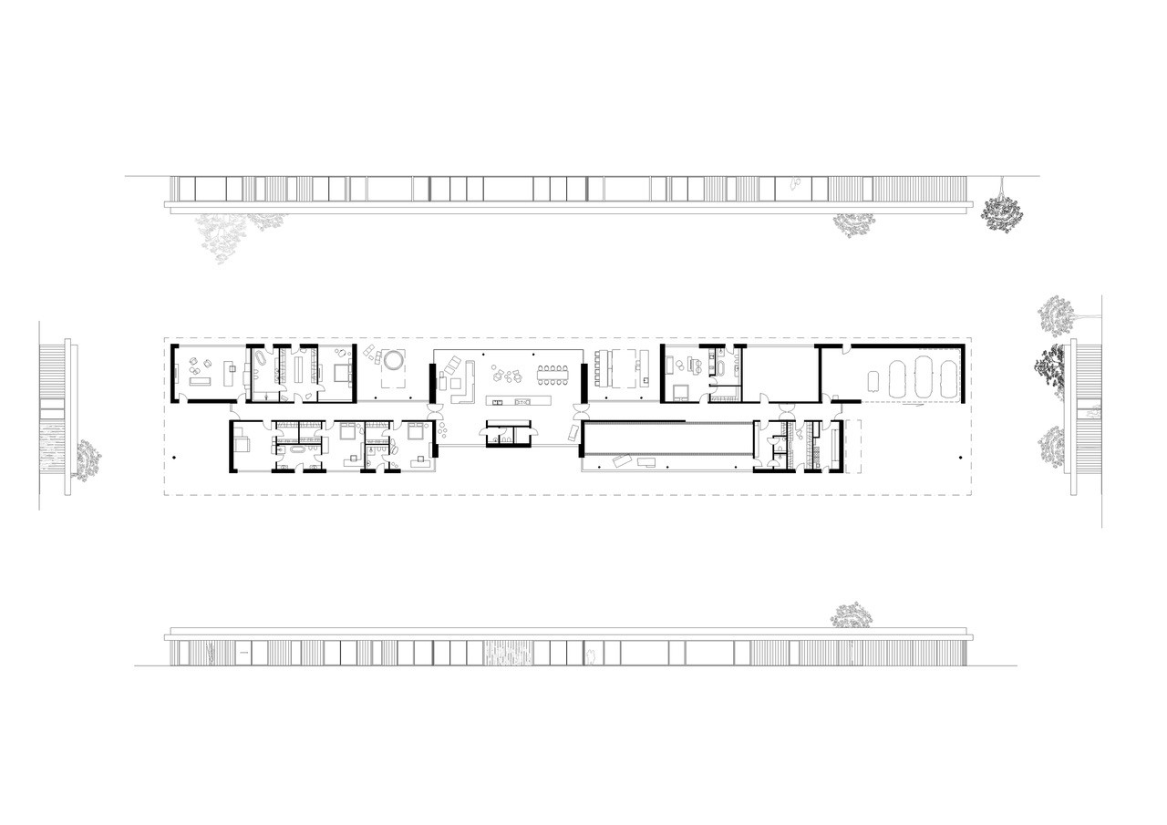
Sto metrů dlouhá vila s výhledem na Říp vyrostla na místě staré cihelny
Luxusní soukromá rezidence od pražského studia ADR se nachází poblíž Kostelce nad Ohří, na místě, kde původně stál areál cihelny. Dnes se zde vyjímá výrazně horizontální vila obdélníkového půdorysu o délce 100 metrů, ze které lze obdivovat vrcholy Českého středohoří. Základním principem architektonického návrhu se stalo využití průhledů na okolní přírodní dominanty jako horu Říp nebo středověký hrad Hazmburk. Součástí obytného komplexu na ploše více jak 82 hektarů je mimo jiné i správcovská budova, sportoviště, vinice, stáje pro koně nebo hangár pro helikoptéru.
ADR , 23. 7. 2022
- Ateliér: ADR
- Autoři: Aleš Lapka, Petr Kolář
- Spolupráce: Jana Zoubková, Anna Matoušková, Walter Schubert
- Země: Česká republika
- Město: Budyně nad Ohří
- Ulice, číslo: Kostelec nad Ohří
- PSČ: 413 01
- Datum projektu: 2018
- Realizace: 2019
- Užitná plocha: 1 003.00m<sup>2</sup>
- Plocha pozemku: 82 565.00m<sup>2</sup>