
Vila jako ze sci-fi: vznáší se nad zemí a jezdí se tam výtahem
Vila Sidonius připomíná ocelovou lávku a spočívá na masivních betonových pilířích. Z proskleného tubusu se otevírají výhledy na Berounku, Český kras i Prahu.
Adéla Vaculíková , 27. 11. 2024
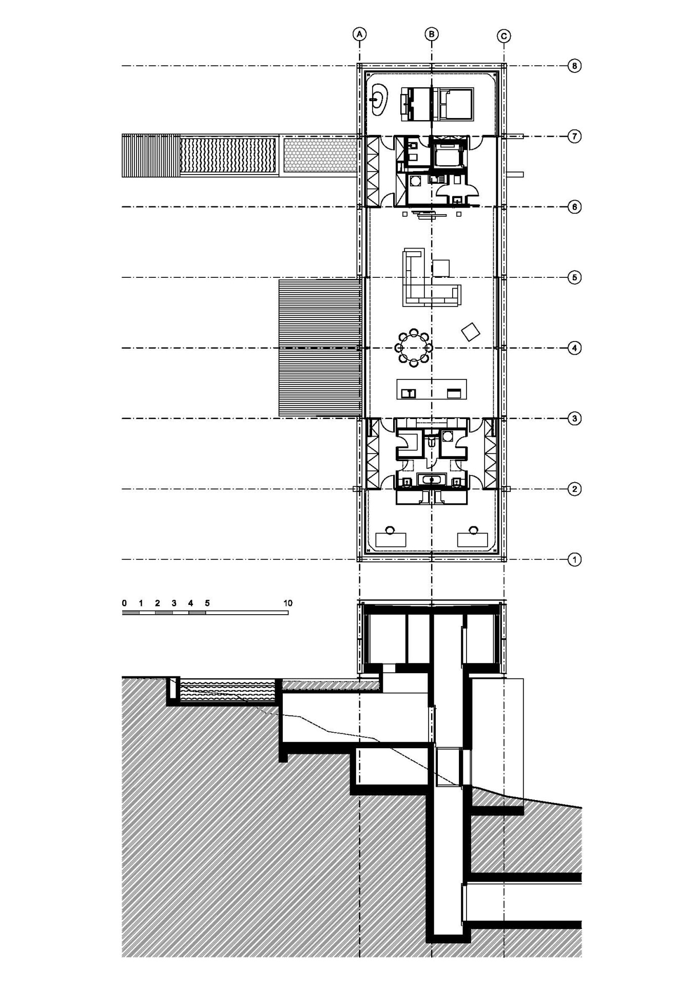
Cílem bylo vytvořit rodinný dům otevřený slunci, pozemek byl ale orientovaný na sever. A tak Ján Stempel a Jan Jakub Tesař navrhli dům, který se nad situaci vznesl. Pomáhají mu v tom dvě betonové nohy, které by klidně mohly vynášet most. „Dům připomíná ocelovou lávku, jež na příkrém svahu spočívá v pootočené pozici směrem k nejlepším severním výhledům a jižnímu slunci,“ popisují stavbu architekti.
Vzdálenost mezi železobetonovými pilíři je 18 metrů, překlenuje ji montovaná ocelová konstrukce, která má dvě vrstvy. Vnější je složená z masivních I profilů (HEB 300) a stavbě v podstatě dává tvar a schopnost být takto zavěšená. Vnitřní konstrukční výplň tvoří už profily jemnější (IPE 160) a vynášejí okna, střechu a podlahy.

Architekti Ján Stempel a Jan Jakub Tesař říkají, že vyšli z konceptu tzv. visutých domů. Jejich realizace připomíná třeba vizi Karla Pragera na zastavění příkrého košířského údolí v Praze. Prager do něj chtěl zasadit podobné, avšak bytové, tubusové domy na vysokých pilířích. Pro jejich podobu se tehdy inspiroval japonským metabolismem.
Pragerovy plány se nikdy nenaplnily, nicméně tato superstruktura se skutečně vznáší nad dalšími vilami a řekou Berounkou. V dálce se pak rýsují ještě kopce Českého krasu, a dokonce i Praha. Jestliže orientace pozemku na sever patřila k jeho nevýhodám, výhledy odsud byly naopak k nezaplacení. Aby si je obyvatelé domu mohli vychutnávat z každé místnosti, je dům v podstatě celý prosklený.

A jak se dovnitř vily vlastně dostává? Dům nějaký kontakt se zemí přeci jen má. Z obývacího pokoje, který vyplňuje střed tubusu, se dá vyjít ven do horní části zahrady. K silnici, která vede dole v údolí, se pak sjíždí výtahem v jednom z pilířů. Ten ústí do podzemního tunelu, na který navazuje ještě garáž, fitness a ateliér. Směrem do ulice se propisují jako bílá kostka, chodba ale už zcela mizí pod zemí.
Více k tématu
Extravagantní vila Sidonius není jen architektonickým výtvorem, ale také technickým. „Dům je esencí jedinečného tvůrčího procesu, na kterém se podílel kromě architektů početný tým specialistů z projekce i výroby jednotlivých dílů stavby,“ píší v autorské zprávě Ján Stempl a Jan Jakub Tesař. „Výjimečné postavení zaujímá i majitel domu, který svým zapojením do celého procesu přípravy i výstavby významně ovlivnil celkový výsledek,“ dodávají ještě. Bez odvážného investora by odvážné vily nebylo. Nás by ještě zajímalo, co na ni sousedi – je to koneckonců dům jako žádný jiný v okolí.
- Autoři: Ján Stempel, Jan Jakub Tesař
- Ateliér: stempel & tesar architekti
- Země: Česká republika
- Projekt: 2016–2020
- Realizace: 2024
- Zastavěná plocha: 330 m² (+ 135 m² garáž)
- Hrubá podlahová plocha: 322 m²
- Užitná plocha: 294 m²
- Plocha pozemku: 1673 m²
- Rozměry: 28 x 8 m / 224 m² / 1680 m³
- fotografie: Filip Šlapal
- Krajinářský architekt: Vladimír Sitta
- Hlavní inženýr projektu: Aleš Herold
- Statika: Valbek (Jiří Chodora a Jan Vesecký)
- Dodavatel stínící techniky: APAGON
- okna: Air-Lux
- Stínící plachta: SunFurl
- Řízení: Tecomat, JABLOTRON
- Tepelné čerpadlo: STIEBEL ELTRON
- Chlazené stropy: UNIVENTA
- Podlahové vytápění: REHAU
- Ozvučení: KEF
- Kliky: M&T
- Světla: Vibia
- Spotřebiče: Gaggenau
- Baterie: AXOR
- Vana: RIHO
- Zařizovací předměty: Alape, KALDEWEI, Villeroy & Boch, Grohe
- Sprcha: HÜPPE
- Sedací souprava: Désirée
- Stůl: Desalto
- Knihovna, konferenční stolky, komoda: Lago
- Křeslo: KFF