Architektura / občanské stavby

Studio OFFICE110 navrhlo prakticky řešenou loděnici v Bratislavě

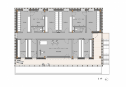
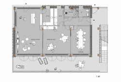
Slovenské architektonické studio OFFICE110 letos dokončilo realizaci budovy loděnice v bratislavské městské části Karlova Ves, na jejímž návrhu pracovalo od roku 2010. Stavba se po konstrukční stránce skládá ze dvou částí - železobetonového "soklu" sloužícího jako hangár pro lodě a dvojice lehkých dřevěných podlaží. Prakticky řešená budova z veřejných prostředků využívá materiály v jejich přirozené podobě bez povrchových úprav. Tento princip podporuje také odhalená konstrukce i přiznané technické rozvody.

OFFICE110 architekti , 6. 11. 2019

  • Ateliér: OFFICE110 architekti
  • Autoři: Martin Hörmann, Richard Kastel, Peter Kopecký
  • Země: Slovensko
  • Město: Bratislava - Karlova Ves
  • Ulice, číslo: Botanická 20/51
  • PSČ: 841 04
  • Suma: 600 000.00
  • Měna: EUR
  • Datum projektu: 2010
  • Realizace: 2019
  • Užitná plocha: 500.00m<sup>2</sup>
  • Zastavěná plocha: 190.00m<sup>2</sup>
  • Plocha pozemku: 2 656.00m<sup>2</sup>

Klíčová slova:

Bratislava

Mohlo by vás zajímat

Generální partner
Hlavní partneři