Tři domy na skále. Stojí hned u obory Hvězda
Na okraji Prahy stojí tři nové domy. Dva jsou rodinné, jeden bytový. Zapadají do staré okolní zástavby a mají společnou divokou zahradu.
Viktorie Majoberová , 3. 12. 2024
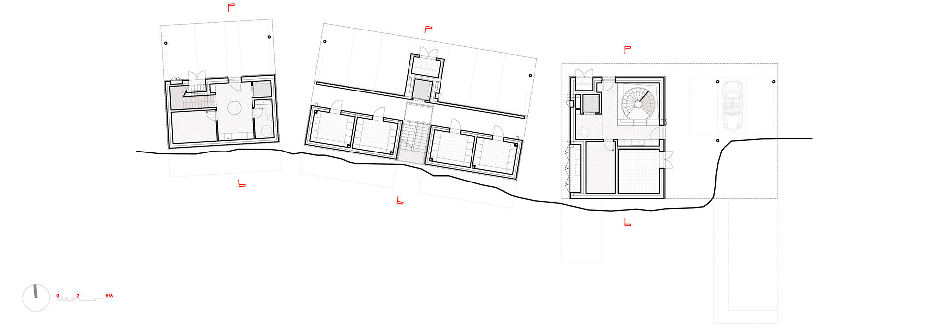
Kousek od historické obory Hvězda, v Libocké ulici, se nacházel opuštěný a zarostlý pozemek. Těsně nad místem, kde se ulice prudce svažuje k libockému kostelu sv. Fabiána a Šebestiána, vyrostly tři nové domy. Dva domy jsou rodinné, jeden z nich patří samotnému investorovi – je větší, protože má také vnitřní bazén a venkovní kuchyni. Prostřední dům je bytový, jsou zde dva mezonetové byty a dva byty podkrovní.
Parcela byla komplikovaná, takže zakomponovat na ni domy byla pro architekta Martina Čeňka výzva. Libocká ulice se svažuje z Petřin dolů k Libockému rybníku, je frekventovaná a strmá. Z jižní strany ji vymezují vesnické domky i honosné příměstské vily z konce 19. století. Severní hranu ulice tvoří terénní zlom a sráz dolů. Samotná parcela je navíc uprostřed rozpůlená. Dělí ji téměř svislá pískovcová skála vysoká cca deset metrů.

Proto jsou nové domy vůči sobě pootočeny a skalní stěna jim tvoří záda. Rozmístění hmot také vytváří malé škvíry, skrze které může kolemjdoucí skalní stěnu vidět. Domy navíc svým názvoslovím pokračují v kompozici okolní zástavby.
O levitujících domech „zvenku“
Nové domy jsou tři bílé archetypální hmoty, které se pomyslně vznášejí nad půdorysně menším a materiálově odlišeným spodním podlažím. Horní část objektů je omítnuta vápennou bílou omítkou, spodní je část dřevěná, obložená svislým laťováním. Tyto materiály jsou v exteriéru ještě doplněny o zámečnické detaily z pozinkované oceli a šedě lakované plaňkové uliční oplocení. Střechy krajních objektů jsou navrženy jako valbové, to aby zjemnily celkovou hmotu.
Rozmístění oken na fasádě možná působí trochu nahodile. Ale není tomu tak. Kompozice různých typů a rozměrů oken je navržená tak, že rámuje výhledy do okolí. Na libocký kostel, či na obzor, jemuž dominuje příroda Divoké Šárky. Zahradní fasády domů jsou maximálně otevřené rozměrným bezrámovým prosklením.

Předprostor před domy je vydlážděný kamenem a jsou zde nově vysazené stromy. Architekt se zde snažil místu vložit městský charakter. V horní, vyvýšené, části pozemku, se nachází divoká zahrada s původní vzrostlou přírodní vegetací.
Tři domy, tři příběhy
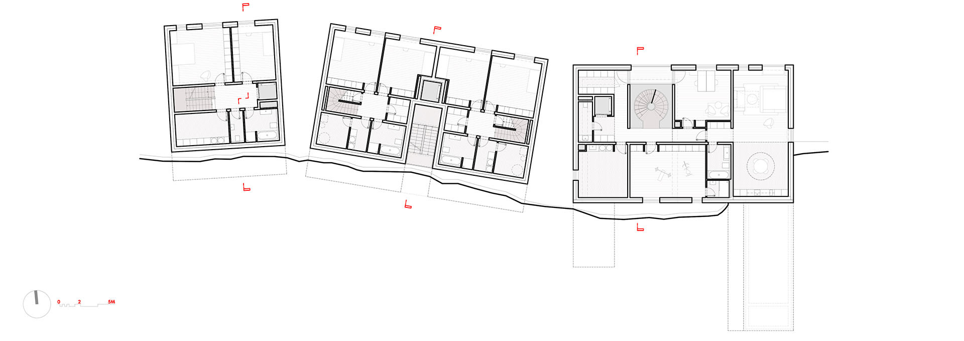
Tři domy jsou vizuálně sjednocené také uvnitř. Pro interiéry domů byly zvoleny podobné materiály: pohledový beton, bílé omítky, dubové podlahy a vestavný nábytek v kombinaci bílého laku a přírodní dubové dýhy. Podlahy v servisních prostorách jsou dlážděny šestiúhelníkovou mozaikou ve dvou odstínech šedé, místnost s bazénem je opatřena světle šedou stěrkou. „Cílem bylo vytvořit klidné a neutrální pozadí pro život obyvatel domů a kvalitní prvky volného nábytku,“ vysvětluje architekt Čeněk v autorské zprávě.

V domě investora je výrazným prvkem schodiště – točitý monolitický železobetonový útvar byl odlitý na místě a působí jako skulptura v prostoru. Schodiště je doplněno extrémně subtilním zábradlím z ohýbané, svařované a bíle lakované tyčoviny. Menším rodinným domem, který se nachází na levé straně pozemku, pro změnu prochází ocelové bíle lakované lehké schodiště se zalamovanou subtilní konstrukcí schodnic a stupňů.
O konstrukci
Stavba byla realizována jako převážně monolitická železobetonová s pohledovým spodním lícem stropních desek, v kombinaci s ocelovými sloupy. Zdrojem tepla jsou tepelná čerpadla vzduch-voda, vytápění je teplovodní, podlahové. Všechny objekty jsou vybaveny nuceným větráním s rekuperací tepla a klimatizačními jednotkami. Všechny tři domy byly provedeny v pasivním standardu jako mimořádně energeticky úsporné.
Více k tématu
Minulost vs. přítomnost
Na parcele ještě před pár lety stála secesní Eysseltova vila připisovaná Bohumilu Hübschmannovi. Dlouhodobě opuštěný dům v roce 2018 zničil požár, po němž se majitel rozhodl pozemek prodat.
Původní vila dříve stála dole pod skálou, těsně u silnice a utopená pod její dnešní úrovní. Takové umístění však pro nové domy nebylo reálné. Architektovi se podařilo najít pro složitý pozemek řešení, které odpovídá dnešním požadavkům na bydlení. Zároveň se povedlo navázat na charakter cenného místa a novostavbami ho nenarušit.
- Autoři: Martin Čeněk
- Spolupráce: Tomáš Minarovič
- Země: Česká republika
- Umístění projektu: Libocká, Praha - Liboc
- Projekt: 2019-2021
- Realizace: 2022
- Zastavěná plocha: 716 m²
- Hrubá podlahová plocha: 1910 m²
- Užitná plocha: 1396 m²
- Plocha pozemku: 2883 m²
- Fotograf: Martin Čeněk
- Záběry z dronu: Marek Jehlička
- Statika: František Denk
- Zdravotechnika: Tomáš Balažovič
- Vytápění, větrání: Ondřej Zikán
- Elektrotechnika: Petr Bürger
- Požární bezpečnost: Jindřiška Hüttnerová
- Zahradní úpravy: Tomáš Sklenář
- Okna Integral Rand, bezrámová okna Screen, HS portály: MASKOP 99
- Dřevěné akustické panely: Novatop Acoustic
- Venkovní nábytek: Egoé (série Moja a Cora)
- Křeslo UP 2000, stolky FAT-FAT, sofa Tufty-Time: B&B Italia
- Sofa Carmo: BoConcept
- Židle Stockholm, křesla Merano, jídelní stůl Bloom: TON
- Svítidla Random Light: Moooi
- Svítidla Shadows a Puro: Brokis
- Série New Premium, umyvadla: Catalano
- Série Aura, koupelnové topné žebříky: ISAN
- Série Pan, vodovodní baterie: Zucchetti