
Nový bytový dům u Stromovky. Lepší než ten původní
Vstup do nejkrásnějšího pražského parku Stromovka teď uvozuje nový bytový dům. Nabízí exkluzivní bydlení: pohodlí, kvalitní materiály a výhled do zeleně.
Adéla Vaculíková , 10. 7. 2024
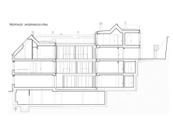
Z ulice je to dům se soklem, omítnutým obvodovým zdivem, římsou. Do dvora naopak směřují velká francouzská okna, takže je v bytech spousta světla. Ty v nejvyšším patře mají své střešní terasy. Vystoupá se na ně po schodech a vystoupí otevřením střešního světlíku. Výhledy se odtud otevírají do zelené Stromovky, dvora domu, i na střešní krajinu starých Dejvic. Přímým sousedem je nizozemská ambasáda, je to zkrátka dům na prestižní adrese.
Na parcele předtím stála administrativní budova z devadesátých let – její podoba ale nebyla současná, nýbrž historizující. Podle architekta Jana Nedvěda, který společně se svým týmem z ateliéru NEDVEDARCHITEKTI stojí za podobou stavby nové, přeměnit na byty dobře nešla. Za fasádou s pásovou bosáží se totiž skrýval železobetonový skelet, který měl příliš hluboký trakt a rezonoval, bouchnutí dveří bylo slyšet v celé budově. Pohodlné bydlení by se v něm tedy budovalo těžko.

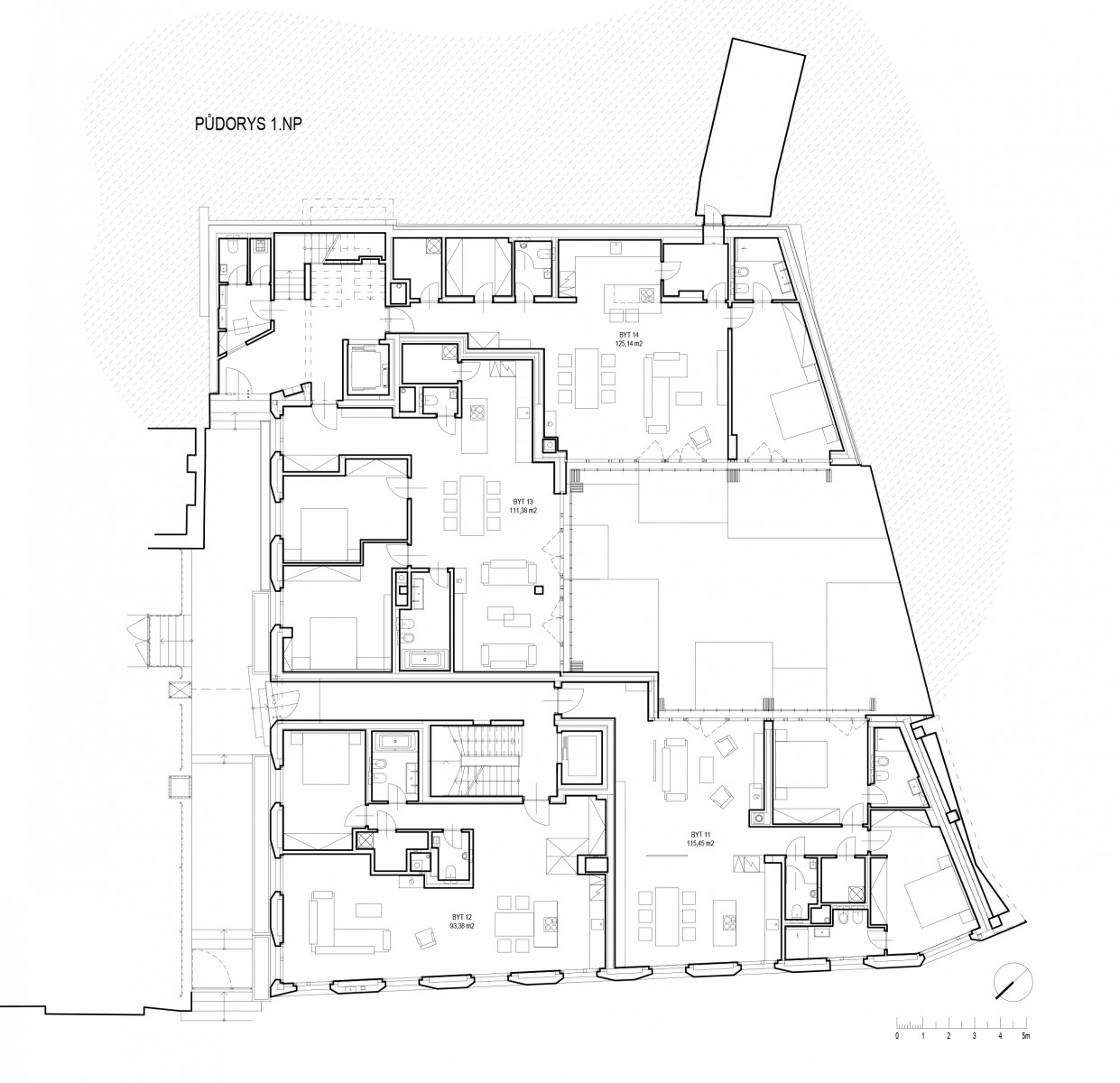
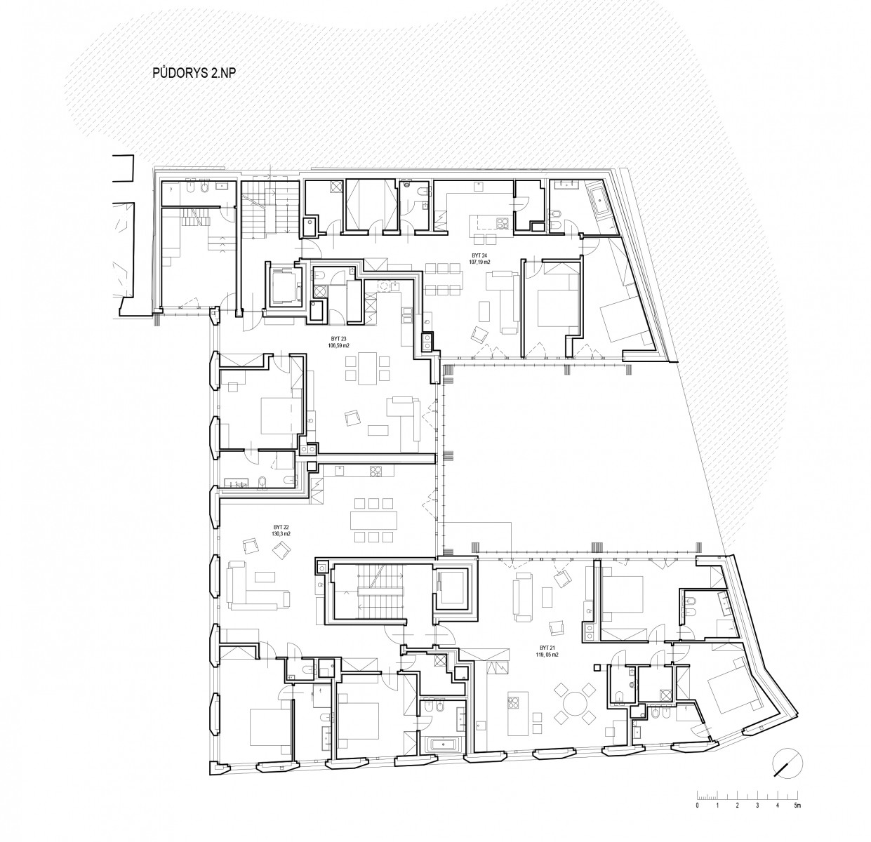
Novostavba, které se říká Rezidence Gotthardská, na stopu předchozího kancelářského domu navázala. Má tři křídla uspořádaná kolem vnitřního čtvercového dvora, jeho čtvrtou stranu tady uzavírá stěna k zahradě souseda.
Ačkoliv se ze střechy otevírají daleké výhledy, dům není vyšší než jeho sousedi. Má tři nadzemní podlaží a obsahuje dohromady třináct bytů. Všechny se otevírají směrem do dvora, kam směřují francouzská okna vysoká od podlahy až ke stropu, plné stěny byly tímto směrem zrušeny. Ke stínění a možnosti vytvoření intimity bytů slouží venkovní dřevěné skládací lamelové okenice.
Směrem do ulice je všechno jinak, sklo nahrazuje omítnuté zdivo. Z Gottharské je to tedy dům reagující na podobu zástavby nejbližšího okolí. Má sokl i římsu, o kterých Jan Nedvěd říká, že jsou „negativní“, tedy že z fasády nevystupují ven, jak je to u těchto prvků nejčastější, ale jsou zatlačené směrem dovnitř. Dalším ozvláštněním jsou nepravidelná ostění s proměnlivými sklony a šířkami. Všechny okna mají stejný formát, díky ostěním ale působí, jako by jejich velikosti byly různé. Je to takový optický trik. „Původně jsme zamýšleli udělat okna v různých velikostech. Památkáři však požadovali, aby měly pravidelný řád. Nepravidelnost jsme tak fasádě vnesli jinak,“ říká Jan Nedvěd.

NEDVEDARCHITEKTI o rezidenci ve své autorské zprávě píší jako o stavbě „propojují klasické prvky reflektující místní genius loci s jazykem současné architektury“. Mezi ty klasické patří právě okna v ustáleném formátu, sokl, římsa, omítnuté zdivo nebo sedlová střecha. Ozvláštnění do stavby přinášejí zmiňované nepravidelnosti, střešní krytina v antracitové barvě nebo metalický nátěr, který je nanesen na jinak ručně kartáčovanou hrubou omítku v šedo-pískové barvě. Pod slunečními paprsky hází bronzové odlesky, dům se decentně třpytí.
Architektonickou kvalitu novostavby a její kontextuálnost nedávno ocenila taky porota České ceny za architekturu 2024. Rezidence Gotthardská se ocitla mezi vyhlášenými semifinalisty. Obecnou shodu nad pozitivním přínosem realizace pro její prostředí by se ale mezi domácími odborníky na historickou architekturu najít nepodařilo – Jan Nedvěd přiznává, že některým památkářům vadí, že se kvůli ní muselo bourat. Při pohledu na stavbu je ale patrný silný a přesvědčivý výraz, který původnímu domu chyběl.
Více k tématu
S jeho promyšlenou formou jdou ruku v ruce použité kvalitní materiály. Bydlet se v rezidenci bude pohodlně. Má vlastní podzemní garáž, téměř veškerou užitnou plochu zabírají velké byty, společné prostory jsou totiž minimalizované jen na dvě schodiště s výtahy. Díky tomu může mít nejmenší byt necelých 100 metrů čtverečních, největší přes 215. Není to ale bydlení pro každého. S prestižní lokalitou a kvalitní stavbou jdou dohromady taky prémiové ceny, 3+kk tady vyjde na něco přes 24 milionů.
- Autoři: Jan Nedvěd, Viktor Sunek, Jakub Smolka, Jan Klempíř, Andrea Kocová
- Ateliér: NEDVEDARCHITEKTI
- Země: Česká republika
- Realizace: 2021-2023
- Zastavěná plocha: 637 m2
- Obestavěný prostor: 9 690 m3
- Podlahová plocha: 2 518 m2
- Investor: Karimpol group
- Dodavatel: Swietelsky