Priestorové obmezdenie pôvodnej školskej učebne bolo pretvorené v otvorený, čistý priestor so subtílným mobiliárom,
Foto: treea
2/18
Dominantou priestoru je kríž a presklená stena, oddeľujúca svetský a duchovný priestor,
Foto: treea
3/18
Sedenie kaplnky je zostavené z modulovateľných kubusov s variabilným umiestnením podľa obsadenosti a aktuálnej funkcie priestoru.,
Foto: treea
4/18
Celkový pohľad na priestor kaplnky,
Foto: treea
5/18
Detail sedacieho prvku zapadá do dizajnovej filozofie konceptu „štvorca“ ,
Foto: treea
6/18
Presvetlenie vstupnej predsiene. Vytvorenie „ducha“ transcendentálneho priestoru,
Foto: treea
7/18
Pohľad do priestoru knižnice. Vpravo presklenie medzi kaplnkou a knižnicou. V budúcnosti priestor pre pulty individuálneho štúdia a počúvanie hudby,
Foto: treea
8/18
Pohľad na priestor knižnice smerom do predsiene priestoru,
Foto: treea
9/18
Pohľad na priestor knižnice smerom do predsiene priestoru,
Foto: treea
10/18
Pohľad zo vstupnej haly školy. Pôvodný stav a stavebné práce.
Foto: treea
11/18
Pohľad zo vstupnej haly školy. Pôvodný stav a stavebné práce.
Foto: treea
12/18
Pohľad zo vstupnej haly školy. Pôvodný stav a stavebné práce.
Foto: treea
13/18
Pohľad zo vstupnej haly školy. Pôvodný stav a stavebné práce.
Foto: treea
14/18
Kotvenie presklenných dverí. Foto pred montážou dreveného obkladu stien.
Foto: treea
15/18
Nový stav,
Foto: treea
16/18
původní stav,
Foto: treea
17/18
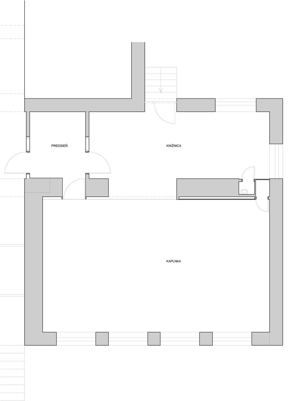
Základna koncepcia parciálnych častí navrhovaného priestoru. Filozofia „štvorca“,
Foto: treea
18/18