
V Modřanech vznikl prosklený bugalov od ateliéru Kunc
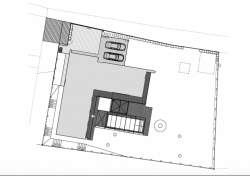
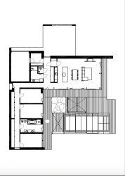
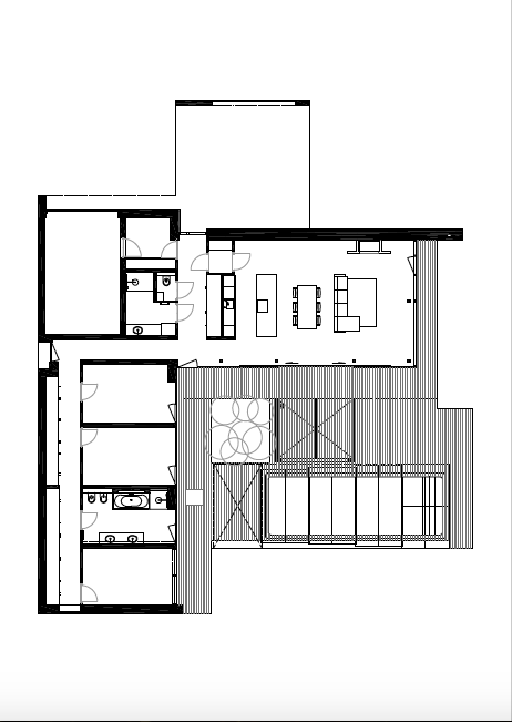
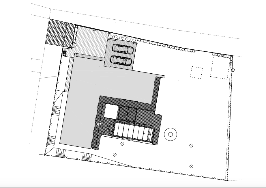
Hlavním přáním investorů bylo přirozené propojení bydlení se zahradou. Ateliér Kunc proto na pozemku na konci zástavby v pražské čtvrti Modřany postavil přízemní bungalov s prosklenými plochami. Velký důraz byl kladen na venkovní prostory – dům obklopuje pergola s terasou a bazénem a dva typy zahrad. Spojení s krajinou doplňuje také použití přírodních materiálů v exteriéru i interiéru. Majitelé oceňují blízký vztah s architektem, ze kterého vzniklo pohodové bydlení na míru jejich životnímu stylu.
Atelier Kunc Architects , 10. 5. 2018
- Autoři: Michal Kunc, Michal Matějíček
- Ateliér: Atelier Kunc Architects
- Země: Česká republika
- Město: Praha 4
- Datum projektu: 2009
- Realizace: 2016
- Užitná plocha: 175.00m2