Velká proměna stísněného bytu ve starém domě
Byt s uzavřenými dispozicemi v domě ze 60. let proměnilo pražské studio Ti architekti v moderní a vzdušný domov s několika zajímavými detaily. Prostor sjednotila bílá barva stěn, dveří a většiny nábytku, která příjemně kontrastuje s masivními parketami a dalšími dřevěnými doplňky v přírodní barevnosti. Byt se rozprostírá přes celou šířku patra, čímž získává přístup na balkon ze dvou protilehlých stran hlavního obytného prostoru.
EARCH.CZ , 8. 12. 2022
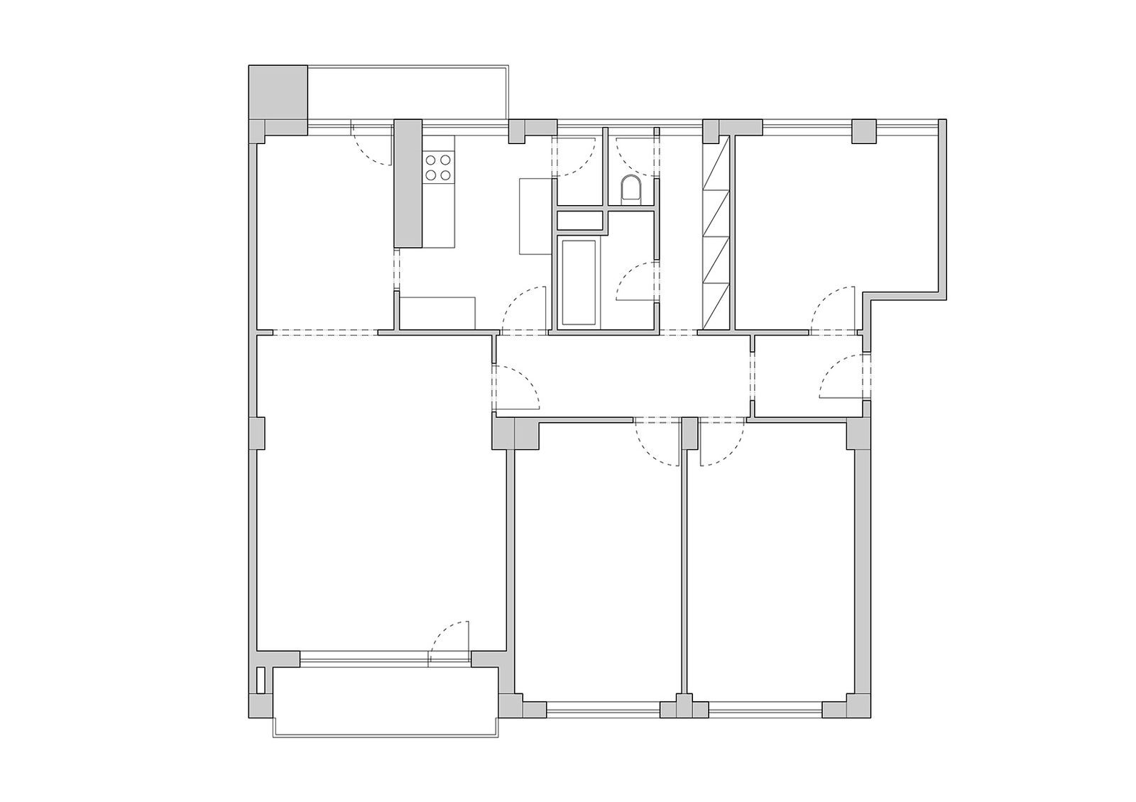
Architekti přistoupili k úpravě celkové dispozice bytu, který se nachází v jednom ze starších bytových domů v Praze z druhé poloviny minulého století. Z původní dispozice 5+1 vzniklo stavební úpravou 4+kk. Původně byla totiž každá místnost bytu uzavřená stěnami a příčkami, což bránilo celkové komunikaci vnitřních prostor. Možnost průhledů napříč celým bytem výrazně přispělo k čitelnosti a zpřehlednění bytu.

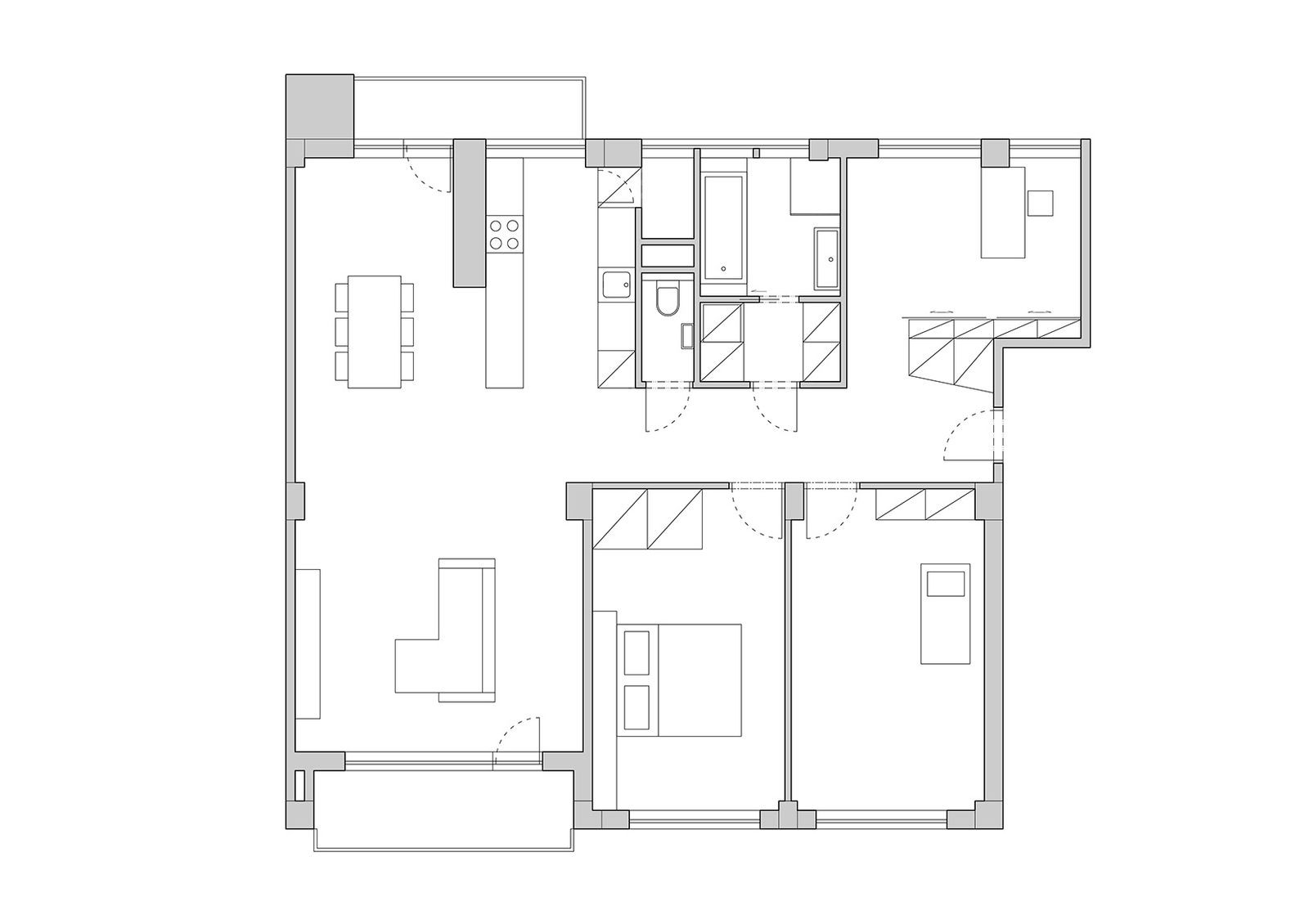
Hlavní společenskou částí domu se nově stal velký prostor spojující kuchyň, jídelnu a obývací pokoj. Změn se dočkalo i jádro umístěné ve středu dispozice a prostor pracovny. Příčka zmizela i v místě zádveří, které se tím jasně provzdušnilo a propojilo s hlavním prostorem bytu. Pracovnu nacházející se po pravé straně od vchodových dveří nově odděluje pouze nábytková stěna.

Bez stavebních úprav zůstala pouze ložnice a dětský pokoj. Svým zařízením a zvolenou barevností ovšem odpovídají celkové koncepci bytu, který definuje bílá barva v kombinaci s měkkými odstíny dřeva v přírodní barevnosti.

Byt se rozprostírá přes celou šířku patra, což mu umožňuje výborně prosvětlení a také přímý vstup na balkon hned ze dvou stran. Výrazným prvkem hlavního obývacího prostoru se stala stěna s chytře využitou kari sítí, která se běžně používá jako výztuž betonu. Zde ovšem plní funkci „držáku“ rostlin, které časem celý prostor velmi oživí. Kromě zelené stěny architekti byt ozdobili ještě jedním atypickým prvkem, který odkazuje na celý proces realizace. „Místo obrazu či autorského prvku jsme na stěnu zavěsili kolo (autentický dopravní prostředek na kontrolní dny) jako symbolickou parafu za dokončeným projektem,“ doplňují.

Více k tématu
- Ateliér: ti architekti
- Autoři: Martin Machů, Anna Holešovská
- Země: Česká republika
- Město: Praha
- Realizace: 2017