
Vilu v Beskydech od studia TREF-Architekti pokrývá struktura z hliníkového plechu
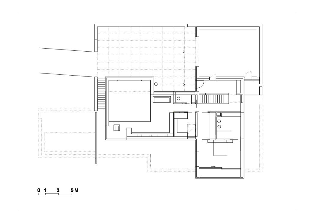
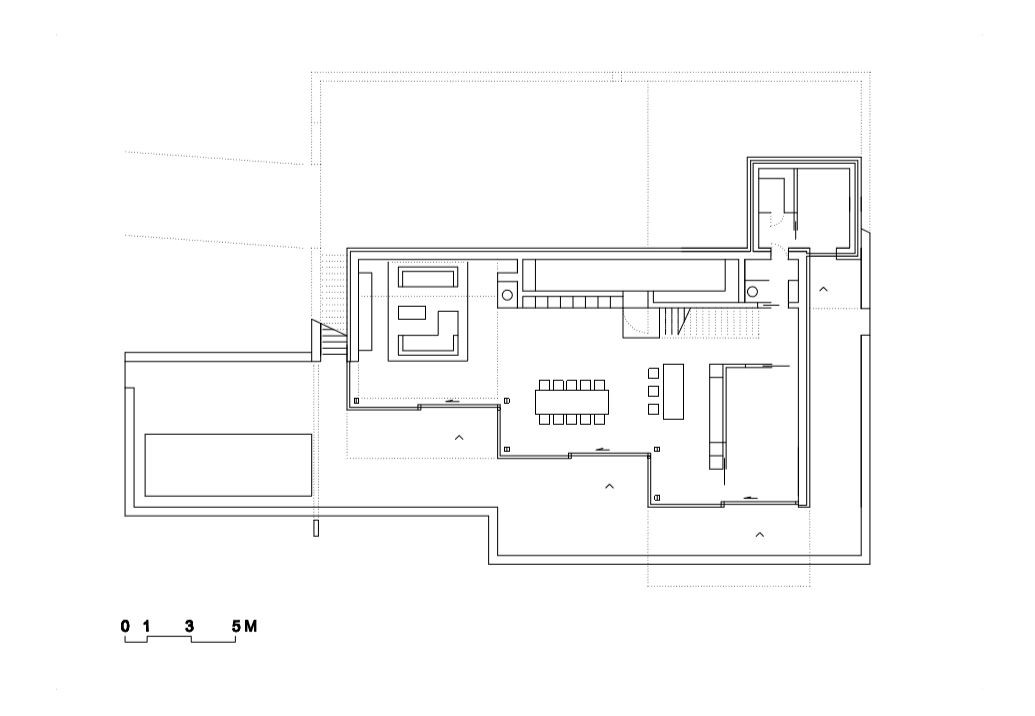
Ze svažitého terénu Beskyd u Valašského Meziříčí vystupuje rodinná vila z dílny místního ateliéru TREF–Architekti, jejímž předobrazem se stal trochu překvapivě dřevěný evangelický kostelík z konce 18. století nacházející se nedaleko vily. Architekti se inspirovali jeho dualitou exteriéru a vnitřních prostor, kterou převedli do jazyka současné architektury. Vznikla tak pasivní dřevostavba kombinující přírodní materiály s technicistní obálkou z perforovaného trapézového plechu.
TREF-Architekti , 13. 11. 2018
- Autoři: Zdeněk Trefil
- Ateliér: TREF-Architekti, TREF-Architekti
- Spolupráce: Petr Ramík, Zoe Malovcová, Patrik Obr, Tomáš Chytka
- Země: Česká republika
- Město: Valašské Meziříčí
- Užitná plocha: 394.00m2
- Poznámka: Výtvarné dílo v interiéru - Jan Zemánek