Architektura
/
interiér
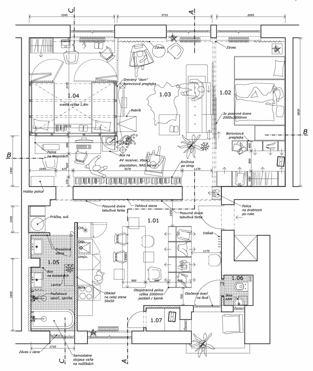
Žádný pokoj, přesto byt
Spíš než o byt, jak ho znáte, jde o jednu společnou plochu. 100 m2 bratislavského experimentu si neklade za cíl okouzlovat návštěvy, jde hlavně o bydlení pro celou rodinu. Nahuštěnost všech funkcí však zákonitě vyvolává otázku – dokáží žít blízcí opravdu blízko sebe?
toito architekti , 25. 8. 2016
- Autoři: Tomáš Szöke, Katarína Príkopská, Ivan Príkopský
- Země: Slovensko
- Realizace: 2013
- Město: Bratislava
- Datum projektu: 2012
- Realizace: 2013
- Užitná plocha: 100.00m2
- Foto ©: Katarína Príkopská