Nejlepší byty roku 2025. Kvalitní bydlení lze vybudovat v paneláku i na půdě
Interiéry bytů jsou ty nejmenší stavební projekty, pro své obyvatele ale znamenají skoro nejvíc – jejich domov. Přinášíme pět domovů z uplynulého roku, kde architekti a architektky našli řešení na míru konkrétnímu prostoru i lidem.
Karolína Vránková , 30. 12. 2025
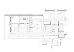
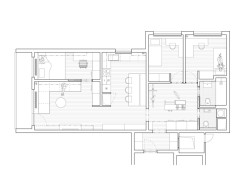
Panelák se závěsy
Z bytu v paneláku udělaly interiérová designérka Iva Hájková a architektka Kateřina Šmardová nadstandardní bydlení. Hlavně díky rafinované hře s materiály a detaily. Potkává se tu lité teraco s masivním dřevem, obnaženým betonem, průsvitnými závěsy, které celkový dojem změkčují. Zařízení je převážně vyrobené na míru.

Zároveň se ale měnila dispozice, zvětšil se obývací pokoj, v jeho části vznikla pracovna, oddělená příčkou z průsvitného skla kopilitu. Zelenkavé sklo v kombinaci se závěsy dává pocit prostupnosti a proudění - trochu to připomíná vodu, proto autorky byt pojmenovaly „u vodopádu“. Interiér je to originální, a ještě na skvělé adrese v Praze na Žižkově. Takové bydlení v paneláku může překonat i novostavbu.
Celý článek zde.
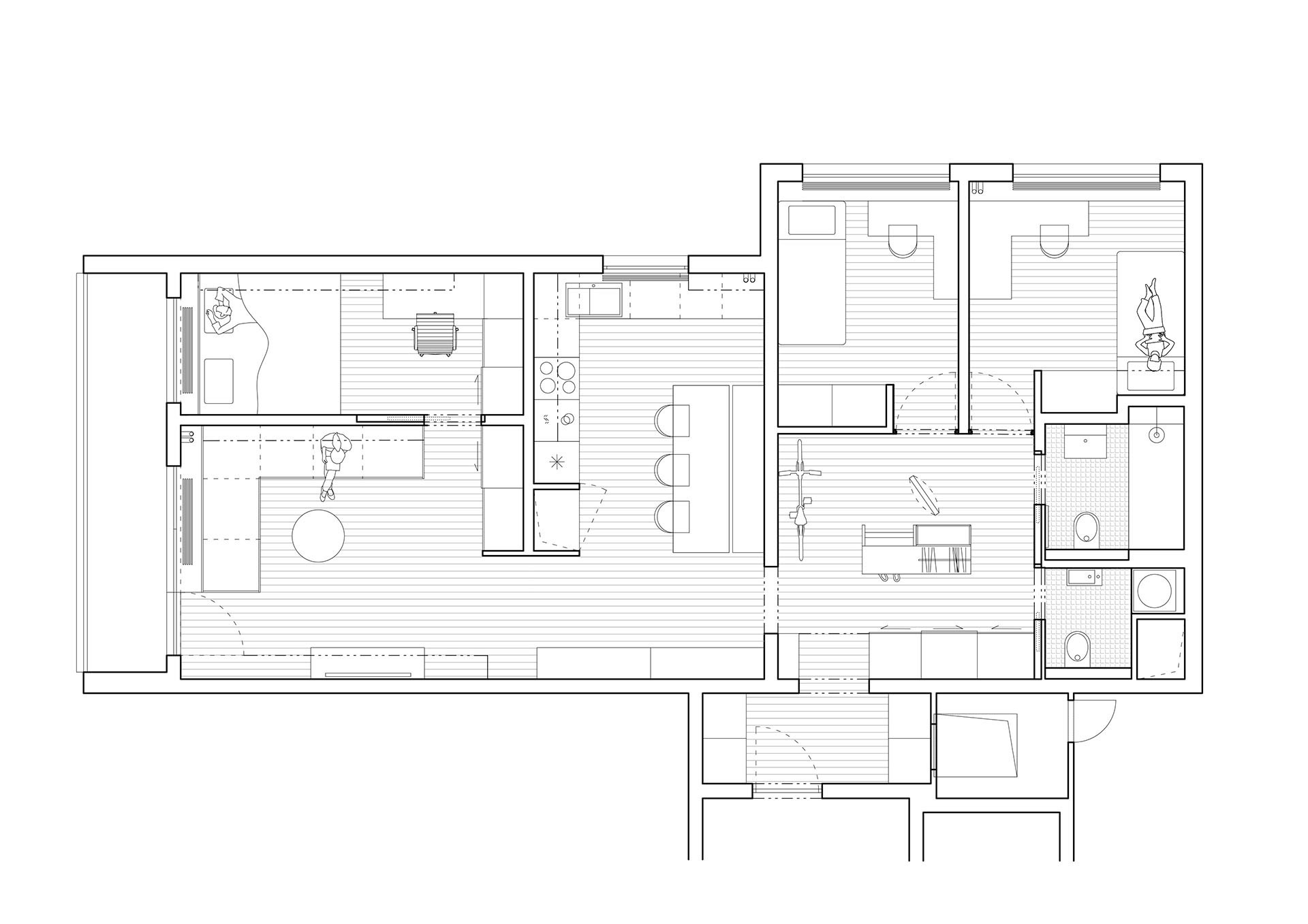
Méně chodeb, více pokojů
Také tenhle panelový dům je na dobré adrese v Praze na Jarově a byla by škoda se stěhovat pryč. Dvě děti ale vyrostly a toužily mít vlastní pokoj. Architektky Kateřina Hroudová a Markéta Smrčková tedy vytvořily další dětský pokoj a přestěhovaly rodiče, kterým navrhly novou ložnici, vzniklou oddělením části obývacího pokoje. Kromě toho zrušily některé chodby a místo nich vytvořily společnou hernu. A všude přidaly úložné prostory: skříně jsou v ložnicích, obývacím pokoji, i pod pohovkou jsou zastrčené velké šuplíky.

Zadání bylo pragmatické: aby se do bytu všichni vešli. Materiálové řešení je také především praktické a racionální. Hlavní roli tu hraje bíle natřená překližka a barevné akcenty. Výsledkem je čistý, příjemný a dobře zorganizovaný interiér.
Celý článek zde.
Jak z bytu 2+1 udělat 3+1
Padesát metrů čtverečných je dost pro mladý pár, když se jim ale narodí dítě, začne to být těsné. Architektka Markéta Bromová navrhla jak jeden pokoj rozdělit na dva: jeden dětský a jeden pro rodiče. Jsou to malé pokoje, rodičovská ložnice dokonce nemá ani vlastní okno a větrá se pomocí rekuperace. Zároveň se tam ale dá klidně a pohodlně spát a také se tam vejde hodně úložného prostoru. Společný obývací pokoj je tím pádem relativně velký a vzdušný.
Celý článek zde.

Z jednoho bytu dva – a barevně
Byt zděděný po předcích, zaplněný nábytkem od první republiky do dneška. Z něj bylo potřeba udělat současné bydlení pro rodinu. Zadání dostala Andrea Sobotková a její kolegové a kolegyně ze studia Facha architekti. Nejprve jasně definovali funkce jednotlivých prostorů, které byly původně trochu nejasné. Vznikl tak obývací pokoj, ložnice a jídelna s kuchyní, které dostaly adekvátní vybavení. V druhé části bytu je pak samostatná garsonka s vlastním příslušenstvím.

Rozdělení jednoho bytu na dva je první neobvyklý krok. Originální je také interiér. Zahrnuje řadu nápadných solitérů jako třeba kuchyňský ostrůvek spojený s jídelním stolem v modré barvě. Součástí nábytkového vybavení jsou také jakési „koláže“ vyrobené ze starých nalezených kusů za pomoci kovového systému na výrobu regálů. Výsledek je funkční i zábavný.
Celý článek zde.
Více k tématu
Půl milionu a vlastní práce
Kde by měl bydlet architekt, pracující pod značkou totalbrutal, než v prostoru s betonovou podlahou a hrubou omítkou, pod níž vyčuhují cihly? Jedná se o starou půdu, kde si vybudoval svůj podkrovní byt a ateliér ve spolupráci s architektonickou dvojicí svobodova blaha.
Podkroví činžovního domu bylo nevyužívané, bylo tu jen harampádí a holubí trus. Architekti půdu vyklidili a vymysleli základní koncepci budoucího obydlí. Podrobnou projektovou dokumentaci neměli, rozhodovali se přímo v procesu stavby.

Vzniklo patro, kde je ložnice a šatna a pod ním obytný prostor. Vše je tu surové, neopracované, recyklované. Kuchyňské skříňky mají dvířka ze starých nábytkových desek. Vodu přivádí odhalené trubky. Svítí se svítidlem ze skleněné trubky, která byla původně součástí varné technologie v lihovaru. A tak dále. Náklady na vestavbu byly 480 tisíc korun plus 800 hodin vlastní práce. Výsledek je působivý, dá se říci totálně brutální.
Celý článek zde.