Architektura / interiér

O pokoj víc

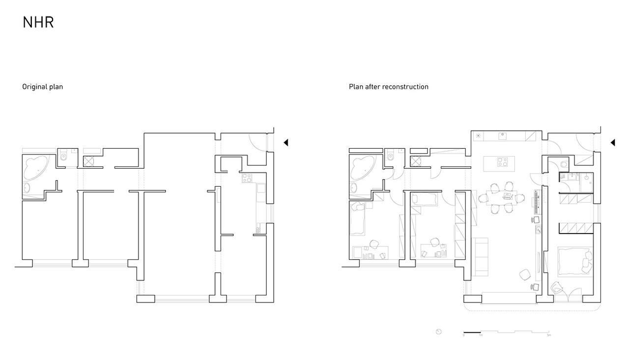
Jak do bytu, jehož výměra se nemění, přidat novou samostatnou místnost? Podobnou otázku si pravděpodobně klade mnoho rodičů, jejichž děti by rády „své soukromí“. V JRKVC to vyřešili rafinovanou změnou dispozice, která přinesla kýžené čtyřpokojové uspořádání bytu. Zkrátka dobře promyšlená přeměna, a ještě k tomu dobře vypadající.

JRKVC , 25. 11. 2016

  • Ateliér: JRKVC
  • Autoři: Peter Jurkovič
  • Země: Slovensko
  • Město: Bratislava
  • Realizace: 2011
  • Užitná plocha: 106.00m2
  • Materiál: překližka
  • Foto ©: Peter Jurkovič
  • autor: JRKVC *
  • publikováno: * 25. 11. 2016
  • zdroj: * Autorská zpráva

Nabídky práce

Mohlo by vás zajímat

Generální partner
Hlavní partneři