Historické budovy a hliníková okna. Jde to dohromady?

Výměna oken v historické stavbě vyžaduje přesnost v detailu. Hliníkové systémy umí zachovat původní členění a současně zlepšit energetiku.
EARCH.CZ , 14. 10. 2025 / Advertorial
Vyměňovat okna na historické stavbě znamená držet se detailu – bez něj budovy přicházejí o velkou část své hodnoty. I proto dnes architekti i investoři stále častěji sahají po hliníkových oknech. Z hliníku lze přesně tvarovat atypické profily a vytvořit propracované napodobeniny historických oken včetně jejich členění. Skvěle tak zastoupí například stará ocelová okna, na která jsme zvyklí z industriálních areálů.

S výrobou hliníkových systémů vhodných pro historické budovy má zkušenosti společnost Aluprof, přední výrobce okenních, dveřních a fasádních hliníkových systémů široké škály typů. „Hliníková okna se stala oblíbenou volbou při renovacích historických budov z několika důvodů. Zaprvé, hliník je velmi pevný materiál, který je také odolný proti působení atmosférických podmínek, jako je UV záření, voda nebo mráz. Proto hliníková okna nevyžadují náročnou údržbu a dosahují mnohem delší životnosti než tradiční materiály, jako je dřevo nebo PVC,“ říká Tomáš Buček, projektový manažer Aluprof System Czech.
Smysl dává i energetika. „Je totiž prokázáno, že v současnosti budovy zodpovídají až za 30 % globální koncové spotřeby energie, proto je tak klíčové vybrat si pro renovaci vhodná řešení,“ dodává Tomáš Buček. Toto tvrzení dobře dokládají i data International Energy Agency.
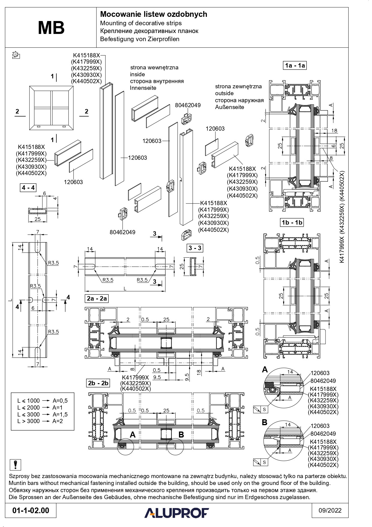
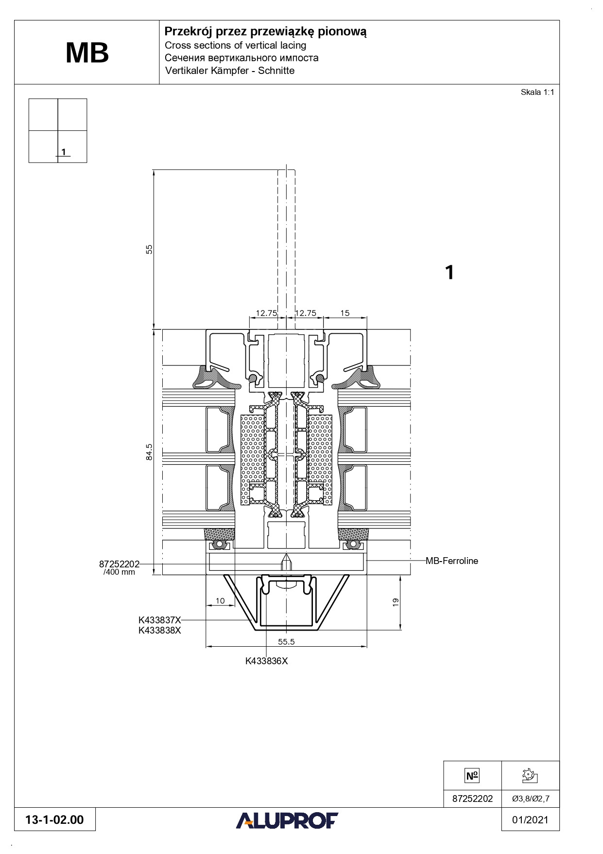
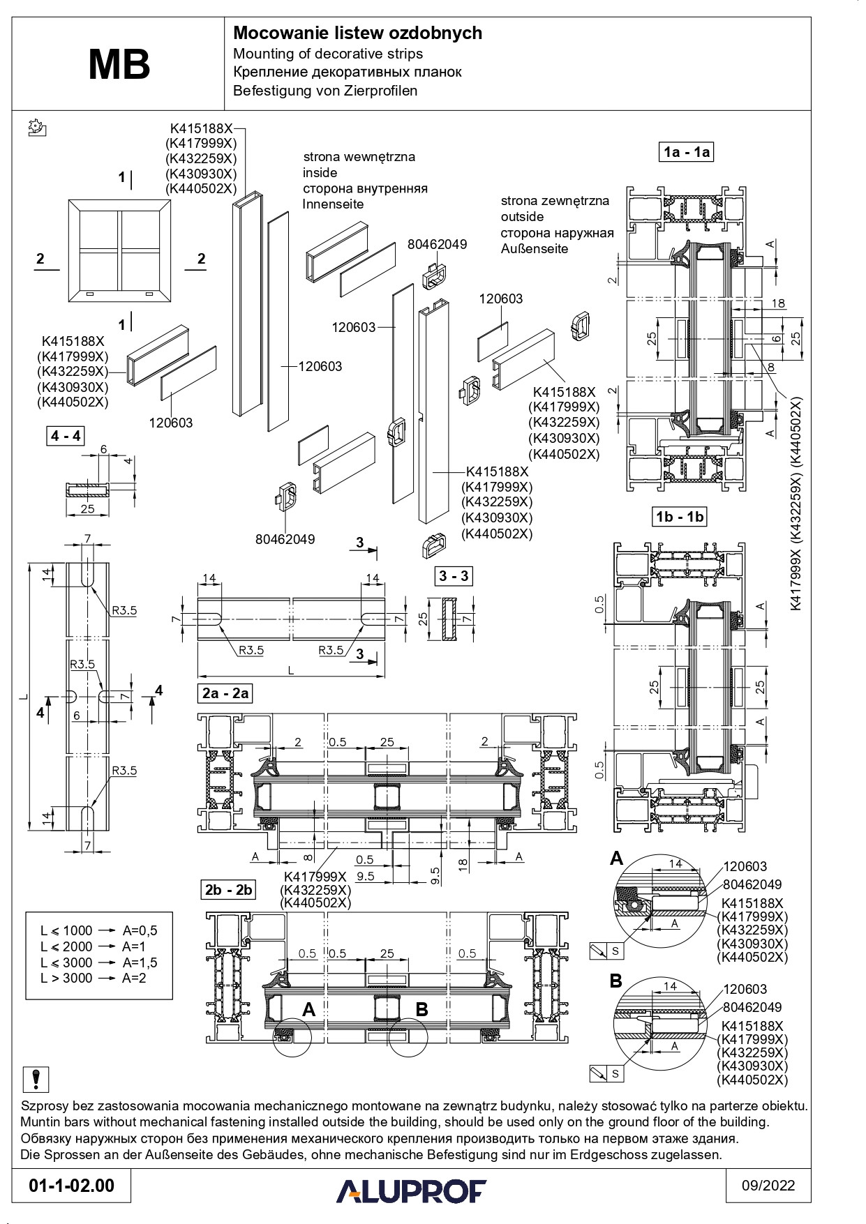
Společnost Aluprof nabízí několik hliníkových systémů, které se pro své vlastnosti a vzhled hodí právě pro rekonstrukce, a to i v historických prostředích. Patří mezi ně například dvojice MB-SLIMLINE a MB-FERROLINE. Oba systémy pracují s tepelně izolovaným hliníkovým profilem (s přerušeným tepelným mostem), dosahují vysoké vodotěsnosti a vzduchotěsnosti a lze je přesně přizpůsobit původnímu okennímu rastru.

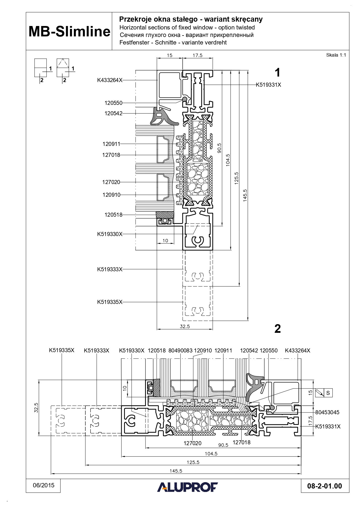
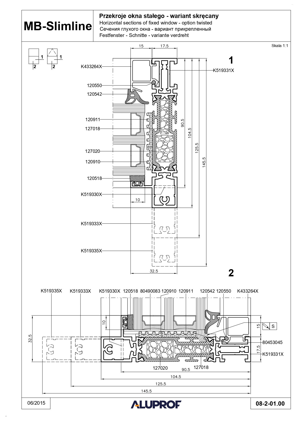
MB-SLIMLINE: pro subtilní vzhled
S MB-SLIMLINE je možné dosáhnout velmi úzkých rámů, takže se dobře hodí jako náhrada za původní ocelová okna. Systém nabízí dvě varianty okenních křídel – s tzv. viditelnými a neviditelnými profily. Výhodou neviditelných profilů je, že sjednotí vzhled otvíravých a fixních polí, takže z exteriéru není poznat, co se otevírá a co je napevno. I přes subtilní proporce rámů si systém drží vysokou vodotěsnost, vzduchotěsnost i akustiku a hodí se pro projekty, jejichž cílem je stavby učinit energeticky efektivnějšími.
Technické parametry (vybrané):
- propustnost vzduchu: třída 4 (PN-EN 12207:2001)
- vodotěsnost: třída E 1500
- součinitel prostupu tepla Uw: od 0,8 W/(m²K)

MB-SLIMLINE v praxi
Systém MB-SLIMLINE se může pochlubit širokou škálou referencí. Na EARCH.cz jsme psali například o konverzi památkově chráněné přádelny Crusader Works v Manchesteru, kde pomohl udržet původní rytmus oken a industriální charakter stavby z 19. století. Přestavba továrny na bytový dům proběhla podle návrhu architektonického studia shedkm, které o své práci říká: „Vždy ctíme původní charakter objektů, ale přesto jim vdechneme nový život.“ V Manchesteru si k tomu vzali na pomoc systém MB-SLIMLINE, použil se zde na všechna okna.
Příklad z domácí scény nabízí přeměna zlíchovského lihovaru na novou rezidenční čtvrť Lihovar Smíchov. Ta v sobě kombinuje novostavby se zbytky průmyslových objektů z konce 19. století – komínem a budovou varny, kde dnes sídlí galerie Musoleum. Právě tady pomohly tenké profily MB-SLIMLINE zachovat industriální estetiku fasád, a přitom vyhovět současným požadavkům na komfort a energetiku.
Více k tématu
MB-FERROLINE: rekonstrukce bez bourání
Systém MB-FERROLINE nabízí o něco širší typologické možnosti: z profilů lze vyrábět fixní okna, okna otevíravá ven i dovnitř a sklopná křídla. K dispozici je více variant vzhledu vnějších profilů, aby bylo možné přesně navázat na charakter historické fasády. MB-FERROLINE je ideální pro budovy s památkovou ochranou – mimo jiné díky renovačním rámům, které umožňují montáž bez demontáže původních rámů. Minimalizuje se tak riziko poškození špalet a okolního zdiva. Pohledové šířky byly navíc navrženy tak, aby rozdíl mezi starými a novými okny byl co nejmenší.

Technické parametry (vybrané):
- propustnost vzduchu: třída 4 (PN-EN 12207)
- vodotěsnost: třída E1350 (EN 12208)
- odolnost vůči zatížení větrem: do třídy C5 (EN 12210)
- třída proti vloupání: RC2
MB-FERROLINE v praxi:
Jako příklad uveďme konverzi památkově chráněné výrobní haly z roku 1928 v Kolíně nad Rýnem v rámci projektu Clouth-Quartier. Původně se v hale vyrábělo gumové zboží, dnes obsahuje byty, dětské kulturní centrum a kavárnu. Systém MB-FERROLINE pomohl zachovat původní výraz fasády, pro kterou byla charakteristická právě ocelová okna. Současně se podařilo výrazně zlepšit energetické parametry obálky.

Pro oba systémy platí, že estetika a výkon nejsou v opozici. Tepelně izolované hliníkové profily s přerušeným tepelným mostem umí výrazně snížit tepelné ztráty a zlepšit akustický komfort interiérů, přitom mají dlouhou životnost a minimální nároky na údržbu. Volba tvaru profilů, povrchové úpravy a barevnosti (od laků v paletách RAL a NCS až po dřevodekory) pak dovolí drobně ladit výraz tak, aby nové prvky nepoškozovaly charakter fasády, ale splynuly s původní logikou domu.
Dělicí lišty Industrial: industriální vzhled i se standardními systémy
Sahat po specializovaných systémech ale není jedinou možností. Industriální vzhled lze dodat i standardním konstrukcím – například z profilových řad Aluprof MB-79N, MB-86N nebo u HS portálů MB-77HS – a to pomocí nalepovacích dělicích lišt.

Tyto lišty jsou subtilní, lze je ohýbat, a proto umožňují vytvářet velmi čisté atypické členění v rytmu historických oken. V praxi se používají zejména tam, kde je potřeba vizuálně navázat na industriální vzhled, ale konkrétní výplň (např. běžné dveře či HS portál) k tomu ve svém standardu nemá předpoklady.
Kromě lišt lepených na sklo existují také dodatečně šroubované tvarové lišty, které lze osadit z vnější strany na dělicí příčky. Pokud je cílem pracovat s plasticitou povrchu a „odskočit“ od běžného vzhledu okna či dveří, tyto prvky to umožňují – a při příznivější ceně než u složitějších řešení. V praxi se toto řešení použilo opět v projektu Lihovar Smíchov, kde je možné nalepovací lišty vidět na oknech a dveřích novostaveb.
Všechna výše uvedená řešení jsou architektům a projektantům bezplatně k dispozici ke stažení ve formátu dwg po registraci na webu Aluprof – sekce Architekti.