Botek a Pauliny vs. měšťanský dům v Bratislavě: Výrazným soudobým zásahem jsme si jistí nebyli. Hodnoty minulosti musíme respektovat
Andrej Botek a Pavol Pauliny jsou architekti, kteří vedle vlastního projektování působí i na Fakultě architektury a dyzajnu Slovenské technické univerzity v Bratislavě, kde se věnují památkovým obnovám. Přednedávnem dokončili rekonstrukci historického domu na bratislavských hradbách, který propojili s katedrálou pomocí prosklené chodby. Jaké je to rekonstruovat památku? Proč nejsou odvážná řešení vždy tou správnou cestou? A co má společného stanovení správného způsobu rekonstrukce s přístupem lékaře k pacientovi?
Adéla Vaculíková , 14. 11. 2022
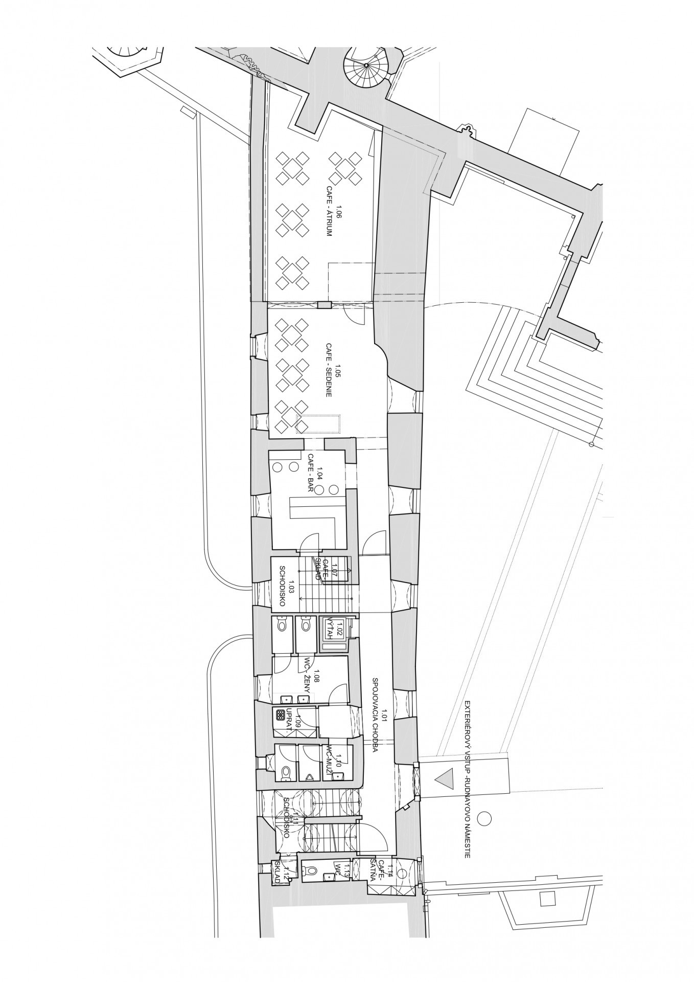
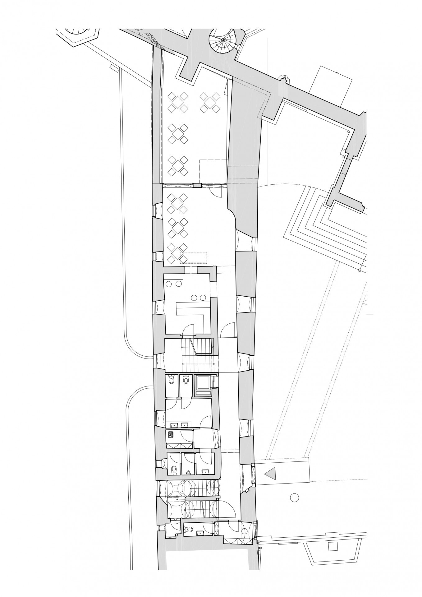
Přednedávnem jste dokončili rekonstrukci domu na bratislavských hradbách, který jste navíc propojili s katedrálou sv. Martina prosklenou chodbou. V historickém domě je dnes mimo jiné i informační centrum. Jaké máte na realizaci ohlasy?
Andrej Botek + Pavol Pauliny: Meštiansky dom bol dlhé roky v takmer ruinálnom stave, takže sme boli presvedčení, že jeho obnova pozitívne zarezonuje medzi laickou a aj odbornou verejnosťou. S prepojovacím objektom sme si už takí istí neboli. Predpokladali sme, že polovici ľudí sa to bude páčiť a tá zvyšná nás „ukrižuje“. Ostali sme milo prekvapení, že ohlasy boli len pozitívne a to ako z laickej, tak aj z odbornej verejnosti. Návštevníci oceňujú, že objekt poskytuje rôznorodé zázemie – kaviareň, informačný point s možnosťou kúpy turisticko-informačných materiálov a pod. Obľúbenou sa stala kaviareň a terasa, realizovaná medzi múrmi mestského opevnenia a stenou katedrály, čím dostáva špecifickú atmosféru. Bonusom je aj možnosť priameho prechodu medzi katedrálou a objektom Martinea cez novotvarový spojovací objekt. Nakoniec vyjadrením pozitívneho hodnotenia je aj skutočnosť, že rekonštrukcia dokonca dostala ocenenie Ministerstva Kultúry SR – Fénix 2021 – Pamiatka roka – za príkladnú obnovu.
Více k tématu
Podporovali památkáři nové výrazné vstupy do takto významného historického prostředí?
Andrej Botek + Pavol Pauliny: Pamiatkári neboli zo začiatku úplne naklonení nášmu návrhu, ale napokon sme si ich získali. Obaja sa zaoberáme pamiatkovou obnovou a navyše ju aj učíme na Fakulte architektúry a dizajnu na Slovenskej technickej univerzite v Bratislave. Z hľadiska metodického prístupu sme mali všetko dobre vyargumentované. V mieste dostavby presklenej chodby ku mestskej hradbe a katedrále sv. Martina sa v minulosti nachádzala prístavba – neskorostredoveká kaplnka, ktorá je zachytená aj na historických vedutách. S katedrálou bola spojená cez renesančný portál, zachovaný v južnej predsieni, takže sa priam núkalo jeho otvorenie a sfunkčnenie. Aj v mestskej hradbe sa už nachádzal starší zamurovaný otvor, ktorý realizovali v 19. storočí. Obe tieto skutočnosti výrazne napomohli riešeniu i argumentácii. Ak by hradobný múr nebol býval v minulosti perforovaný, zrejme by nám nový prieraz neodsúhlasili. Pri hľadaní výrazu prepojovacieho objektu sme spracovali viacero variantov od náznakových rekonštrukcií až k novotvaru a zvíťazil napokon návrh, ktorý pracuje s novými materiálmi a tvarmi, čím je v kontraste s historickým prostredím. Okrem iného voľbe tohto riešenia napomohla aj skutočnosť, že zmienený otvor v hradbe bol mimo rozsah zaniknutej stredovekej prístavby a teda jej „rekonštrukciou“ by sa nevyriešil ťažiskový problém prepojenie cez hradby.

Původní dům jste zrekonstruovali velmi pietně. Co podle vás charakterizuje správný přístup k práci s památkami?
Andrej Botek: Z môjho hľadiska ide o uvedomenie si skutočnosti, že máme pred sebou systém hodnôt, ktorých nositeľom objekt je a ktoré tu zanechali minulé generácie ako svedectvo. Tieto hodnoty sme povinní rešpektovať a zachovať aj pre budúcnosť. Samozrejme, nie je možné pristupovať k obnove historickej architektúry formou púhej konzervácie, či doplnenia chýbajúcich substancií rekonštrukciou. Objekt musí žiť v dnešných parametroch a musí spĺňať rôznorodé technické, hygienické, bezbariérové a iné štandardy, ktoré samé osebe už znamenajú nutné zásahy a tým aj straty niektorých substancií. Medzi hodnotami musíme stanoviť istú hierarchizáciu, neznamená to však, že tie na menšej úrovni možno automaticky ignorovať. Architekt pri obnove musí zohľadniť celú škálu poznatkov o historickom vývoji objektu, jeho špecifikách, úpravách, ktorými prešiel a artefaktoch, ktoré obsahuje. Je potrebné v prvom rade rešpektovať tieto jeho špecifiká a až v druhom rade myslieť na svoju prezentáciu. Teda architekt pri obnove musí vychádzať z daného objektu a ten mať v prvom rade na zreteli. Nové zásahy ─ v zmysle vizuálnom ─ sú samozrejme potrebné, musia mať však svoje opodstatnenie.
Pavol Pauliny: Správny prístup k práci s pamiatkami by som charakterizoval ako prístup lekára ku pacientovi. Správna anamnéza, vyšetrenie formou výskumov, stanovenie diagnózy, stanovenie liečby a po terapii dlhodobé sledovanie. Ak všetci účastníci pamiatkovej obnovy sledujú kvalitné ošetrenie pamiatky, zachovávajú jej originálnu podstatu, autenticitu objektu aj miesta, tak sa obnova podarí. Samozrejme, pokiaľ ide o vkladanie novej kultúrnej vrstvy, tak na jej kvalitu a primeranosť je potrebné klásť čo najväčší dôraz.

Chybí na Slovensku větší odvaha při rekonstrukcích historické architektury?
Andrej Botek: To je otázka, ktorú vníma inak metodik – pamiatkár ─ a inak architekt. Už som povedal, že pri pamiatkovej obnove je v prvom rade dôležitý historický objekt s jeho hodnotami a až potom novodobý zásah. Odvážnosť je možná tam, kde neatakuje a neničí staršiu substanciu. Vítam ju pri nadstavbách, prístavbách, alebo pri riešení chýbajúcich artefaktov. Zastávam názor, že aj pri „odvážnych“ zásahoch sa nemôže architekt správať, akoby nebol ničím limitovaný. Za vizuálnou „odvahou“ sa často skrýva neschopnosť reagovať na historické hodnoty. Samozrejme vôbec nemám na mysli historizmi – to je falošná cesta. Som presvedčený, že okrem osobnej architektonickej kvality je potrebná aj skúsenosť a teoretické poznatky. Ak by som to zhrnul – pri práci so samotnou substanciou musia tvorivé ambície ustúpiť. Majú priestor pri doplňujúcich hmotách, artefaktoch a detailoch. Majstrovstvom je taká tvorba , kedy staré a vizuálne nové nie sú konkurentami, ale vytvárajú vyvážený komplex, kde každá časť má svoje nezastupiteľné miesto. Mnohé realizácie sú dokladom tejto tvorivej odvahy a vyskytujú sa stále častejšie.
Pavol Pauliny: Ak spočíva odvaha v pridávaní nových kultúrnych vrstiev, tak určite áno. Konzervatívny a opatrný prístup pamiatkárov k novej tvorbe je však z veľkej časti opodstatnený. Budem asi „strieľať“ do vlastných radov, ale pamiatková obnova je špecifická a nemôže ju robiť každý. Lekár internista nenapráva polámané kosti, hoci má ten istý titul ako ortopéd. Okrem talentu je poznanie, skúsenosť a najmä pokora pri práci s architektonickým dedičstvom podstatná.

Je vůbec potřeba, aby se nové vstupy do památek pokaždé na první pohled odlišovaly?
Andrej Botek: Toto je otázka, ktorú si teória pamiatkovej obnovy kladie už od 19. storočia a zaoberá sa ňou doteraz. Myslím, že je tu dôležitých viacero podmieňujúcich faktorov. V prvom rade je to otázka rozsahu nového zásahu. Ak doplním napr. chýbajúcu časť fasády, tak v rámci širšieho fasádneho celku použijem metódu kópie. Pri väčších hmotových úbytkoch som podľa situácie za prístup, ktorý doplní pôvodný tvar, pričom vo výraze (podľa okolností) môže ísť o voľnejšie repliky. Záleží na rozsahu, miere zásahov a komplexnoxti vizuálneho dojmu. Pri úplne nových doplnkoch, ako sú dostavby, nadstavby a pod., som samozrejme za vizuálne odlíšenie, ale súčasne som presvedčený, že je nutné výsledné harmonické spolupôsobenie s originálom. A to je možné širokou škálou prostriedkov – od náznakov až po jasný kontrast. Nedá sa však uplatniť jednotná metóda – vždy treba vychádzať z konkrétnej jedinečnej situácie.
Pavol Pauliny: Pokiaľ ide slohovú obnovu na základe exaktného poznania pôvodného stavu, tak som za to, aby sa zásahy do pamiatky na prvý pohľad neodlišovali. Príliš akademický prístup a zámerné zvýrazňovanie každej opravy, či kópie znehodnocuje harmonické vnímanie autenticity. Nemyslím tej založenej na originalite hmotnej podstaty, ale na tej vizuálnej, ktorá vytvára genius loci ─ atmosféru. Odlíšenie od originálu môže byť laikovi nepozorovateľné a okrem toho každý taký zásah je potrebné dokumentovať. Pokiaľ ide o obnovu formou náznakovej rekonštrukcie, alebo nové vstupy, tak sa prikláňam ku kontextuálnemu prístupu, ktorý necháva vyznieť originálnej pamiatke a nesťahuje na seba prílišnú pozornosť.
Společně působíte na Ústavu dějin a teorie architektury a obnovy památek na Fakultě architektury a dyzajnu Slovenské technické univerzity v Bratislavě. Jaké nejdůležitější hodnoty/principy/názory se snažíte svým studentům předat?
Andrej Botek: Snažím sa študentov viesť k chápaniu historickej substancie v jej dobových súvislostiach, v jej vzťahoch v prostredí a hlavne v jej hodnotách, ktorých je nositeľom. Chcem v nich vzbudiť rešpekt voči týmto hodnotám a súčasne mať citlivý, nešablónový prístup. Vediem ich k uvažovaniu o nových zásahoch, o ich vizuálnom a kompozičnom zdôvodnení a adekvátnosti. Snažím sa, aby prejavovali svoju tvorivosť, ale aby ju vedeli aplikovať adekvátne konkrétnej situácii.
Pavol Pauliny: Ak chcete prebudiť v študentoch lásku ku pamiatkam, tak im musíte ísť vlastným príkladom. Len tak Vám uveria a nechajú sa viesť. Za najdôležitejšie však považujem, aby pochopili, že byť architektom je služba spoločnosti a že k dosiahnutiu cieľa potrebujeme interdisciplinárnu pomoc od mnohých ďalších ľudí, hoci na pódiu pri odovzdávaní cien stojí väčšinou len architekt.

Které projekty rekonstrukcí památek se v Česku a na Slovensku podle vás podařily? A které nikoli?
Andrej Botek: O tých, ktoré sa nepodarili, nepovažujem za potrebné hovoriť. Principiálne odmietam realizácie, kde zachovaná substancia bola „vykuchaná“ a ostala len kulisa fasády. Alebo také prípady, kde sa na nových častiach použili falošné pseudohistorické výrazové prostriedky. Laik síce namietne, že takéto historizujúce zásahy vytvárajú vizuálnu jednotu, ale v skutočnosti ide o klamstvo. Dobrých realizácií máme našťastie mnoho. V Čechách spomeniem obnovu kostola sv. Anny v Starom Měste pražskom s uplatnením konzervačnej i náznakovej rekonštrukcie, alebo realizáciu arcidiecézneho múzea v Olomouci v rámci komplexu katedrály. Zo slovenských príkladov je to citlivá a súčasne odvážna rekonštrukcia farského kostola v Pezinku, Univerzitnej knižnice v Bratislave s invenčným prekrytím palácového nádvoria, alebo kostola sv. Mikuláša v Porube, kde sa museli zohľadniť cenné súbory stredovekých nástenných malieb, barokový maľovaný strop a pod.
Pavol Pauliny: Som fanúšikom prof. Václava Girsy a pamiatkové obnovy vedené jeho ateliérom považujem za špičkové nielen v Čechách ale aj vo svetovom meradle. Na Slovensku za posledný čas zarezonovala obnova Hospodárskej budovy na hrade Uhrovec, z industriálnych pamiatok Pradiareň 1900 a Jurkovičova Tepláreň, ale napríklad aj obnova nenápadného kostola sv. Jána Krstiteľa v Modre. Zlých príkladov je určite viac ako tých dobrých, nebudem konkrétny, stačí sa obzrieť okolo seba.
Jízlivá otázka na závěr. Nový nebo starý Istropolis?
Andrej Botek: Budem otvorene osobný. Stavbu Istropolisu (Domu ROH) som zažil ako študent Fakulty architektúry a vnímali sme ju ako mocenskú demonštráciu systému. Kritizovali sme jej hmotové riešenie, kde sa uplatňovali štandardné pravouhlé odskoky, vadila nám jednoliatosť fasádneho obkladu bez akcentov, nemožnosť definovania hlavného vstupu a pod. Hoci za jej návrhom stáli kvalitní architekti, nepovažujem túto stavbu za taký architektonický počin, ktorý by /okrem monumentálnosti/ mimoriadne vynikal z iných dobových realizácií. Počas stavby sami museli na žiadosť štátnych orgánov robiť rôzne doplnky a zmeny. Na druhej strane však oceňujem sálový komplex a viaceré kvalitné diela vtedajších umelcov, ktoré boli v rámci Istropolisu umiestnené. Osobne by som Istropilis nebúral, ale snažil by som sa o jeho „konverziu“ – o zlepšenie kvality priestorov, prípadne aj s hmotovými zmenami, či prestavbami. Som presvedčený, že sa to dá a je to väčšou známkou architektonického majstrovstva, ako zbúrať staré a postaviť nové. Na okraj chcem poznamenať, že v danom priestore stál tzv. Berchtoldov palác, budova z tretiny 19. stor., ktorý kvôli stavbe odstránili.
Pavol Pauliny: Radšej starý ako nový. Hoci som pri starom Istropolise (pôvodne Dome Revolučného odborového hnutia) vnímal nánosy komunistickej ideológie, ktorá mnohým ľuďom zničila život, tak išlo o dielo s výraznými architektonickými hodnotami, ktoré projektovala trojica špičkových slovenských architektov. Problém bol však zložitejší. Ekonomicky a energeticky neudržateľné dielo, ktoré mohol zobrať do svojej „opatery“ iba štát a dotovať jeho existenciu, dostal do rúk súkromný investor. Ten na možnosti úpravy starého Istropolisu, alebo výstavby nového komplexu realizoval dokonca architektonickú súťaž. Verejná diskusia a aktivity za záchranu diela tak prišli opäť s „křížkem po funuse“. V Bratislave bežná vec. Aj slávne bratislavské PKO (Park Kultúry a Oddychu) bolo zbúrané za podobných okolností.
