A3UM Ateliér - Rodinný dům Hainburg an der Donau

Investorom je jeden z dvojice architektov s rodinou. Úzky svahovitý pozemok sa nachádza priamo pod lesom v Hainburgu, s výhľadom na Dunaj. Pôdorys domu vychádza z tvaru pozemku.
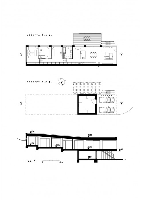
Dispozícia domu minimalizuje miestnosti na to najnutnejšie: žiadne závetria, zádveria, komory ani šatníky. Iba skriňová chodba otvárajúca sa do pracovne a občasnej hosťovskej izby, dve spálne a kúpeľňa. Denná časť pozostáva so spojeného priestoru obývacej izby, jedálne a kuchyne, vstupuje sa z terasy priamo do kuchyne. A hlavne je všetko spojené so záhradou. Namiesto garáže prístrešok vytvorený vykonzolovaním obývacej izby.
Architektonický výraz stavby logicky vychádza z prostredia v ktorom sa nachádza a zároveň ho ovplyvňuje a vytvára: tvar domu kopíruje sklon pozemku a minimalizuje terénne úpravy. Pri pohľade zo svahovitej záhrady je dom takmer nevditeľný, je prestrešený vegetačnou strechou, ktorá splýva s okolím. Pozemok sa nachádza v priamom dotyku s lesom a dom sa snaží čo najviac zapadnúť a nerušiť. Hnedá preglejková fasáda, drevená terasa a hrdzavé ocelové konštrukcie vytvárajú monochromatický efekt splývajúci s lesom.
V interiéri sú okrem okien použité iba dva materiály: pohľadový betón a drevo. V suteréne sa nachádza sklad a krytá parkovacia plocha pre dve autá. V nadzemnej časti, ktorá má tri úrovne je obývacia izba, vstup a kuchyňa s jedálňou, z ktorej sa vychádza na drevenú terasu, ktorá sa po odsunutí presklenej steny stáva obytným priestorom.
Prvú úroveň ukončuje kúpeľňa, ktorá je rovnako ako fasáda obložená exteriérovou hnedou preglejkou – veľmi odolným a bezúdrždovým materiálom. Našim obľúbeným. Druhú úroveň tvorí detská izba a pracovňa / hosťovská izba - ide o otvorenie chodby, ktoré ju presvetľuje a vďaka ktorému chodbu vnímate ako obytný priestor. V prípade potreby sa dá priestor oddeliť závesom. Tretia úroveň je rodičovská spálňa na celú šírku dispozície. Zo všetkých miestností vrátane kúpeľne je priamy prístup do záhrady.
Technické parametre
ŽB skelet, ŽB stropy, z interiéru pohľadové, z exteriéru zateplené 160mm minerálnej vlny, prevetrávaná fasáda je obložená veľkoplošnými exteriérovými prglejkovými doskami. Okná sú hliníkové s izolačným trojsklom, zatienené exterérovými žalúziami. Nábytok a priečky sú vyrobené z bukovej preglejky, podlaha drevená. Strecha je bezúdržbová vegetačná.
Technické vybavenie budovy je čo najjednoduchšie a pozostáva z podlahového kúrenia s plynovým kotlom a zásobníkom TÚV, voda a kanalizácia sú napojené na verejnú sieť. Ako doplnkový zdroj tepla a pohody slúži krbová pec na drevo.
- Autoři: Henrich Korec, Ladislav Jurík
- Ateliér: a3um ateliér
- Země: Rakousko
- Město: Hainburg an der Donau
- Datum projektu: 2015
- Realizace: 2017
- Zastavěná plocha: 162.00m2
- Plocha pozemku: 1 200.00m2
Související architekti
Související ateliéry a firmy
Mohlo by vás zajímat












