A’Bodega

Víno, sláma a zvířata
Staré kamenné vinařství Ribeira Sacra (Galicia) bylo (a je) tvořeno dvojicí heterogenních staveb spojených do jednoho domu, kde se v průběhu času rozvíjely činnosti jako je výroba šunky, vína a alkoholických nápojů. To vše vedle svého dalšího účelu, a sice ukládání slámy a zázemí pro zvířata.
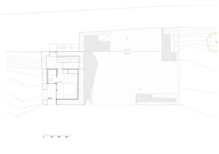
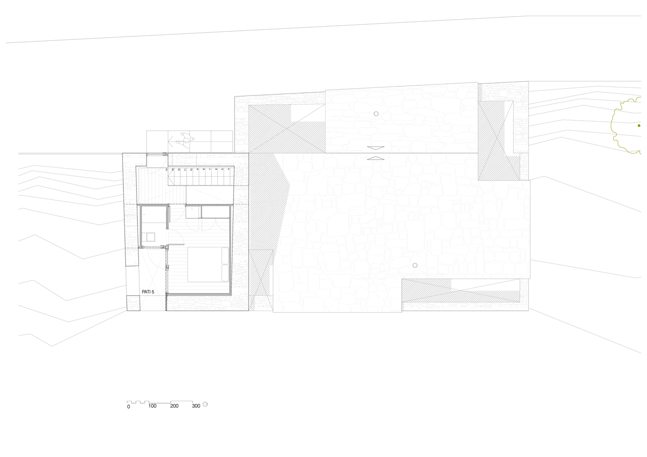
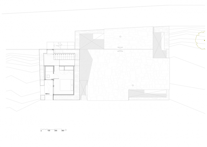
Tento projekt plně využívá jednoho z těchto starých sklepů a udává mu novou formu pro vytvoření moderního domova. Projekt je založen na třech základních principech: respekt vůči původnímu objemu, použití tradičních materiálů a řešení oken a větrání.
- Respekt vůči původnímu objemu a místní architektuře. V obci panuje na poli architektury harmonie: kamenné budovy tolerantně umožňují růst divoké trávě. Tento návrh nechce porušit tuto rovnováhu, takže autoři se již při počátečním návrhu drželi původní půdorysné stopy, aby nenarušili léty zaběhnutý řád. Autoři ve svém návrhu ctí tradiční místní hodnoty (kamenné zdivo, tektonika, minimum oken), současně však dodávají domu jeho vlastní tvář. Původní objem domu byl tvořen dvěma základními hmotami, které zůstávají prakticky beze změny: dvoupodlažní stodola a přízemní budova, která dříve sloužila pro ustájení zvířat a v části jako vinný sklep. Obě části svým západním průčelím tvoří jakousi hradbu od blízké komunikace, naopak východním směrem se pak dům otevírá do volné krajiny.
- Místní materiály. Autoři vytvořili jakousi obálku tvořenou kamennou zdí a břidlicovou střechou (oboje z materiálu získaného z původního starého domu). Druhým hlavním použitým materiálem je pak dřevo. Detaily stavby byly řešeny v souladu se znalostí místního stavitelství.
- Světlo, větrání a výhledy. Bylo nutné zajistit optimální vnitřní klimatické a světelné podmínky potřebné pro pohodlné a komfortní bydlení, ale v neposlední řadě šlo majitelům o to, aby si mohli vychutnat nerušené výhledy do okolní krajiny.
Dům bez oken
Tak nazvali zrekonstruovanou stodolu jeho obyvatelé. Tato přezdívka vysvětluje velmi dobře strategii, kterou autoři zvolili pro vyřešení nelehkých stávajících podmínek, a sice částečného zapuštění budovy a velmi širokého prostoru. Vytvořením prosklených rohů dosáhli autoři proměny velkorysých diagonálních pohledů z domu, navíc velkoformátové prosklené plochy zajistí dostatečné vnitřní osvětlení i příčné větrání. Tento koncept nedefinuje přímo okna, ale vytvořením jakýchsi dutin na fasádách vytváří určující architekonický výraz domu s typickou tektonikou domu víceméně bez oken, ale současně velmi dobře propojuje interiér s exteriérem a umožňuje tak přirozenou komunikaci s okolní krajinou.
- Autoři: Estel Ortega Vazquez, David Pou van den Bossche
- Ateliér: Cubus, Taller d’Arquitectura
- Země: Španělsko
- Město: Doade - Ribeira Sacra
- Realizace: 2015
- Poznámka: Foto © Adrià Goula Sardá
Související architekti
Související ateliéry a firmy
Mohlo by vás zajímat


























