Air ateliér - Víkendová chata Brná

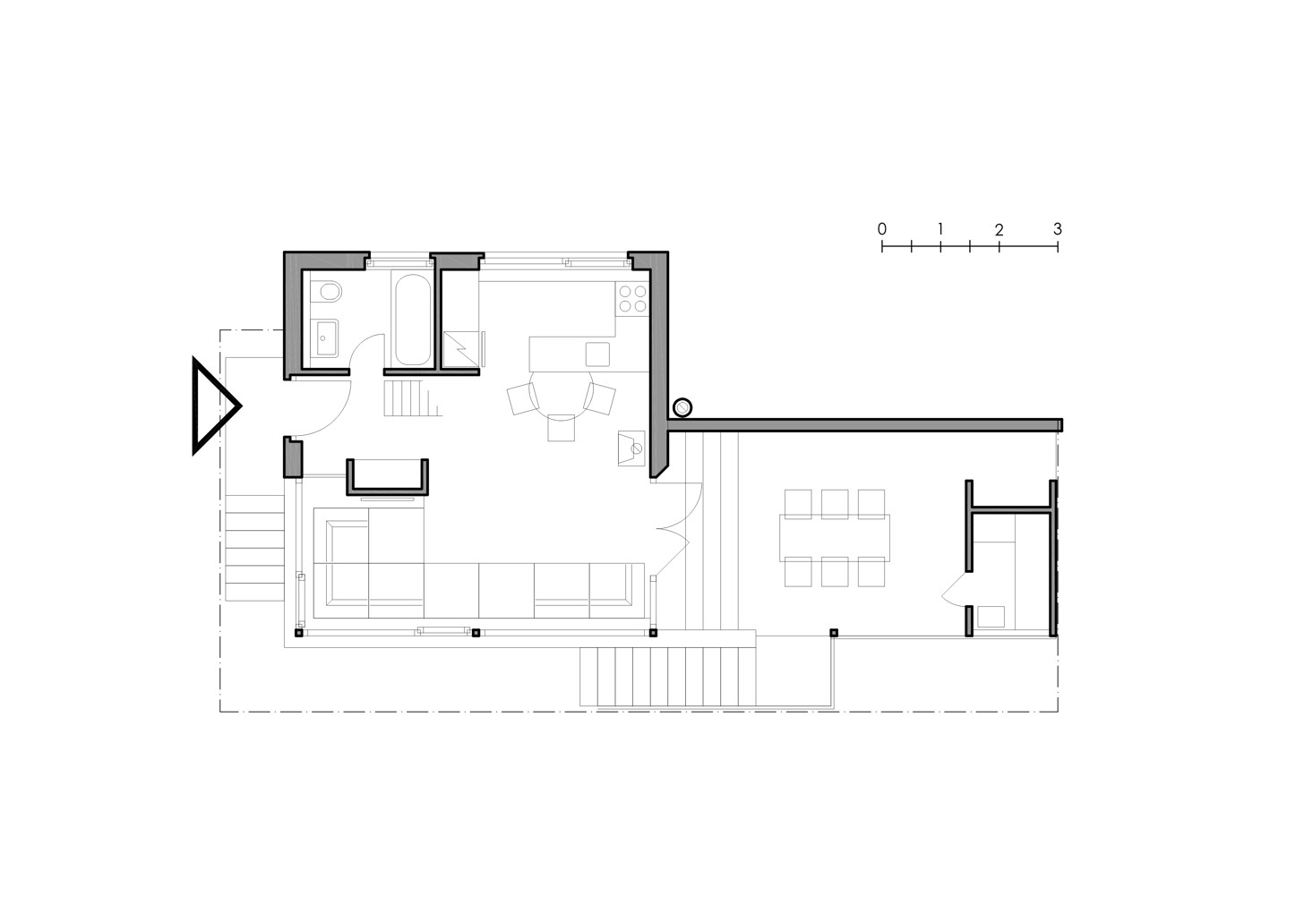
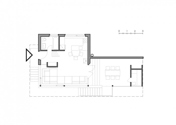
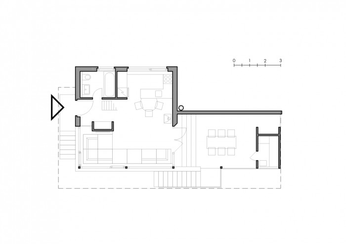
Brná je částí obce Ústí nad Labem. Prostor údolí mezi vysokými kopci, kterým protéká řeka Labe, umožňuje výstavbu podél břehu, nebo ve strmých svazích. Naše parcela se nachází přímo na břehu, mezi řekou a souběžně vedoucí železnicí. Lokalita je zastavěna izolovanými domy a chatami v zeleni. Přáním investora bylo navrhnout na půdorysu stávající chaty nový dům, který umožní rekreaci rodiny od jara do podzimu.
Na základě rozboru řešeného území byla nad stávajícím vyvýšeným suterénem vystavěna nová konstrukce chaty. Velkými okny je propojena s krajinou okolo řeky a naopak masivní zděnou stěnou odcloněna od hluku železnice. Celý objekt sjednocuje dřevěná lehká střecha nad přízemní částí chaty, s velkými přesahy nad venkovními schodišti a okny. Střecha dále přechází nad terasu a svou konstrukcí tak propojuje interiér s exteriérem.
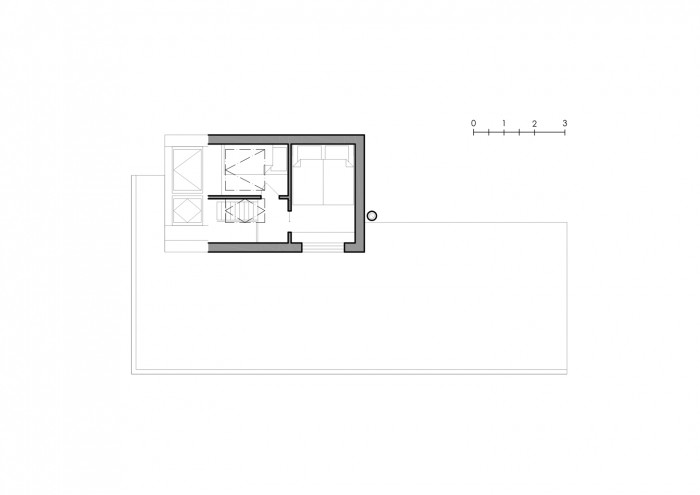
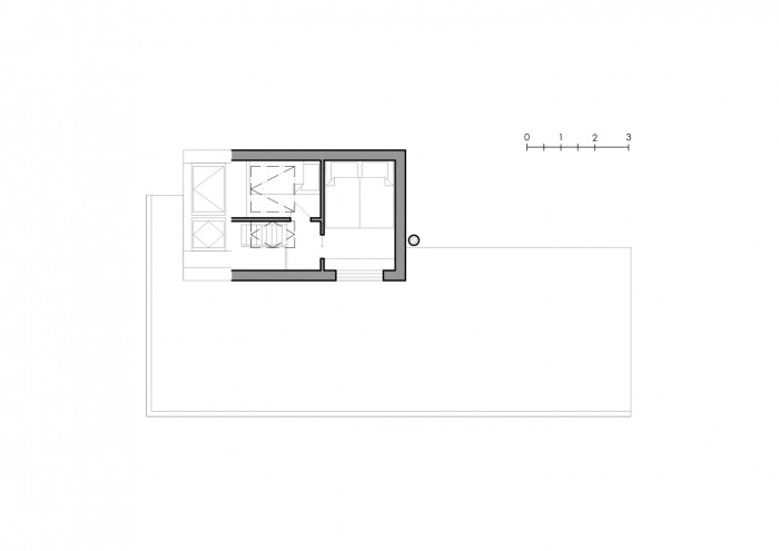
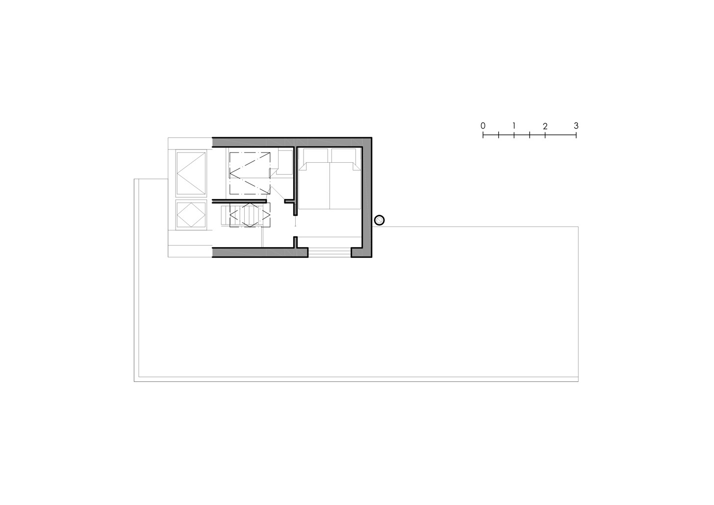
Nad půdorysem obytné části je navrženo spací patro se dvěma malými kajutami. Hmota patra byla volena tak, aby celkově nepůsobila mohutně a elegantně doplnila přízemní lehkou část.
- Ateliér: Air ateliér
- Země: Česká republika
- Subdodavatel: Kastis, s.r.o.
- Město: Ústí nad Labem - Brná
- Datum projektu: 2016
- Realizace: 2018
- Užitná plocha: 72.00m2
- Zastavěná plocha: 45.00m2
Mohlo by vás zajímat












