Archanti - Byt v Brně
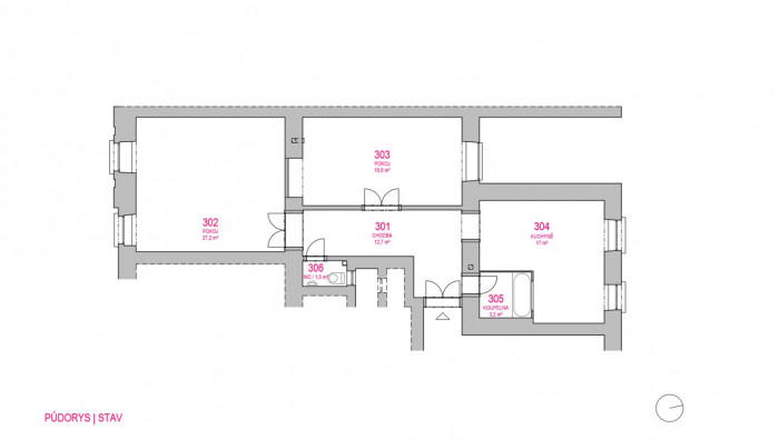
Byt se nachází ve třetím podlaží bytového domu z r. 1906 a má severojižní orientaci (jih - ulice, sever - vnitroblok). Před rekonstrukcí šlo o dvoupokojový byt s obytnou kuchyní, koupelnou a toaletou. Původně zabírala plocha bytu celou jednu polovinu půdorysu bytového domu, v polovině 20. století byl však mezi dvěma symetrickými bytovými jednotkami vytvořen byt třetí, a to zmenšením každé z nich. Čistota dispozice vycházející z konstrukční logiky domu tím byla poněkud narušena, přesto však šlo o potenciálně příjemný a v podstatných momentech (vstup, obývací pokoj) velkorysý prostor.
Navzdory velkorysé výměře bytu (82 metrů čtverečních) byla jeho nedostatkem poněkud nepřirozená dispozice, kdy se v prostoru chodby křížily provozní vazby společenské a klidové zóny bytu. Konkrétně se tento fakt projevoval v odtržení obývacího pokoje (při jižní fasádě) od kuchyně (situované u fasády severní). Podobně narušena byla vazba ložnice - koupelna. Kromě toho trpěly prostory bytu celkovou morální zastaralostí všech materiálů, povrchů a technického vybavení, zejména rozvodů TZB (topení, plyn).
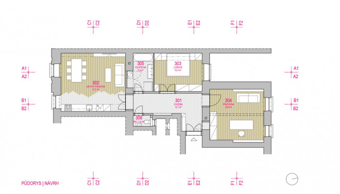
Cílem úprav bylo přeorganizování dispozice tak, aby mohla být vytvořena plnohodnotná společenská (denní) zóna bytu a život obyvatel(e) bytu se mohl koncentrovat v jednom místě, namísto roztříštěného fungování na trase kuchyně - chodba - obývací pokoj. Stejně důležitým úkolem bylo přeřešení ložnice za účelem lepšího provázání s hygienickým zázemím a v neposlední řadě vytvoření pracovny kombinované s prostorem pro občasné hosty.
Kromě dispozičních změn bylo pak samozřejmým cílem úprav pozvednutí celkové technické a estetické úrovně bytu na soudobou úroveň standardu bydlení.
Po prozkoumání všech myslitelných variant uspořádání byl zvolen velmi decentní přístup, kdy jsou stavební zásahy redukovány na nutné minimum. To představuje vybudování nové koupelny rozdělením menšího z původních pokojů. Koupelna je situována při střední nosné zdi, v blízkosti napojení na ohřev vody a svislé vedení kanalizace. Protože byt disponuje v celé své ploše velkorysou světlou výškou (3,3 metru), je nově zbudována koupelna ve výšce 2,5 metru opatřena podhledem. Zbudování pohodlné koupelny na novém místě umožňuje dispozičně vyčistit původní kuchyni, ze které se v představeném řešení stává rozlehlá pracovna s prostorem pro přespání hostů (výhledově je možné v tomto prostoru uvažovat s jeho symetrickým přepažením, čímž by došlo ke vzniku čtvrtého pokoje). Co se týče v tomto místě zrušené kuchyně, návrh představuje variantu kuchyňské linky integrované do většího z pokojů, ze kterého se tak stává plnohodnotný obytný prostor, zahrnující kuchyni, jídelní kout a relaxační (obývákové) sezení. Kuchyňská část je do nového prostoru pomyslně vložena v podobě jakéhosi prostorového hada, který v sobě integruje kuchyňskou linku včetně vysoké sestavy, úložné prostory nad vstupními dveřmi do místnosti a napojení na parapet okenního otvoru. Ložnice je umístěna do menšího z pokojů vedle nově vytvořené koupelny. Využívá toho, že je tato místnost opatřena oknem vedoucím do jakési prosvětlovací proluky, nepříliš světlé, což však může být pro funkci ložnice výhodou.
Co se týče vstupního prostoru, jeho dimenze se nemění a jde spíše o úpravy renovujícího charakteru. Jsou zde navrženy nábytkové kusy bezprostředně za vstupními dveřmi ve smyslu úložných prostor, v podélné části chodby pak vzhledem k její šířce tuto funkci plní tři niky ve zdi, jež je fakticky obvodovou konstrukcí světlíku a díky čemuž tuto úpravu její tloušťka snadno umožňuje. Obecně je nové uspořádání vytvořeno s ohledem na celkovou vyváženost a správnou proporci jednotlivých prostor samotných i vůči sobě navzájem.
Výraz celého interiéru by měl být střízlivý, ale hravý. Barevnost je volena v jemné škále lomených barev bílé, šedé, světle hlinité a krémové a je doplněna výrazně sytými odstíny světlého dřeva (podlaha, parapety, police).
Výrazným výtvarným prvkem je pás nově dlážděné podlahy, vedoucí od vstupu chodbou, podél kuchyňské linky až k oknu v jižní fasádě. Stejná dlažba je použita i v koupelně a na WC. Použit je vzor kombinující výše uvedené barevné odstíny ve formě trojúhelníků, který je jakousi soudobou interpretací tradičních ornamentů.
Navržený nábytek je zhotoven na míru, v laku s odstínem lomené bílé, tak, aby hmota nábytku pocitově nezatěžovala prostory interiéru. V každé místnosti je pak použit horizontální akcent v odstínu přírodního dřeva, zpravidla ve formě polic a parapetů.
Důležitým prvkem interiéru je i jeho výškové členění, kdy je využíváno různých výšek stavebních otvorů (dveře a okna) k rozdělení jinak poměrně vysokých ploch stěn na dvě části s různým odstínem výmalby. Tomuto členění se podřizují i výšky nábytkových sestav, a přestože je tento princip aplikován ve všech místnostech, projevuje se v každé z nich trochu jinak.
Mohlo by vás zajímat



