ARCHITEKTI mikulaj & mikulajova - Rodinný dom C2
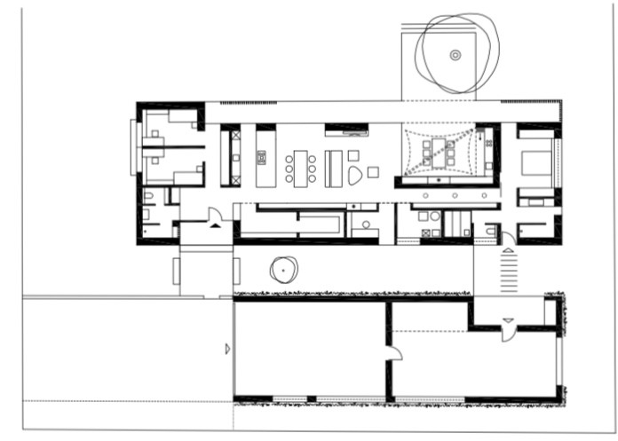
Dom C2 predstavuje bývanie v tichej zelenej štvrti pre rodinu, ktorá počas celého roka rada trávi voľný čas v exteriéri. Priestory domu sa preto prelínajú so záhradou a jadrom rodinného života sa stáva átrium s vonkajším krbom a s letnou kuchyňou.
S návrhom domu C2 sme zvíťazili vo vyzvanej architektonickej súťaži koncom roka 2012. Pokojná rezidenčná zóna mesta leží v tesnej blízkosti Váhu a je obľúbenou rekreačnou oblasťou. Rozľahlý rovinatý pozemok je situovaný na nároží tichej ulice, v zastavanej zóne rodinných domov. Veľkosť pozemku umožňuje rozdelenie funkcií do dvoch prízemných hranolov: zatiaľ čo samotný dom komunikuje s priestrannou záhradou a s vonkajším okolím, vedľajší objekt (garáž a telocvičňa) tvorí bariéru od severného suseda.
Kontúra domu vystupuje do popredia voči hmote garáže, ktorá je obrastená popínavou zeleňou a zatlačená v pozadí. Tak vzniká príjemná vstupná zóna pred domom, kde sa sukromný a verejný priestor prelínajú. Chceli sme narušiť zaužívanú hmotovú schému ulice, ktorú zvyčajne tvoria objekty garáží v popredí a až za nimi domy.
Keďže domáci radi trávia svoj voľný čas vonku, poskytuje návrh viacero foriem vonkajšieho pobytového priestoru: od otvorenej záhrady, cez kamennú záhradu medzi dvomi domami, priestrannú loggiu s výhľadom na stromy na nábreží, až po átrium, ktoré sa stáva ohniskom rodinného života a tiež architektonickým akcentom domu.
Koncepcia vnútorných priestorov logicky vyplýva zo situácie na pozemku a zo spôsobu života rodiny. Ústredný obytný priestor i súkromná zóna rodičov sú priamo prepojené so záhradou a južne orientovanou loggiou. Poobedňajšie preslnenie obytného priestoru zabezpečuje átrium, ktoré súčasne oddeľuje dennú a nočnú zónu domu. Otvorený krb, letná kuchyňa a tieniaca plachta z neho robia celoročne využívanú "vonkajšiu obývačku". Zóna detí je autonómnym priestorom, zámerne situovaným pri vstupe do domu.
Použité materiály evokujú teplú atmosféru rodinného bývania. Zvolili sme prírodné materiály, ktoré budú starnutím len získavať šarmantnú patinu. Na fasáde prevláda drevo, dôležité prvky domu ako vstup a átrium akcentujeme cortenom - pomaly hrdzavejúcou oceľou. Drevo z exteriéru plynule prechádza do interiéru domu, čo umocňuje ideu prelínania vonkajších a vnútorných priestorov a dodáva rodinnému obydliu útulnú a osobitú atmosféru.
- Autoři: Andrea Ambrovičová Mikulajová, Juraj Mikulaj, Radoslav Kurucz
- Ateliér: ARCHITEKTI mikulaj & mikulajova
- Země: Slovensko
- Realizace: 2016
- Město: Zahorie
- Datum projektu: 2012
- Realizace: 2016
- Užitná plocha: 300.00m2
Mohlo by vás zajímat