ASGK Design - Dům Prokop

Dům Prokop je hned od počátku obklopen zelení a zasazen do tradiční zástavby. Vznikl totiž na místě staticky nevyhovující budovy. Architektka Gabriela Kaprálová ve spolupráci s Karolínou Falladovou navrhly dům, který respektuje původní vesnické stavby – štítového domu situovaného do návsi. Díky respektu k rázu místa se tak dům stal hned po dokončení součástí vesnické krajiny. Celkový koncept domu je dotvořen orientací ke světovým stranám, výhledy do krajiny, využitím terénu a použitím tradičních stavebních materiálů novodobým způsobem.
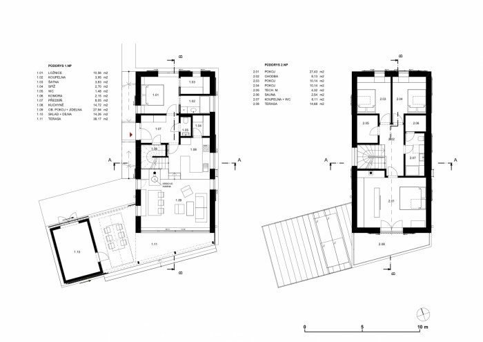
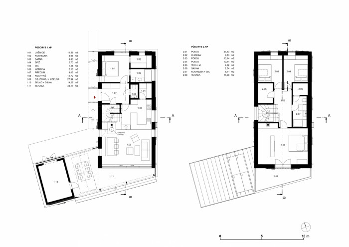
Stavba má sloužit jako domov pro čtyřčlennou rodinu. Obdélníková novostavba je na mírně svažitém pozemku orientována severojižně. V přízemí dvoupodlažního, nepodsklepeného rodinného domu se nachází pokoj pro hosty a obytná část s kuchyní. Hlavní obytný prostor s otevřeným schodištěm a krbem je dvouúrovňový. V patře jsou situovány dva pokoje, sauna a ložnice se zázemím. Pobytová terasa propojuje severní a jižní část zahrady a naskýtá zajímavé průhledy.
Objekt je založen na základových pasech. Konstrukčně se jedná o dřevostavbu s lehkým skeletem z KVH profilů a vloženou minerální izolací. Fasáda je tvořena vertikálními kartáčovanými palubkami z modřínu, pouze severní štít je omítaný. Okna a vnější dveře jsou dřevo-hliníková s izolačním trojsklem, střešní okna a vnitřní dveře jsou dřevěné. Střecha je plechová se stojatou drážkou.
Okna mají vnější dřevěné okenice na kolejnicích a lze je spolu s terasovými vraty uzavřít. Pohledové dřevo je použito i pro povrch vnitřních stěn a stropu, ve vrcholové části střechy jsou palubky kladeny do oblouku. Charakter dřevostavby je čitelný v exteriéru i interiéru.
Stavba byla dokončena na konci roku 2017 a interiér byl dokončen v roce 2018. Díky off-site prefabrikaci trvala celá výstavba pouhé tři měsíce. Dřevěná konstrukce domu byla na staveniště dovezena v kamiónech a na místě smontována během několika dní. Rychlost výstavby je jednou z předních výhod dřevostavby.
- Autoři: Gabriela Kaprálová, Karolína Falladová
- Ateliér: ASGK Design
- Spolupráce: Monika Čurdová
- Země: Česká republika
- Město: Sejcká Lhota
- Datum projektu: 2016
- Realizace: 2018
- Užitná plocha: 118.00m2
Související projekty
Související architekti
Související ateliéry a firmy
Mohlo by vás zajímat






























