Atelier 11 - Dům se světlíkem

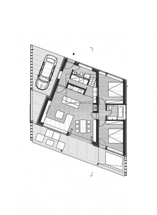
Do lokality s typicky satelitnou zástavbou rodinných domov sme sa pokúsili vniesť oživenie vo forme domu na netradičnom pôdoryse s jednoduchým tvaroslovím. Dôraz je pri tom kladený na prácu s materiálmi. Myšlienkovo je tento dom zložený z dvoch vrstiev - obytnej a doplnkovej, čo je podporené zmenou materiálu fasády. V pôdoryse sledujeme stopu pozemku a využívame ho do maximálnej možnej miery. Dom tak dostáva lichobežníkový pôdorys. Od svojho východného suseda sa natáča smerom na západ. Obytná časť domu sa rozširuje smerom do záhrady. Okolo obytnej časti je zo západnej a južnej strany domu prstenec garáže, skladov a terasy. Terasa zaberá celú južnú fasádu domu, z dvoch tretín je zastrešená, jedna tretina ostáva nezastrešená a slúži ako okrasná záhradka. Hmotovo sme sa snažili zachovať pocit jednoliatej stavby, preto sú terasa aj garáž ukončené jednotiacou atikou, ktorá ich prepája so zvyškom domu. Steny garáže a terasy sú z betónových debniacich tvárnic ukladaných na kolmo, čím vzniká raster otvorov rôznej veľkosti, prepúšťajúci svetlo a zároveň tak vzniká optická bariéra od susedov.  Pokračovaním domu je záhrada ktorá sa terasovito spúšťa smerom k potoku s biotopom stromov na južnej hranici pozemku.

Podobná logika prstencového usporiadania priestorov sa prenáša aj do interiéru kde je okolo obývačko-kuchyne situovaný pás nočnej časti so spálňami a kúpelňou a so severu potom pás s hygienicko technickým zázemím.

Nad kuchyňou je skrytá odpočinková miestnosť - svetlík z preglejky, ktorý presvetľuje celý priestor. Otvor v podlahe svetlíka je vyplnený bezpečnostnou sieťou na ležanie.

Materiálove riešenie interiéru je striedme, kombinuje betón a drevo s neutrálnymi bielymi stenami. Jednotlivé obytné priestory sú oddelené hygienickými jadrami z priznaných betónových tvárnic. Podlaha je jednoliata z brúseného betónu, stropy sú drevené s priznanou konštrukciou, alebo dreveným podhľadom. Ostenia okien zvýrazňujú preglejkové obklady.

  • Autoři: Martin Mihály, Matej Mihalič
  • Země: Slovensko
  • Město: Teriakovcice
  • Datum projektu: 2016
  • Realizace: 2018
  • Užitná plocha: 152.00m<sup>2</sup>
  • Zastavěná plocha: 169.00m<sup>2</sup>
  • Plocha pozemku: 770.00m<sup>2</sup>
  • Materiál: beton, dřevo
  • Statik: Matúš Rosina
Generální partner
Hlavní partneři