Atelier8000 - Galerie Martin

Zámerom investora bola revitalizácia územia pôvodného Obchodného domu PRIOR Martin s ohľadom na význam lokality a blízkosť centra mesta Martin. Cieľom bolo asanovať existujúcu budovu okrem časti suterénu, v ktorej sa nachádza CO kryt a nahradiť ju novopostavenou plnohodnotnou obchodnou galériou plne zodpovedajúcou súčasnej modernej koncepcií maloobchodného predaja.
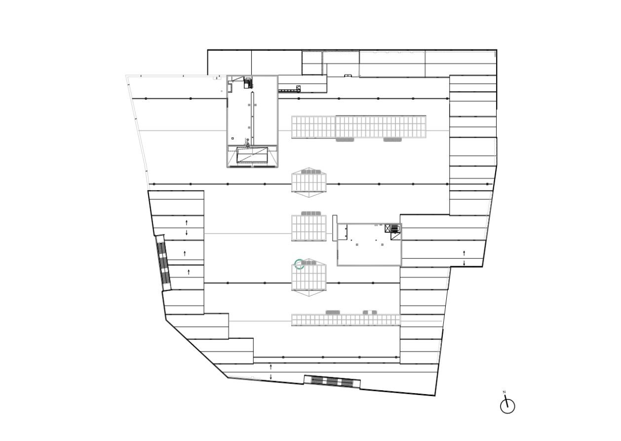
Spolu so stavbou bol riešený aj súvisiaci mestský priestor pred hlavným vstupom nadväzujúci na zrekonštruovaný priestor mestského centra. Súčasťou zámeru bola úprava súvisiacich plôch pre peších, zelene pred hlavným vstupom či v ulici Daxnerova a chodníkov okolo obchodného centra v rozsahu riešeného územia. Navrhnutá bola aj úprava dopravného napojenia objektu a presun parkovacích plôch do 3.NP na strechu nového objektu.
Urbanistické riešenie
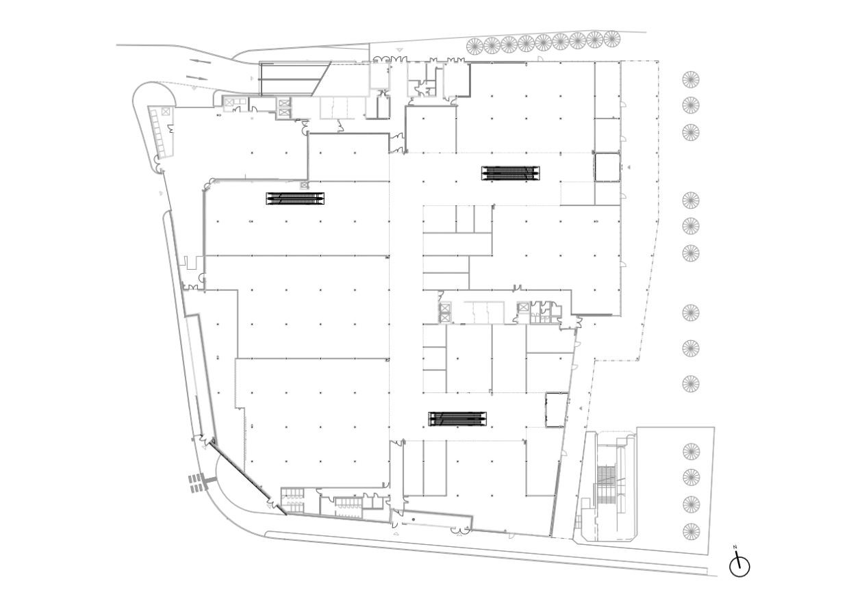
Navrhovaný objekt vypĺňa plochu bloku vymedzeného ulicami Daxnerova, P. Mudroňa, Kohútova a Námestím SNP. V najbližšom susedstve sa nachádzajú chránené historické objekty - Župný dom (Turčianska galéria) a kostol sv. Martina a objekt Obchodnej akadémie. Lokalita nadväzuje na zástavbu historického centra Martina, založenú na stredovekej parcelácii. Štruktúra zástavby, krajina strešných plôch vytvára charakteristickú mozaiku pozdĺž centra tvoreného ulicami M.R. Štefánika a 29. augusta.
Hlavné námestie v meste Martin prešlo v poslednom desaťročí zásadnými úpravami, ktoré prispeli k zásadnému zvýšeniu kvality verejného priestoru. Revitalizácia územia súčasného Obchodného domu Prior podmienky pre mestský život ďalej skvalitňuje a doplňuje. Vzniká tu nový, podstatný uzlový bod, vnútromestské obchodné centrum ponúkajúce kvalitné služby a spoluvytvára žiaducu hustotu vzťahov medzi správnym a kultúrnym centrom (divadlo, radnica) na severe námestia a jeho južným koncom. Prestavba pôvodného OD Prior Martin umožní návrat nakupujúcich a vlastne i bežného života do centra mesta a zabráni odchodu dôležitej obchodnej funkcie na okraj, do predmestských obchodných centier. Nezanedbateľným prínosom je bezpochyby aj synergia, ktorá privedie do centra obyvateľov mesta, ktorí potom prirodzene využijú ponuky služieb na námestí.
Pri návrhu obchodného centra boli zohľadnené základné a podstatné väzby na okolie, a to predovšetkým hlavný pohyb osôb, hlavné dopravné ťahy a v neposlednom rade hmotové a priestorové riešenie okolia a mestského prostredia. Cieľom návrhu je sprostredkovať prepojenie priestoru v okolí kostola Sv. Martina s hlavným martinským námestím. Poloha východnej hrany objektu úmyselne nadväzuje na uličný front severnejšie položených domov na námestí, dochádza tak k akcentovaniu Župného domu, ako významného solitéru.
Úprava s obchodným centrom súvisiacich verejných plôch nadväzuje na už zrealizovanú rekonštrukciu časti pešej zóny historického jadra. Riešenie je v súlade s koncepciou mesta, predlžuje o ďalší úsek rekonštruovanú časť pešej zóny a prispeva k revitalizácii mestského priestoru lokality.
Architektonicko – stavebné riešenie
Už od prvých návrhov bolo premýšľané a počítané s kontextom okolitých stavieb, a to nielen v ich súčasnej podobe, ale aj s výhľadom na predpokladaný vývoj celého priestoru historického centra mesta Martin. Cieľom bolo vytvorenie pravdivého dialógu medzi historickým centrom mesta a navrhovaným objektom, ktorý svojou jednoznačnou formou a funkciou dopĺňa celý verejný priestor. Navrhované riešenie objektu reaguje na formu martinského námestia a podporuje vertikálu kostola Sv. Martina.
Hlavným motívom architektonického návrhu bola snaha maximálneho začlenenia objektu do štruktúry mesta, a to predovšetkým v celkovej hmote stavby. Hoci je objekt svojimi rozmermi jedinečným prvkom v centre mesta, v navrhnutej strešnej krajine je použitá mierka a tvaroslovie okolitých historických objektov. Východiskom pre tvarové, hmotové riešenie objektu je jednak sama lokalita stavby s kulisou štítov okolných hôr a rovným dielom tiež historické, už snáď dokonca zľudovené, architektonické princípy používané v danej lokalite na stavbách mestských i vidieckych - nech už ide o mierku stavby, tvar strechy, skladbu fasádnych prvkov či spôsob práce s konkrétnym materiálom. Uvedené motívy a princípy sú prevedené do moderných výrazových prostriedkov pri použití súčasných materiálov.
Výška objektu, výška hrebeňov i hlavných ríms korešponduje so svojím okolím; tvarovanie fasád odkazuje na klasickú skladbu mestských objektov so štítmi či rímsami orientovanými do mestského priestoru; strešná krajina priamo nadväzuje na okolnú zástavbu v centre mesta, navrhnuté sedlové strechy svojimi proporciami, sklonmi i smerovaním hrebeňov rešpektujú pravidla riešenia striech v danom mieste.
Objekt je jasne rozpoznateľný a vnímateľný ako jeden celok, ale jeho hmota je jemne rozčlenená a prispôsobená mierke okolných stavieb. Objekt je z veľkej časti zahalený do polopriehľadného závoje tvoreného plášťom z kovových fasádnych lamiel, predsadených
pred vlastnú obvodovú konštrukciu stavby. Cez tento plášť sa na povrch prepisujú plochy vlastnej konštrukcie stien, plochy omietnuté či presklené. Vzniká tak zaujímavá a pohľadovo premenlivá hra medzi jednotlivými vrstvami obvodového plášťa. Lamely vonkajšieho plášťa sú použité v jednom farebnom tóne, ale v rôznych veľkostiach, s rôznou hustotou. Takto je zachovaný jednotný výraz celého objektu, ale zároveň je objekt jemne rozčlenený a s detailom prispôsobeným miestnej mierke.
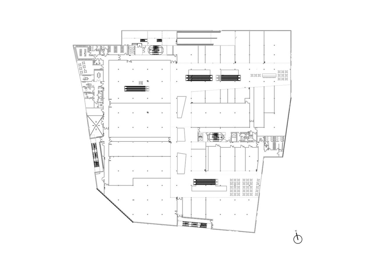
Strešný plášť nad plochami parkoviska v treťom nadzemnom podlaží tvoria jednoduché sedlové strechy pretnuté linkami sklenených svetlíkov nad priehlady a priestupy do pasáže. V dvoch miestach potom sedlovými strechami prestupuje kubus technológií s plochou strechou. Obvodové konštrukcie fasády na niektorých miestach dobiehajú až ku hrebeňom striech, miestami je ale fasáda ukončená rovnou atikou v úrovni podlahy či zábradlia a strechy sa potom pohľadovo vznášajú až nad pevnou strukturou stavby. Strešná krytina je navrhnutá plechová, z profilovaného/ trapézového plechu. Raster a profilácia plechov odpovidá rastru predsadených fasádnych lamiel, členenie jednotlivých prvkov strešných rovín svojou mierkou odpovedá mestskému charakteru a mierke okolných objektov.
- Ateliér: ATELIER8000
- Země: Slovensko
- Generální dodavatel: Metrostav a.s.
- Město: Martin
- Ulice, číslo: Námestie SNP, 2
- Suma: 16 000 000.00
- Měna: EUR
- Datum projektu: 2012
- Realizace: 2017
- Užitná plocha: 33 555.00m2
- Zastavěná plocha: 10 316.00m2
- Plocha pozemku: 14 284.00m2
Související ateliéry a firmy
Mohlo by vás zajímat
























