B

BAEKEN WOENSEL-WEST

V listopadu 2011 bytové družstvo Trudo vyhlásilo architektonickou soutěž, jejímž cílem bylo zlepšit špatný obraz problémové oblasti v Eindhovenu, nazvané Woensel-západ. Bytové družstvo přišlo s konceptem ikonických budov na 16 rozích na Edisonstraat. Budovy měly být v rámci ulice vyvýšené a umístěné na soklu. Studio Diederrendirrix navrhlo celkový plán a je také autorem konstrukce soklů.

Soutěž se v počátku soustředila na první dvě nároží. Baeken byl vybrán jako vítězný systém pro umístění na rohu Edisonstraat a Baekelandplein.

Stavba vznikla v místě volné proluky vedle nedávno dokončeného bytového bloku. Zvláštností tohoto místa je skutečnost, že označuje vstup do Baekelandplein, eindhovenské čtvrti červených luceren. Tuto skutečnost se autoři rozhodli podpořit I v návrhu vnějšího vzhledu domu.

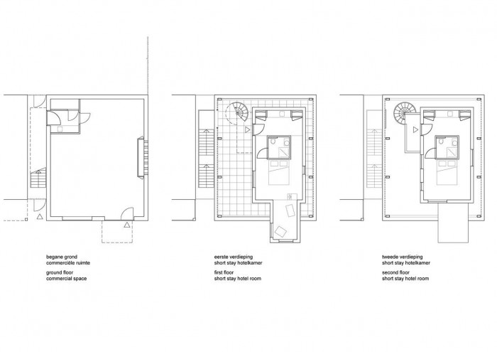
Za prvé je tu přízemní část budovy – těžkého a tmavého objemu - která funguje jako podstavec pro nástavbu a zároveň jsou zde umístěny komerční prostory. Na tento “sokl” pak navazuje blok obsahující dva hotelové pokoje s očekávanou funkcí hodinového hotelu. Je celkem nevšední odkazovat na vykřičenou čvtrť přímo barvou domu. Nad podstavecem je ocelová konstrukce, která hmotné kvádry balí do zdobných ok připomínajících obří síťované punčochy, odkazující na náplň čtvrti Baekenlandplein. Tyto dva prvky – hmotné kvádry a ocelové “krajkoví” – vytváří velice zajímavý meziprostor.

Ocelová konstrukce zvoří arechetypální dům který ctí běžnou podobu okolních domů s charakteristickým mírným sklonem střechy. Ocelová konstrukce je tak logickým pokračováním přilehlého bytového bloku Voltagalvani, kde se opakuje rastr střídání nosníků a sloupů předsazených před fasádu.

Vzhledem k tomu, že jak podstavec, tak nástavba jsou odsazeny od přilehlého bytového domu asi o jeden a půl metru, jeho slepá fasáda je nedotčena. Fasáda bytového domu tak s předsazenou “krajkovou” fasádou tvoří vertikální prostor, do kterého autoři umístili vnější schodiště. Jeho červená barva jednoznačně odkazuje na náležitost k červené hmotě nástavby a tvoří tak její spojnici se zemí. Prostřednictvím tohoto vnějšího schodiště se dostaneme na horní část soklu, který tvoří společnou střešní terasu, jež návštěvníkům poskytuje nečekané městské výhledy. Ze střechy soklu je pak možné vstoupit do jednoho ze dvou hotelových pokojů. Druhý pokoj je přístupný točitým schodištěm, které je součástí červené hmoty. Tato skutečnost posiluje myšlenku fungování soklu a nástavby jako dvou nezávislých prvků.

Speciálně umístěná okna nabízejí hotelovým hostům rozmanitost městských výhledů a současně díky zatemňujícímu efektu předsazené fasády poskytují svým obyvatelům dostatek soukromí.

  • Autoři: Bas Termeer
  • Ateliér: diederendirrix architecten
  • Země: Nizozemsko
  • Město: Eindhoven
  • Ulice, číslo: Edisonstraat
  • Datum projektu: 2012
  • Realizace: 2015
  • Užitná plocha: 173.00m2
  • Poznámka: "Krajková fasáda" navržena ve spolupráci s Lace Fence

Související architekti

Související ateliéry a firmy

Generální partner
Hlavní partneři