BARAAK Architekti- RD Krásná

Dům v lesích, pro manžele a jejich psy. Dům s nádhernými výhledy. Dům, který se otevírá do přírody. Dům, který je možné kompletně zavřít okenicemi a žaluziemi. Otevřený dům vs. bezpečná schránka pro rodinu na samotě. Hory, výhledy a klid.
Koncept
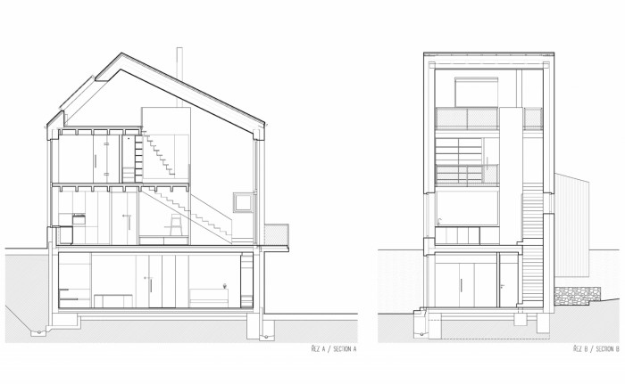
Jsme na horách, proto je fasáda domu krytá vlnitým plechem s povrchovou úpravou Aluzink. Před okny jsou na fasádách umístěny posuvné okenice, případně roleta. Jižní i západní fasádě dominuje rozměrné okno: v obou případech jde přes dvě podlaží a umožňuje průhled skrz dům a současně napojení interiéru domu na okolní krajinu.
Dům využívá svažitosti pozemku, aby svou hmotou nerušil charakter krajiny a současně naplnil požadavky na potřebný vnitřní prostor. Podzemní podlaží využívá rozdílných výškových úrovní terénu tak, aby bylo možné tyto prostory osvětlit a umožnit z nich výstup na zahradu.
Vzhledem k orientaci pozemku, který se svažuje směrem k severovýchodu a okolnímu lesnatému porostu, byl objekt rodinného domu umístěn do spodní části parcely přibližně na místo původního zbouraného domu. Tato pozice zajišťuje optimální osvětlení a oslunění a současně je to nejoptimálnější pozice s ohledem na ochranné pásmo lesa.
Interiéry
Vnitřní prostory výrazově určily pohledové dřevěné stropy s trámy. V suterénu a ve vstupu do domu najdeme lité podlahy z broušeného betonu. Podlahy a dolní schodiště a terasa a koupelna v patře jsou nakonec z broušeného teraca. V obývacím pokoji a dalších obytných částech jsou podlahy dřevěné, z průmyslové mozaiky – nakonec dřevěná dubová prkna olejovaná tmavým odstínem. Převýšený vnitřní prostor propojuje vertikální prvek, ve kterém je v přízemí umístěna nika s krbem a ve 2. NP schodiště na galerii. Dům je vytápěný tepelným čerpadlem vzduch / voda. Pro tepelnou pohodu stačí jen krátce zatopit v kamnech.
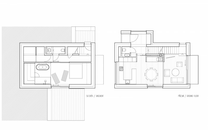
Na obdélníkovém půdorysu je vnitřní prostor domu velkoryse převýšený, takže propojuje přízemní podlaží přes druhé podlaží až po podkroví, které tak tvoří galerii. V suterénu je umístěna koupelna navazující na saunu, sprcha s WC jako příslušenství pro případné návštěvy. Odtud se také vystupuje na zahradu v místě schodiště a pak také přes francouzské okno přímo z prostoru koupelny a sauny. Hlavní vstup do objektu je na úrovni přízemí. Malý přístavek rozšiřuje vstupní halu, z níž je přístupné samostatné WC, vstup do suterénu a případně na zahradu.
Hlavní obytný prostor v přízemí má po pravé straně kuchyňský kout s výhledem na přístupovou cestu. Ve střední části obytného prostoru je jídelní stůl a krb. Schodiště patra je umístěno u delší z obvodových stěn a je přístupné z rohu obývacího pokoje. Prostor se sedačkou je propojený pomocí vysokého, posuvného okna s balkonem, který je vysunutý ze severní fasády objektu a umožňuje nádherný výhled na protější svah Černé studnice.
Ve druhém nadzemním podlaží je umístěna ložnice s navazující koupelnou, která je od ložnice oddělena skleněnou stěnou. Na galerii nad obývacím pokojem je umístěna pracovna. Z galerie lze pak dál pokračovat do podkroví. Podkroví slouží většinou jako tělocvična nebo herna pro děti. Tato nejvyšší úroveň domu je prosvětlená posuvným oknem 2x2 metru. Protože je i tato část otevřená do hlavního obytného prostoru galerií, prosvětluje okno většinu obytného prostoru.
Druhý objekt zahradního skladu a garáže plní funkci doplňkové stavby k rodinnému domu. Tato stavba má ryze hospodářský charakter. Vzhledem k umístění stavby na samotě mimo obec se ukázala potřeba takového prostoru pro uskladnění zahradní techniky a pro parkování jako nezbytná. Zejména v zimních měsících.
- Země: Česká republika
- Datum projektu: 2019
- Realizace: 2020
- Zastavěná plocha: 71.13m2
- Konstrukce domu: zděný stěnový systém s dřevěnými trámovými stropy, střešní krytina z profilovaného plechu. Fasáda provětrávaná s obkladem z téhož profilovaného plechu. Plechy jsou opatřeny povrchovou úpravou Aluzink.
Mohlo by vás zajímat

























