bergmeisterwolf - twin house

Hmotové schéma návrhu a hlavní téma architektonického konceptu se neustále točilo kolem střechy. Štít, hřeben a okna se staly hlavními tvůrci kompozice, kterou dotvořila inspirace přilehlou přírodou a okolní lidovou architekturou. Vršky hor v pozadí a tradiční formy, které jsou pro oblast typické, byly do konceptu abstraktně promítnuty a spoluvytváří nový typ moderní horské architektury.
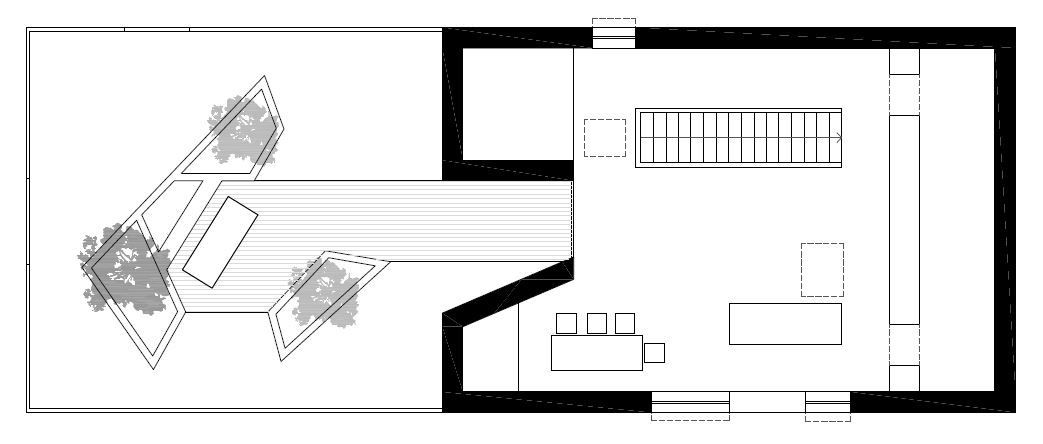
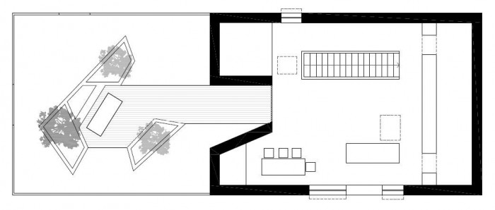
Dispoziční koncept umožnil vytvoření dvou domů pod jednou střechou. Jednotlivé části domu jsou určené pro dvě sestry. Vnitřní prostředí bytů se točí kolem přírody a vrcholků hor, kterým umožňuje pomocí výhledů vstoupit až do interiéru. Zahrada se zrcadlí v lodžii v přízemí a ve střešní terase vklíněné do střechy. Oba tyto prostory bylo nutné chránit před silným větrem, lodžie je zaseknutá hluboko do budovy a terasa je chráněna protáhlým kusem fasády.
Budova interaguje s okolní krajinou. Původní stará kamenná stěna se stala součástí návrhu, tmavě hnědé dřevěné latě a světlé obložení v interiéru ilustrují rivalitu mezi vnitřním a vnějším prostředím.
- Autoři: Gerd Bergmeister, Michaela Wolf
- Ateliér: bergmeisterwolf
- Země: Itálie
- Město: Vahrn
- Realizace: 2014
- Zastavěná plocha: 456.00m2
- Materiál: dřevo
Související architekti
Související ateliéry a firmy
Mohlo by vás zajímat




















