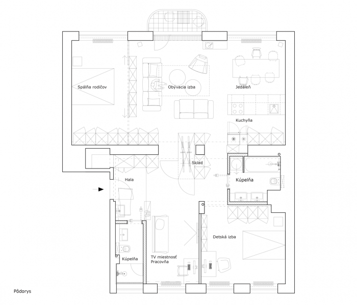
Byt G

Byt G je našou prítomnou odpoveďou pre dve skupiny. Otázku sme položili my.
Pre klienta.Samozrejmosťou je splnenie zadania. Byt slúži aktívnej rodine s troma, čoskoro štyrmi členmi. Šport je všadeprítomný. Pohyb v čase sa odráža v striedmom stavebnom interiéry bez tendencií a v kvalite použitých materiálov. Riešenie využíva danosti. Byt sa zmenil z izbovitého na voľnejší a preplávajúci. Výhľad na bratislavské Staré mesto a južné slnko sa rozšíril na tri okná z jedného priestoru, je znásobený zrkadlom. Byt G chce byť stavbou, podkladom na ktorom môže vyrásť domov.
Pre architektov.Kvalita a rafinovanosť prevedenia rastie do výšok spolu s nákladmi. Okolo seba sledujeme preteky. Architektúra kopíruje technológie. Masívny, niekedy primitívny, často nepresný, ale trvanlivý detail je nahrádzaný jemnejším, presným, dokonalým, zložitým často neopraviteľným. Funkčnosť predbieha samoúčel. Máme pocit, že architektúra ako hľadanie rámcových odpovedí, zrkadlenie doby sa posúva k dizajnu a hľadaniu možností prevedenia. Byt G chce byť stavbou, architektúrou, nie dokonalým dizajnom.
- Autoři: Tomáš Szöke, Ivan Príkopský, Katarína Príkopská
- Země: Slovensko
- Město: Bratislava - Staré Mesto
- Datum projektu: 2014
- Realizace: 2015
- Užitná plocha: 108.00m2
- Foto ©: Maroš Fečík, Katarína Príkopská
Související projekty
Související architekti
Mohlo by vás zajímat



























