B

Byt pro svobodného mládence

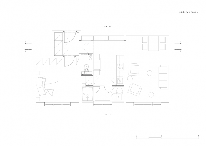
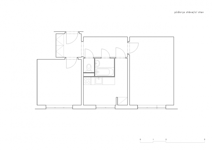
Bydlení se nachází v panelovém domě v sídlištní struktuře, kde probíhá postupná výměna generací obyvatel. Původní estetické a dispoziční řešení bytu v očích nových majitelů již morálně dosloužilo. Staré uspořádání navíc vytvářelo nevyužitelnou chodbu a smyčku v propojení kuchyně a obývacího prostoru.

Optimalizací dispozice se podařilo naplnit požadavky investora, byt prosvětlit, vytvořit jednotnější obytný prostor s kuchyní a obývacím pokojem. Metry bývalé vnitřní chodby se tak staly integrovanou součástí obytného prostoru.

Materiály a nové povrchové úpravy byly voleny ve své přirozené režné podobě. Cementová omítka, bílé cementové stěrky na stěnách a podlaze v kuchyni a koupelně, renovované dřevěné parketové podlahy. Březová překližka byla použita na nábytek. U některých nosných stěn je ponechán neomítaný surový betonový povrch. Nahá struktura mírně poodhaluje tělo domu.

Zvolené řešení jde ruku v ruce s nízkou cenou realizace.

Generální partner
Hlavní partneři