Bytový komplex Kadetka

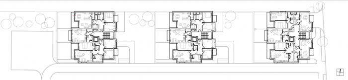
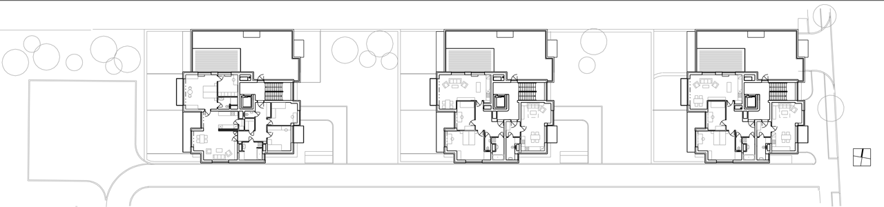
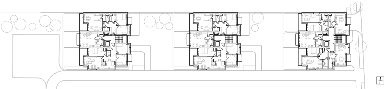
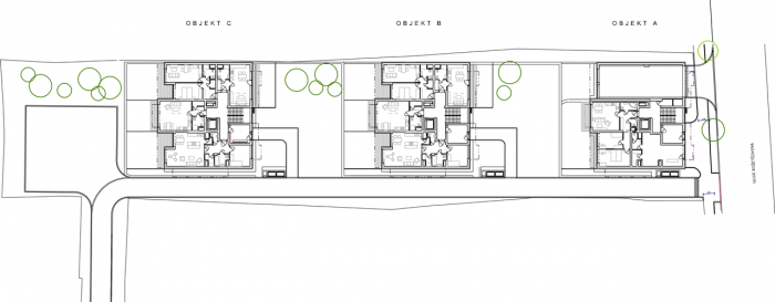
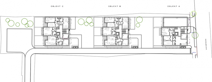
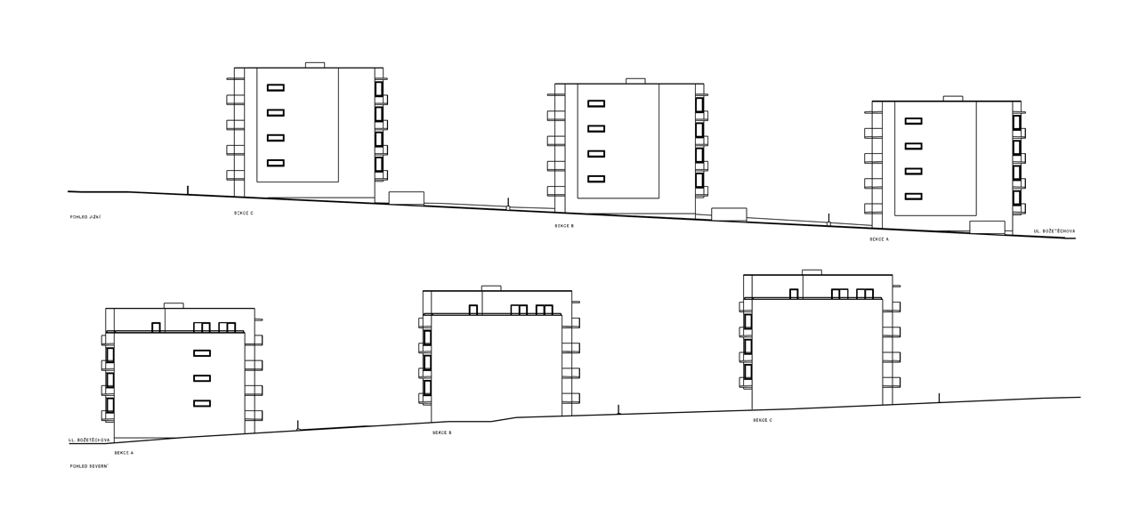
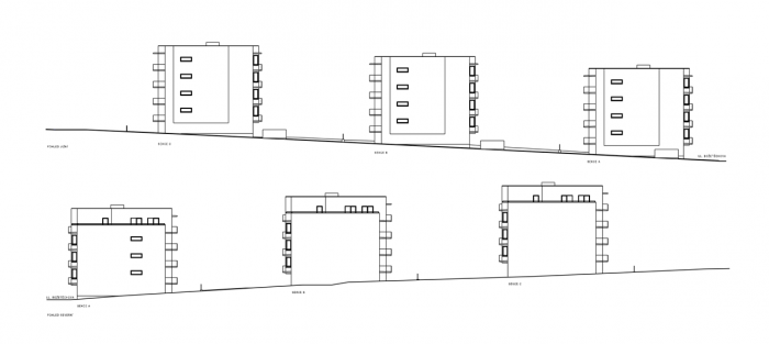
Kadetka je bytový projekt skládající se ze tří bytových domů, které jsou umístěny v zahradním prostředí. Naproti komplexu se nachází královopolský park Kadetka, podle kterého byl pojmenován i tento bytový dům. K zadní části bytových domů přiléhá královopolské kulturní centrum Semilasso. Občanská vybavenost, která obklopuje celý areál, je nespornou výhodou bydlení v této lokalitě stejně jako krátká vzdálenost do centra města. Obyvatelé mají na dosah jak obchodní a zdravotní centra, kulturní a restaurační zařízení, tak samozřejmě městskou hromadnou dopravu včetně vlakového nádraží.

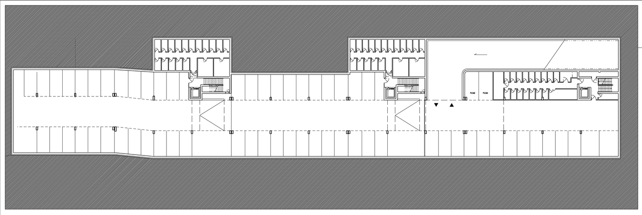
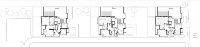
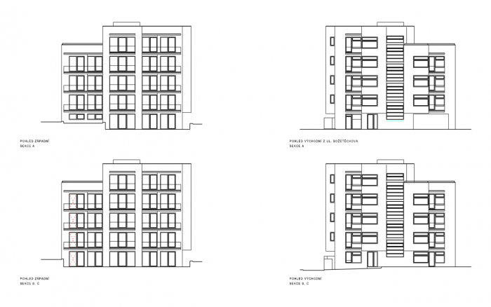
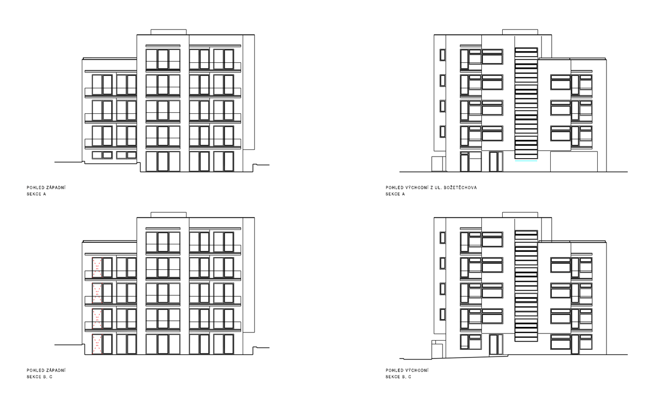
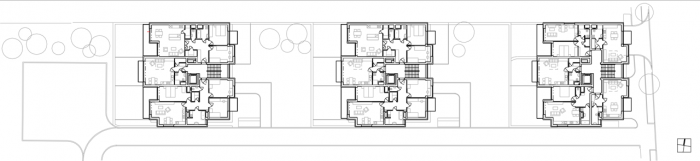
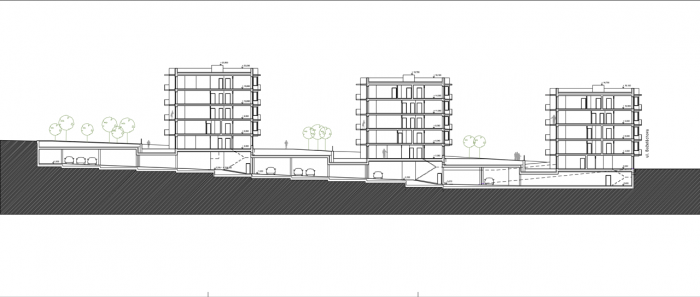
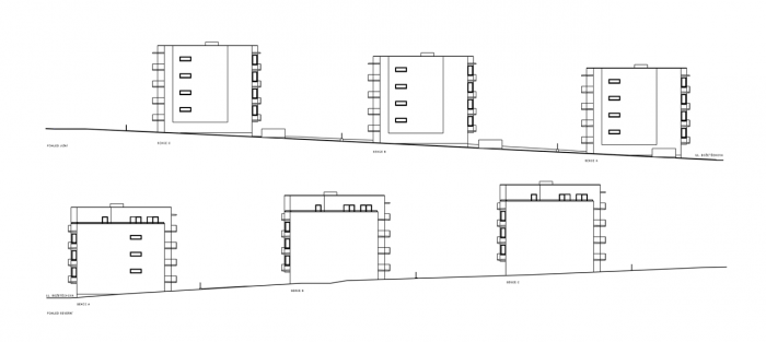
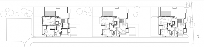
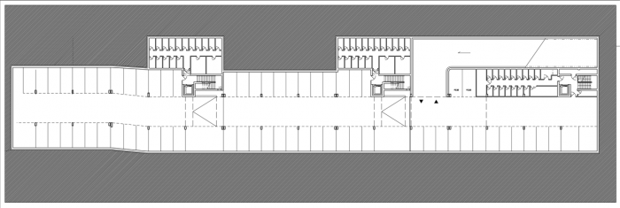
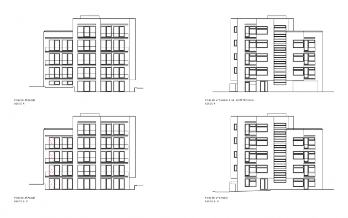
Bytové domy jsou neagresivní bílé kubusy umístěné v zeleni. Pod objekty se nachází hromadné garáže s 68 parkovacími místy. Každý byt tak má k dispozici vlastní garážové stání, balkon nebo terasu. Objekty nabízejí veškeré varianty rozměrů bytů, od 1+kk až po 5+1 s terasou, které se nacházejí na střechách jednotlivých domů. Bytů je zde dohromady 49 a jejich samozřejmostí je kompletní sociální zařízení a kuchyň, což zaručuje veškerou připravenost k bydlení.

Přízemní byty mají vlastní soukromé zahrádky. Komplex obklopují veřejné zahrady, které patří také obyvatelům bytového domu a které jsou bezpečné a uzpůsobené pro bezstarostný pohyb dětí. Komunikace, která prochází veřejnou zahradou, slouží pouze pro stěhování a není tudíž průjezdná. Bytový komplex je uzavřený v zahradě, ale zároveň využívá všech předností, které v současné době brněnská čtvrť Královo Pole obyvatelům poskytuje.

  • Autoři: Tomáš Rusín, Ivan Wahla, Petr Mutina
  • Ateliér: Atelier RAW
  • Země: Česká republika
  • Realizace: 2015
  • Město: Brno - Královo Pole
  • Ulice, číslo: Božetěchova 13/11
  • PSČ: 612 00
  • Datum projektu: 2012
  • Realizace: 2015
  • Zastavěná plocha: 903.60m2
  • Poznámka: Foto © Bořivoj Čapák
Generální partner
Hlavní partneři