Místo

Krajina

Solduno je čtvrť na předměstí historického centra Locarna v jižním Švýcarsku. Vyrůstal jsem pár kroků odsud v oblasti eklektických buržoazních sídel z počátku 20. století a cihelných bytovek z 60. let. Dnes již většina z oněch budov z poloviny 20. století ustoupila současnějším anonymním vilám.

Zastupitelé města byli přesvědčeni, že i v takovém vcelku mdlém kontextu by bylo vhodné vytvořit vytříbený projekt. Myšlenku jsme přijali za svou a příležitost postavit moderní rezidenční a komerční stavbu v souznění s leskem dob nedávno minulých, přesto stále zapadající do mozaiky současného okolí, jsme v sobě nadále uchovávali. Projekty pro město jsou pro nás aktem usmíření, prostředníkem mezi minulostí a současností. Interpretací místa, jeho formy a atmosféry.

Město a říční delta

Parcela je mezi dvěma odlišnými a kontrastními prostředími. Na straně jedné otevřená příroda, na druhé město. Směrem na jih terén svažující se k lesíku kolem delty řeky Maggia, na sever rušná ulice s těžkou dopravou. Nás pozemek je poslední, na kterém se na obě strany vejdou dvě řady budov, je tedy přechodovým místem z dvou řad domů do jedné. Naším záměrem bylo vytvořit otevřený komplex, spojující v sobě prázdné prostory a průčelí přilehlých budov, hlavně domu Rino Tami.

Sousedství

Naší vizí byly tři budovy: městský blok k via Varenna a dva samostatně stojící věžáky směrem k řece Maggia a horám, mezery a prázdné prostory mezi budovami, spojení komplexu s panoramatem, cihelná konstrukce Tami a uzavřené zahrady přilehlých budov.

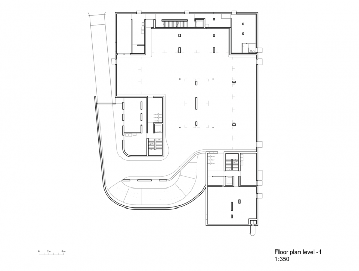
Výkresy

Typické 3. NP

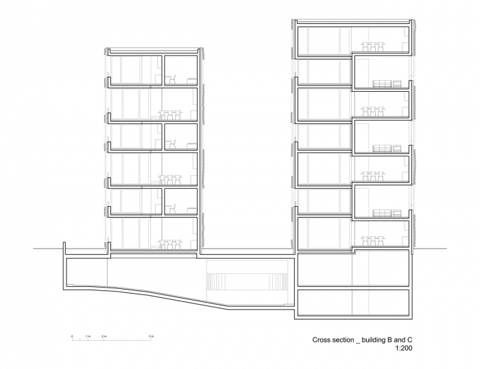
Prostorový charakter staveb se inspiroval několika stále existujícími starými vilami v okolí a vzpomínkou na ty, které už byly zbourány. Uvědomovali jsme si, že dvě úzké věže s jedním bytem na každém podlaží jsou reminiscencí na typologii villa a piani (podlažní vily), charakteristického maloměšťáckého ubytování v Miláně počátku 20. století. Tento přístup zaručoval výhled na řeku a hory i budově na via Varenna, a tak změnil přechodové místo na sjednocující komplex.

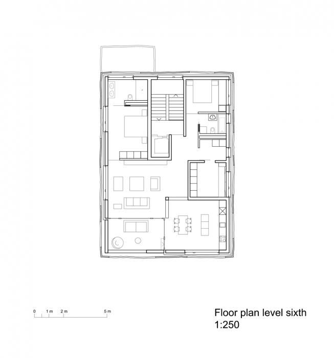
Typické 4. NP

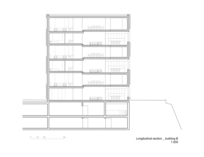
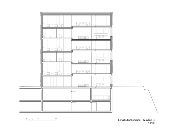
Místo rozpracovávání projektu od půdorysu jsme ho rozpracovávali od řezu. Plánovali jsme tři různé světlé výšky zaklíněné vzájemně do sebe přes každé podlaží: 2,31 m pro kuchyně, 2,62 m pro ložnice a 2,93 m pro společenské místnosti. Byty na každém podlaží mají rozdílnou konfiguraci v půdorysu i v řezu, čímž vytváří odlišná individuální prostředí. Některé společenské místnosti jsou obráceny do vnitřního dvora, jiné k řece, některé jsou v zimní zahradě a jiné nabízí otevřený prostor s výhledem na deltu.

Příčný řez

Fluidní dispozice daná totální absencí chodeb dovoluje zažít byt a od nároží k nároží a plně pocítit pravé vnitřní rozměry budovy. Dokonce i lodžie, stvořené jako vnější prostor, mohou být změněny na zimní zahradu po vzoru starých vil. Fasády budov obrácené k řece prozrazují uspořádání vnitřního prostoru (modulaci půdorysů, prostorností a výšek) aniž by byly pouhými jeho kopiemi.

Podélný řez

Díky racionálnímu užití pouze tří typů a dimenzí oken, jsme dosáhli expresivní jednoty navzdory velmi rozdílným umístěním. Fasáda směřující do městské ulice potom představuje lineárnější pásovou strukturu jak v půdoryse, tak na fasádě. To byla naše konceptuální odpověď na proudění v jednosměrné ulici via Varenna. Nad plně proskleným přízemím jsme jako monumentální plátno rozvinuli do ulice uzavřený fasádní prospekt.

Koncept fasády

Chtěli jsme použít cihly, abychom posílili spojení s přilehlou budovou Rino Tami, ale s pomocí technologie 21. století jí dodat současnou reinterpretaci. Ve spolupráci s ROB AG, spin-offem ETH zodpovědné za digitální programování, a firmou Keller AG ze švýcarského Pfuzenu, jsme vyvinuli roboticky sestavenou modulární fasádu. Cihly se v každém modulu ohýbají dovnitř či ven jako reminiscence bosáže.

Cihelná bosáž jako „pixelový patchwork“

Cihly připomínající pixely formují obraz fasády. Jejich měřítko bylo pečlivě vybráno, aby umožnilo kombinace aplikovatelné na proporce každé z fasád tří budov. Firma ROB matematicky parametrizovala modul pro výrobu, zatímco firma Keller za použití hlíny z kantonu Jura vyráběla na míru cihly v odstínu pouštního písku. Aplikováním náhodně generovaných kombinací panelů na každou z fasád tří budov jsme vytvořili cihelný patchwork bez otvorů na okna a lodžie.

Vyřezání otvorů do jednolité plochy

Do této celistvé fasády jsme potom vyřezali předem naplánované otvory pomocí odlišné logiky, jmenovitě variací rámů a oken. Protože tyto dva procesy byly na sobě vzájemně nezávislé, výsledný vzor fasády byl naprosto nepředvídatelný.

Výkresy převedené do reality

Firma Keller nakonec za znalosti logiky budoucí montáže rozčlenila rozdílné elementy do budoucích panelů rozdílného tvaru a velikosti. Mezi rozdílnými panely jsou pojící cihly, které dohromady sešívají patchworkovou cihelnou vrstvu. Celá fasáda potom sedí na nerezových konzolách a hácích – tento způsob nebyl nikdy předtím použit.

Simulační studie 3D bosáže

Konečné vzezření má ornamentální kvality textilu – tam, kde byly cihly vyříznuty pro okna, působí fasáda jako roztřepená látka. Celá budova potom připomíná záclonu dmoucí a prohýbající se a ve vánku.

Závěr

Rostoucí ekonomický tlak způsobuje zkracování termínů a snížení konstrukčních nákladů. Je také důvodem narůstající ztráty manuální zručnosti navzdory vysoce ceněné švýcarské preciznosti. Nepříznivou situaci na trhu jsme proměnili v nástroj kreativity, přizpůsobujíce svůj návrh nepřesnosti spojené s manuální zručností na stavbě. Obtíží při provedení našeho projektu byla definice detailů a antidetailů. Zdi, otvory a podlaží nejsou nikdy zarovnány. Dokonce ani cihelné opláštění není rovinně celistvé a v místech průřezů oken z něj cihly ční. V podstatě neexistuje ani přímá závislost mezi interiérem a exteriérem. Fasáda může být považována za naprosto doplňkovou, pitoreskní a rozmařilou ve způsobu, jakým dekoruje budovu. Cihelná síť zakrývá nebo odhaluje, co leží pod ní bez ohledu, zda je to omítnutá zeď nebo okno.

Cà Bugnada projekt procházející racionálním vývojem a logickými procesy může vyústit v neformální, nepředvídatelný a úžasný výsledek.

  • Autoři: Francesco Buzzi
  • Ateliér: Buzzi Studio di Architettura
  • Země: Švýcarsko
  • Realizace: 2015
  • Město: Locarno
  • Ulice, číslo: Via Bartolomeo Varenna 75
  • PSČ: 6600
  • Datum projektu: 2006
  • Realizace: 2015
  • Foto ©: //www.earch.cz/cs/marcelo-villada-ortiz" target="_blank">Marcelo Villada Ortiz
Generální partner
Hlavní partneři