casa Sabadell

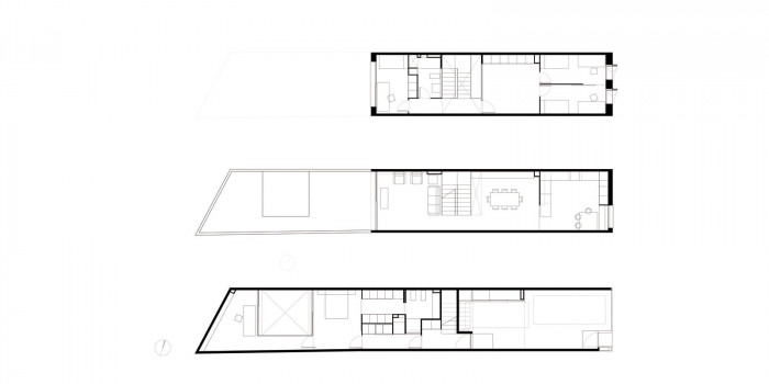
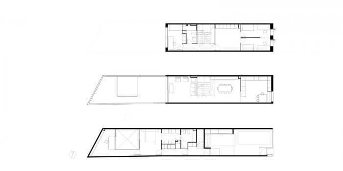
Dům pro pár se třemi dětmi bez nestandardních potřeb se nachází v typické dělnické čtvrti z první poloviny 20. století v blízkosti historického centra města. To je charakteristické ortogonálními ulicemi a úzkými parcelami – tento konkrétní pozemek má šířku 4 metry. Bydlení v této lokalitě je často charakterizováno nedostatkem přirozeného světla, problematickým větráním a špatnou návazností vnitřních prostor. Tomu se architekti snažili zabránit.
Jednotlivé prostory jsou rozděleny poněkud netradičně po patrech. V přízemí je pro zvýšení prosvětlení použit dvorek, přirozenou ventilaci i osvětlení zajišťuje schodiště se střešními světlíky.
Architekti využili toho, že děti investorů již byli starší (nejmladšímu bylo 10 let) a rozhodli se oddělit ložnici rodičů od dětských pokojů třemi patry. Autoři domu se rozhodli nezastavět 100 procent pozemku, ale část využili pro vnitřní dvorek, jež obklopuje právě ložnici rodičů a pracovnu. Na stejném patře se nachází ještě vstup do domu a garáž- vestibul. Obytné prostory domu jsou umístěné v prvním patře a mají k dispozici také terasu, jež je umístěná nad přízemní ložnicí. Celé první patro tvoří jeden prostor rozdělený pouze minimálními zásahy. Uprostřed celého půdorysu se nachází schodišťová šachta, jež přivádí denní světlo i do středu dispozice.
Pokoje tří dětí se nachází v posledním patře. Schodiště tvoří střed celého domu. Je navrženo s velikým citem pro detail nejen kvůli přivedení světla, ale také proto, aby nevytvářelo prostorovou bariéru v obytném patře domu.
Fasáda reflektuje kompoziční výhody historických fasád v okolí. Dominují jí okna orientovaná na výšku s plnými okenicemi. Ve chvíli, kdy jsou okenice zavřené, dům představuje tichý objekt, definovaný pouze barevnými vstupními dveřmi.
- Autoři: David Lorente Ibánez, Josep Ricart Ulldemolins, Xavier Ros Majó, Roger Tudó Galí
- Ateliér: H ARQUITECTES
- Spolupráce: Anna Bullich, Marta Casas, Estel Teixidor
- Země: Španělsko
- Zodpovědný projektant: TT_22
- Město: Sabadell
- Suma: 2 500 000.00
- Měna: EUR
- Datum projektu: 2003
- Realizace: 2005
- Užitná plocha: 260.00m2
-
Poznámka:
Fotograf:
Starp Estudi / www.starpestudi.com
Pedro Antonio Pérez / www.pedroantonioperez.com
Související architekti
Související ateliéry a firmy
Mohlo by vás zajímat















