Chata v Zadní Telnici
Stavební parcela se nachází v území obce Zadní Telnice, v lokalitě zastavěné rekreačními objekty. Rekreační chaty stojí na jižní stráni hlubokého údolí, zatím co na severních svazích jsou lyžařské vleky a sjezdovky.
Na pozemku o celkové rozloze 317 m2 stála chatka , přibližně ze šedesátých let dvacátého století. Původní objekt měl jedno podzemní podlaží, jedno nadzemní podlaží a podkroví. Podzemní část byla zděná, částečně zapuštěná do terénu, na jižní straně podlaha navazovala na terén a byl zde situován hlavní vstup do objektu. Nadzemní podlaží a podkroví byly provedeny jako dřevostavba, opláštěná prkny. Na stavu konstrukcí byla patrná nedostatečná údržba v posledních několika letech, stav zděné část byl uspokojivý.
Stavebník požadoval najít řešení rekreačního objektu k celoročnímu užívaní, tak aby mohl sloužit pro dlouhodobý pobyt celé rodiny s malými dětmi, samozřejmě s nejmenšími možnými náklady.
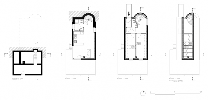
Návrh architektonického řešení vyšel z nepřekročitelného předpokladu, že stavba bude využívat suterénní část stávající rekreační chaty, čímž se sníží nutný objem zemních prací a vyloučí práce bourací. Objem nově přistavované části je oproti původnímu objektu navýšen jen v rozsahu nezbytně nutném pro současné nároky. Celková zastavěná plocha objektu je 62,2 m2.
Ve stávajícím suterénu jsou technické a skladovací prostory, o podlaží výš – v přízemí – je hlavní obytný prostor s kuchyní a koupelnou s WC – celkem 42,2 m2 zastavěné plochy. O patro výš je vstup z horní příjezdové cesty, dvě ložnice a toaleta. Ložnice pokračují do horních prostor v šikmině střechy, kde jsou umístěny plochy na spaní. Do prostoru trojúhelníkového průřezu pokračuje i točité schodiště, které zpřístupňuje malou plochu nad vstupem a chodbu, která lze využít pro ubytování hostů.
Navržená stavba je subtilní, převážně dřevěné konstrukce, zasazená do svahu a opatřená sedlovou střechou se štítem v jižním průčelí. Zvolená stavební technologie byla vybrána s ohledem na dostupnost materiálu a jednodušší dopravu, skladování a zpracování. Materiály pro povrchové úpravy jsou odolné pro dosažení co nejvyšší životnosti v náročném horském prostředí.
Typ objektu se sedlovou střechou je inovován splynutím povrchu obvodových stěn a střechy z falcovaného plechu, vyloučením okapů a říms. Střecha přechází ve stěnu měkce, zakulacením, stejně je řešen i hřeben střechy, pod kterým je vedena roura přes kterou je obvodový plášť odvětrán do štítu domu.
Na vyspravenou konstrukci podzemního podlaží byla provedena železobetonová stropní deska a doplněny hydroizolace včetně obvodové drenáže podél základů. Při severní straně stávajícího objektu jsou provedeny základové pasy pro přístavbu, zasahující mimo stávající půdorys. Nově provedené nadzemní stěny jsou navrženy jako dřevěná rámová konstrukce se sloupky průřezu 80/160, osazenými na spodní prahy stejného průřezu. Vnitřní schodiště je ocelové, točité. Z vnitřní strany jsou stěny obloženy sádrokartonem, z vnější strany desky OSB jako bednění, na které je falcovaný titanzinkový plech.
Přístupový chodník od cesty při severní straně pozemku k hlavnímu vchodu, stejně jako opěrná zídka vyrovnávající terénní rozdíl, je z místního kamene vytěženého při kopání základů.
- Autoři: Svatopluk Sládeček, Lucie Surá
- Ateliér: studio New Work
- Země: Česká republika
- Město: Zadní Telnice
- Ulice, číslo: Telnice 22
- PSČ: 403 38
- Datum projektu: 2011
- Realizace: 2014
- Zastavěná plocha: 62.20m2
- Plocha pozemku: 317.00m2
- Poznámka: Foto © Daniela Dostálková
Související projekty
Související architekti
Související ateliéry a firmy
Mohlo by vás zajímat