Chicago Grill
Hlavním úkolem bylo navrhnout interiér typického amerického burger baru. Klient pochází z Chicaga, ale před několika lety se přestěhoval do Liberce. Prostor se nachází v krásné Art Deco budově z 19. století a byl původně používán jako předváděcí místnost nedaleké továrny na klavíry. Základním motivem projektu bylo navržení soudobého interiéru při zachování a podpoření původních kvalit a kouzla objektu.
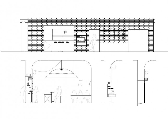
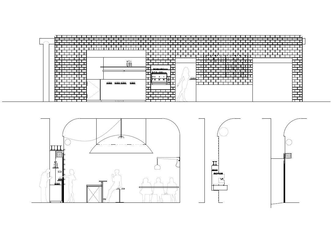
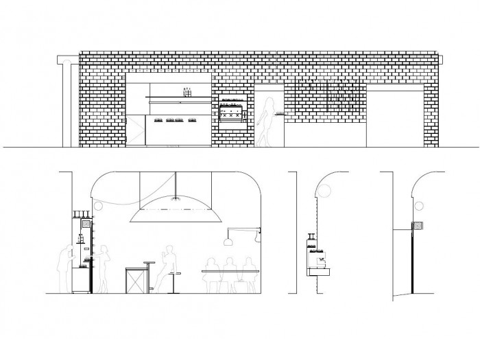
Rozhodli jsme se zachovat všechny omítky dekorací i detaily oken a sjednotit je do jedné barvy. Jako kontrast k tomu stojí hrubý bar opláštěný zrezavělým vlnitým plechem. Zadní stěna za barem je pak obložená čedičovým obkladem a výraznými barevnými roletami. Podlaha je z leštěného betonu. Tato volba materiálů nenásilně podporuje průmyslovou atmosféru amerického Chicaga.
Vysoký strop restaurace nenapomáhal akustice prostoru, a tak jsme se rozhodli výšku interiéru narušit velkými laminátovými lampami. Stejný materiál se nachází i v zádveří, kterému dává laminát specifickou atmosféru.
Po třech měsících od zahájení provozu restaurace můžeme říci, že jsme vytvořili vřelé a přátelské místo. Důkazem budiž také fakt, že Chicago je neustále plné lidí, kteří se těší z genia loci lahodných amerických hamburgerů.
Redakce EARCH: Ještě jsme si tentokrát nemohli odpustit i anglický popis celého projektu. To prostě byla škoda překládat:
Ryan Nelson, a man born in Chicago USA, worked here and there, moved around the world, ended up in this little hole - the city of Liberec. City that is still not sure whether it´s more German or Czech.
He started modest business selling what he knew best. The business was too small to satisfy the great man´s ego. He found a space in 19th century building build as showroom for piano factory. In present owned by hard to talk Italian. It was not cheap neither easy but he got the keys.
Next step, Ryan is looking for an architect. He found an obscure office in the top floor of 1920´s modernist tower. He entered a shabby office where three architects sit around their tables. Those three call themselves Mjölk - Swedish word for milk, the origin of a name is a mystery to Ryan. One of three architects who takes care of Ryan is a Ginger.
Ryan: Uh, I want you to create a space where guys like you can do their business in comfort and feast after a good deal is done. Can you do it?
Ginger: When you´re good at something never do it for free.
Ryan: The most important thing in business is honesty, integrity, hardwork... family... never forgetting where we came from.
Ginger: What is it that you are selling man?
Ryan: I am like any other man. All I do is supply a demand. I own my company. And my company sells a product that's better than the competition at a price that's lower than the competition.
Ginger: We can do that for ya.
The works has started, it was a hard birth. Everything took a long time. Ginger was obsessed with lights and metals and insisted on every piece he designed. Ryan found a contractor to do the hard work and build everything.
The contractor was tough enough man, but in this project, it was a different story. He tended to cry and doubt his faith. There was a meeting on the construction site two weeks before opening.
Contractor: We got into all the trouble you could ever imagine.
Ginger: When you plan something well there’s no need to rush.
Ryan: Uh, man you´ll end up in hell. What is that you got on?
Ginger: What? This?
Ryan: Yeah, that.
Ginger: This is a very, very, very nice suit.
Ryan: That's a very, very, very nice suit, huh?
Ginger: Yeah.
Ryan: That's a clown suit.
Ginger: Never let anyone know what you are thinking.
Ryan to ginger: See, ya are what ya are in this world. That's either one of two things: Either you're somebody, or you ain't nobody.
Ryan to contractor: Can we ever finish it in time?
Contractor: Don’t you believe to your own damn legend? Of course we can.
Ryan to both: Uh, If not I am doomed, and you two you go down with me!
Ginger: Nobody panics when things go “according to plan”. Even if the plan is horrifying
Ryan: Uh, Uh!
At the entrance door in the hour of opening:
Ryan´s wife: You're Ryan and this is your place?
Ryan: That's right. I'm Ryan and this is my place.
Ryan´s wife: Why is it called Chicago? Why don't you call it Ryan´s?
Ryan: When you own something, you can call it what you want.
(Gingers voice from inside to audience)
Ladies and gentlemen, let us proudly introduce you to the great “Chicago grill”
(quotes used in dialogs: American gangster, Peaky Blinders, Godfather, Batman Dark Knight, Lawless)
Mohlo by vás zajímat