David Prudík architekti - ZŠ Oslavice

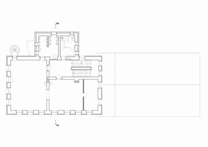
Objekt sestává z historické budovy školy z počátku 20. století a dostavby mateřské školy z roku 2014. Hlavní páteřní komunikace, která prochází celou obcí Oslavice vede podél jihozápadní strany pozemků, kam se obrací i hlavní fasáda školy. 

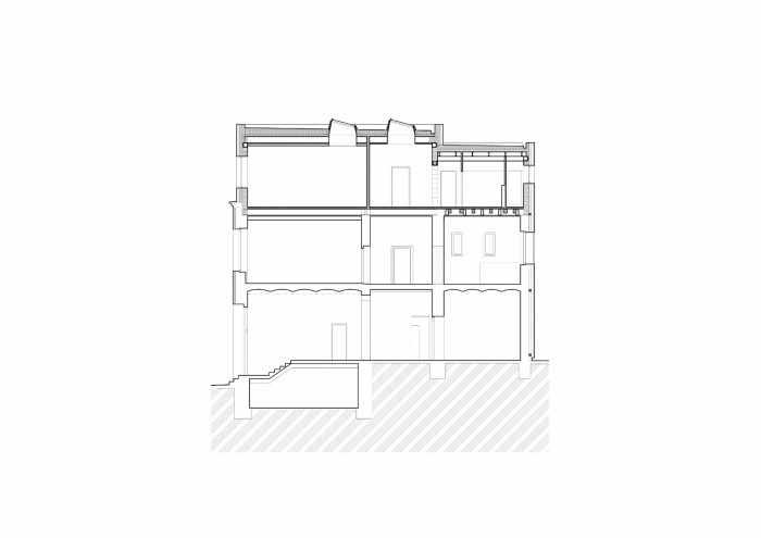
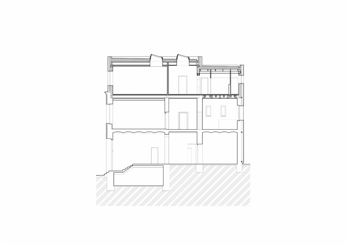
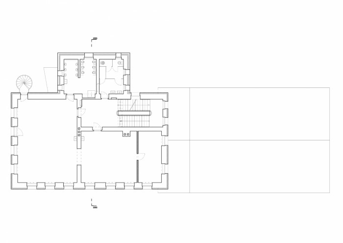
Historický objekt školy byl dvoupodlažní, částečně podsklepený se sedlovou střechou. Původní hlavní vstup z jihozápadu již nesloužil jako vstup do školy, ale byl ponechán, nový hlavní vstup je nyní ze severovýchodu. Všechny výplně otvorů jsou nepůvodní plastové s dvojitým zasklením. 

Z jihovýchodní strany je k objektu dostavěna novostavba mateřské školy; jednopodlažní, nepodsklepená, se sedlovou střechou s plechovou krytinou. Všechny výplně otvorů jsou taktéž plastové s dvojitým zasklením. 

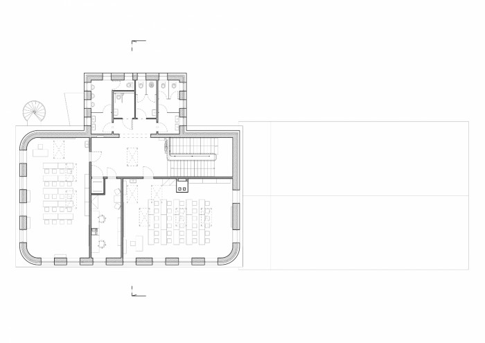
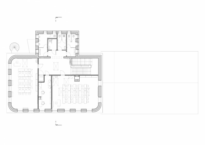
Na zahradě školy již bylo vybudováno dětské hřiště a osazena vzduchová trampolína. Obec požadovala rozšíření mateřské školy do 2.NP historického objektu školy a přesunutí stávajících dvou tříd základní školy z 2.NP do 3.NP. 

Z důvodu získání dostatečného prostoru na požadovaný počet žáků základní školy bylo navrženo odstranění sedlové střechy a vybudování plnohodnotného 3.NP. Nástavba začíná nad původní římsou, za niž částečně ustupuje. Od původní budovy je oddělena a opticky odlehčena svislým laťovým dřevěným obložením z tepelně upraveného dřeva a zaoblenými rohy. 

Díky tomuto řešení dochází k přeřešení odvodu dešťové vody a odstranění rušivých okapů a svodů na nejexponovanějších fasádách. Nová střecha je plochá, sklonitá k severovýchodu, schovaná za atikou. Rastr oken v nástavbě navazuje na rozmístění oken historického objektu. K dosažení požadované prosvětlenosti tříd je střecha poseta střešními okny.

Severovýchodní část objektu, kde je umístěn nový hlavní vstup se šatnami a sociální zázemí je opticky scelena zahalením do dřevěného laťového obkladu. Tento obklad probíhá nepřerušeně po celé výšce budovy i přes okenní otvory. 

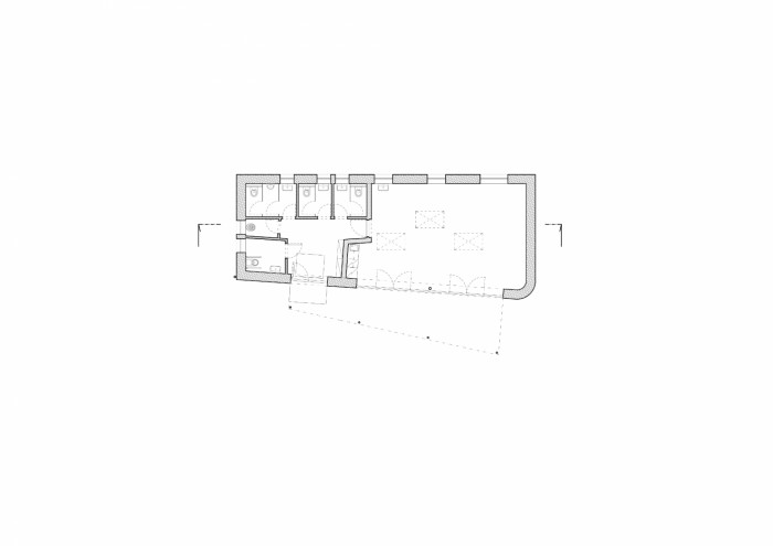
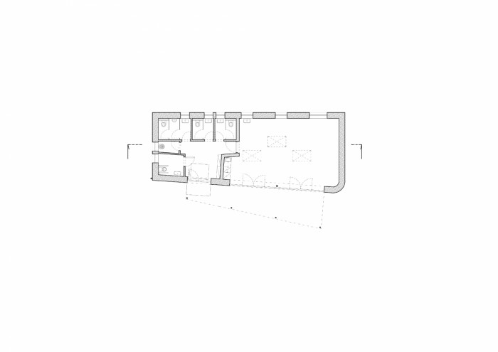
Ve dvoře byl odstraněn objekt skladu a na jeho místě je postavena nová polytechnická učebna navržená jako jednopodlažní zděný objekt s pultovou střechou. K dosažení požadované prosvětlenosti jsou do střechy umístěna tři střešní okna. Vstup do objektu je navržen ze školního dvora z jižní strany. Z učebny lze vstoupit prosklenou sestavou francouzských oken na krytou terasu. 

Fasády budovy jsou provedeny v probarvené bílé omítce. Klempířské práce z falcovaného svitkového TiZn. plechu. Okna školy dřevěná; okna polytechnické učebny hliníková.

  • Autoři: David Prudík
  • Spolupráce: Terezie Havlíková, Markéta Čermáková
  • Země: Česká republika
  • Realizace: 2020
  • Stavebník: Obec Oslavice
  • Datum projektu: 2016
  • Realizace: 2020
  • dětské hřiště, zahrada: M&P architekti Markéta a Petr Veličkovi
Generální partner
Hlavní partneři