DEBYT - Přestavba mlýna ""Papírna""

Idea projektu / klíčové myšlenky
V objektu bývalého mlýna, jehož západní část slouží k trvalému bydlení již od devadesátých let, byly architektovi a jeho rodině nabídnuty východně orientované prostory. Nově vzniklá velkorysá bytová jednotka zachovává industriální charakter objektu a má výrazně vertikální členění s otevřenými prostory na každém patře, které jsou propojeny shora osvětleným schodištěm se zobytňujícími prvky. Hlavními novotvary východní fasády jsou velká okna a pobytová terasa s kovovým můstkem zakrývající vstupní část dvorečku s espritem sala terreny.
Bydlení architekta ve mlýně
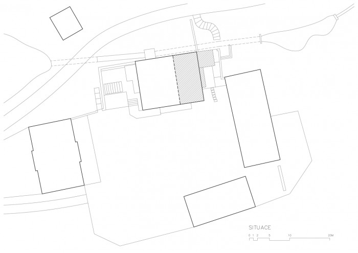
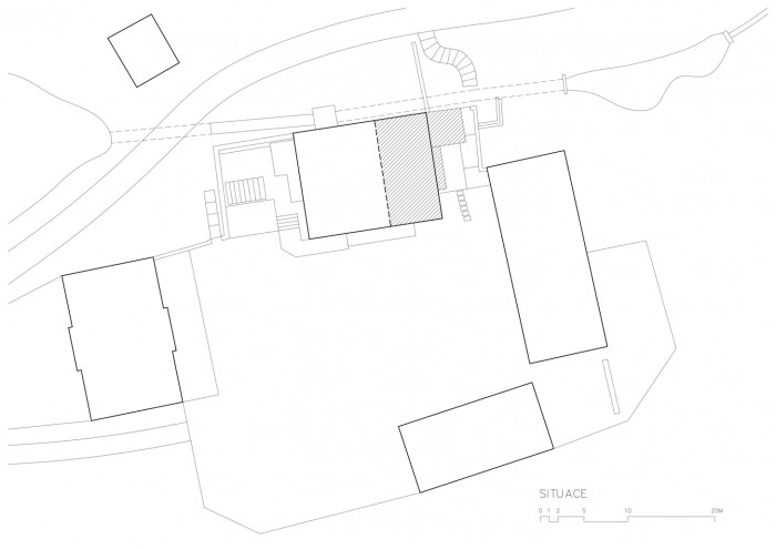
Výchozí situací pro vlastní bydlení architekta byl již částečně zrekonstruovaný objekt bývalého mlýna, prapůvodně papírny, nacházející se na území CHKO Křivoklátsko, v údolí Zbirožského potoka. Možnost zobytnění menší poloviny objektu byla podmíněna respektováním vnějšího charakteru dříve upravené části.
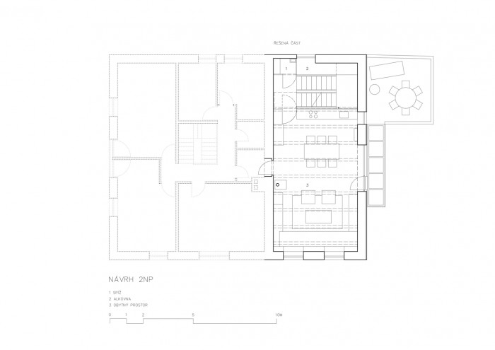
Samotná mlýnice funguje zevnitř v podstatě jako dvojdomek. Vnitřní svislá dělící zeď, která byla až do přístavby ve 40. letech minulého století zdí štítovou, odděluje provoz nové bytové jednotky od té původní, která slouží k bydlení rodičů architektovy ženy. Z praktických důvodů jsou obě jednotky propojeny v suterénu a ve druhém podlaží, neděje se tak však na úkor soukromí.
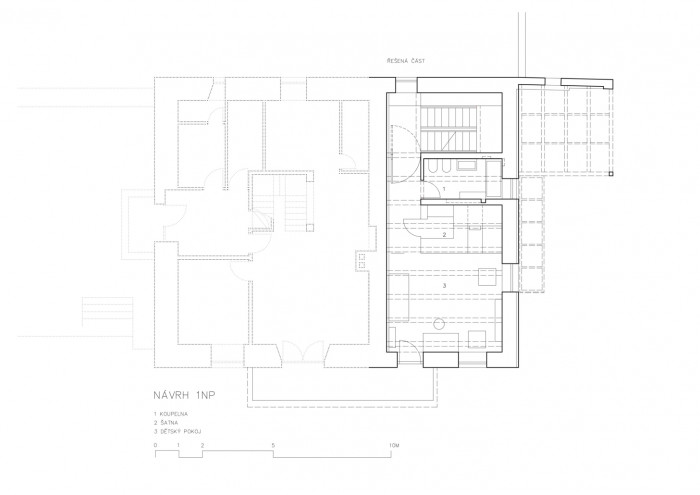
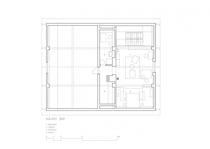
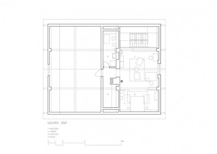
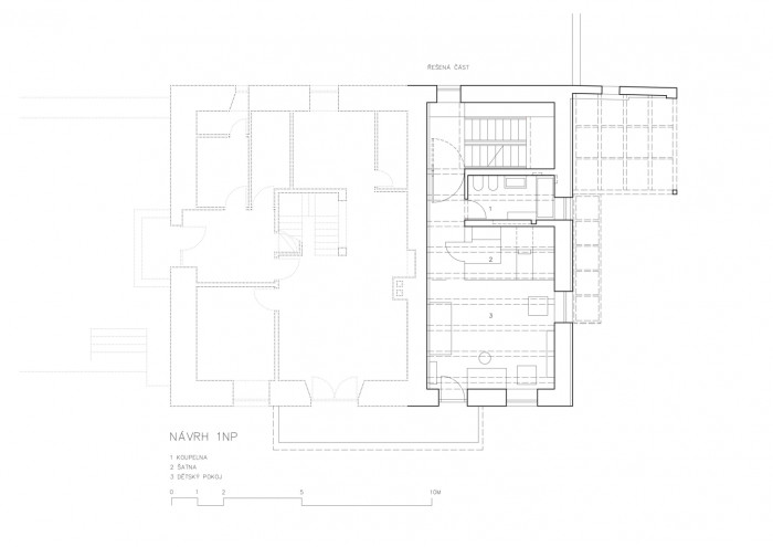
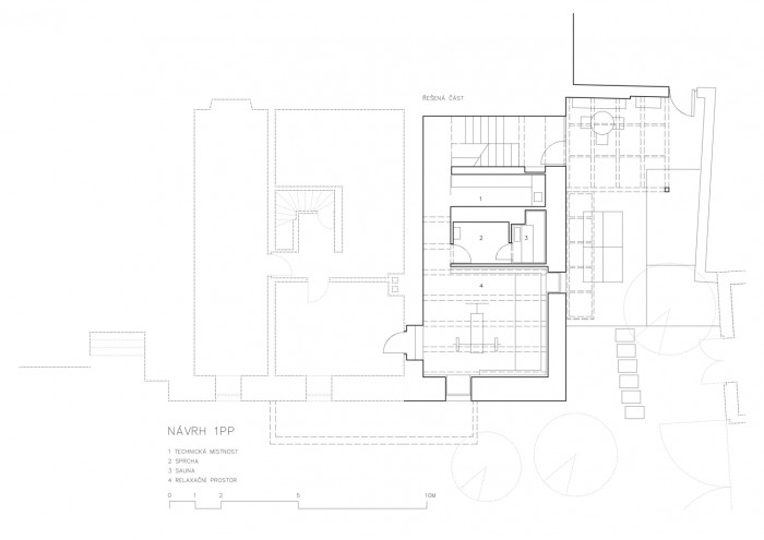
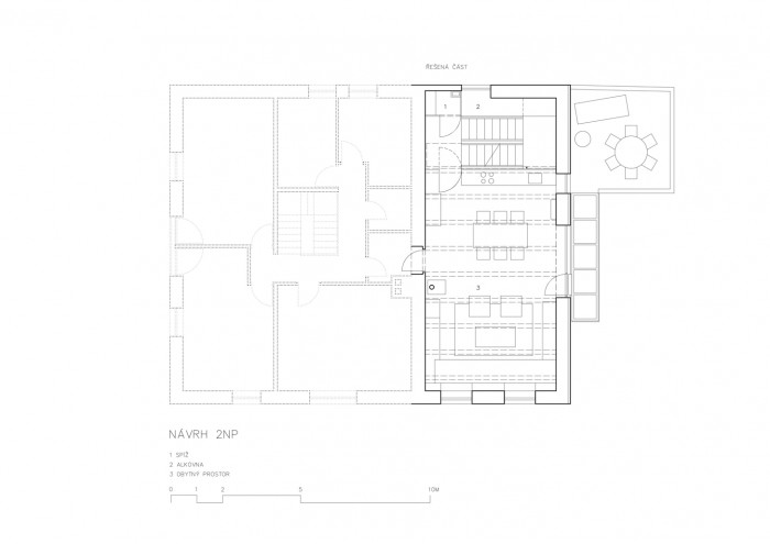
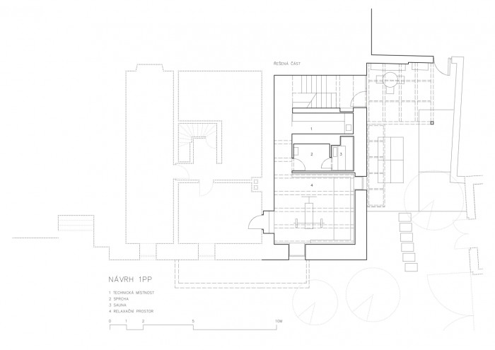
Od počátku byl hlavní záměr navázat na industriální charakter objektu, a to hlavně zachováním velkých otevřených prostor s původními trámovými stropy v každém patře. Jednotlivá podlaží plní funkci dětského pokoje se šatnou a koupelnou ve zvýšeném přízemí, obývacího pokoje s kuchyní v prvním patře a ložnice s pracovnou a koupelnou v podkroví. Ve sklepě je ateliér, sauna a technická místnost.
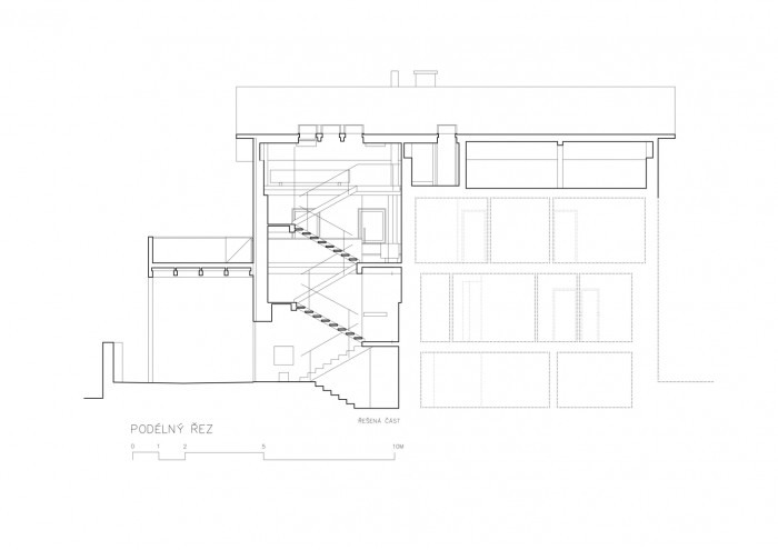
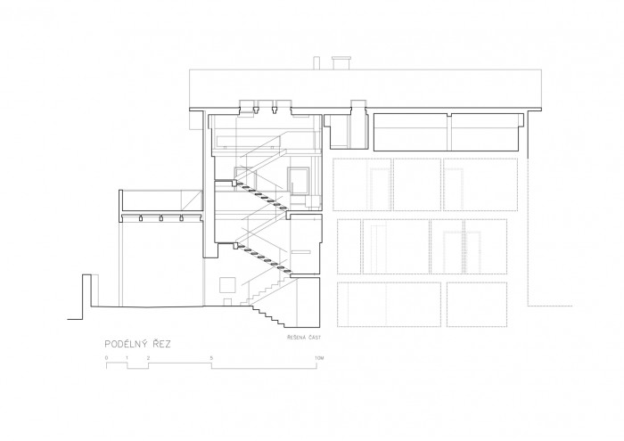
Prostor určený k rekonstrukci připomíná spíše věž než rodinný dům. Vzhledem k tomuto výraznému výškovému uspořádání je zásadním jednotícím prvkem celého interiéru shora osvětlené schodiště.
To je umístěné podél severní fasády domu a směrem odspoda nahoru stále prosvětlenější a více propojené s jednotlivými etážemi. V přízemí je schodiště od obytných prostor zcela odděleno masivní zdí, v dalším patře je prostor více propojen díky prosklené stěně a v posledním patře schodiště přirozeně přechází do podkrovní pracovny, která tak působí jako otevřená paluba. Motivem je cesta za světlem a maximální zobytnění schodiště.
Vnější úpravy jsou zaměřeny hlavně na východní štítovou fasádu, která byla výrazně proměněna. Přibyla velká okna a pobytová terasa na úrovni kuchyně. Terasa je přístupná přes spojovací ocelovou lávku a je z ní hezký výhled na malou skalku a otevřené údolí Zbirožského potoka. Vybudování terasy zároveň umožnilo zakrytí předprostoru vstupu, který provozně funguje jako tradiční “zápraží” u venkovských domů. Vzhledem ke zvýšenému přízemí je terasa poměrně vysoko nad dvorkem a její měřítko v pohledu z hlavního dvora evokuje otevřenou salu terrenu, z prostoru mimo usedlost zase bezpečnou obranou baštu. Obě polohy této dvojznačné formy odpovídají vysoké a objemné budově. V severní fasádě vznikly dva nové menší otvory prosvětlující schodiště, jižní fasáda byla na přání rodičů až na malé zvýšení parapetu jednoho okna zachována.
Návrh zachoval industriální a zároveň venkovský charakter stavby i interiéru. Použito bylo hlavně dřevo, kov, kletované štukové omítky a cementová stěrka. Stavba je řešena v mnoha ohledech ekologicky s důrazem na maximální využití toho, co již existovalo. Dřevo a trámy z původních konstrukcí, ale i různě nashromážděné řezivo, které se na usedlosti léta uchovávalo, jsou použity nejen na stavební prvky, ale i v interiéru. Z recyklovaného dřeva je například terasa, nebo nábytek v koupelně, a mnoho dalšího.
Až na pár výjimek, jako je kuchyňská linka, je interiér vybaven převážně nábytkem z 50. až 80. let 20. století, nebo nábytkem originálním z přírodních materiálů. Rukopis autora a zvláštní pozornost je věnována i dnes často opomíjeným bytovým textiliím. Obytnému prostoru dominuje autorský koberec, jehož podoba je společným dílem textilní výtvarnice a architektovy ženy . Barevnost tkaného koberce zohledňuje i čalounění vybrané pro sezení, integrované s knihovnou. To kopíruje celou jižní stěnu obytného prostoru a je velkoryse navrženo tak, aby se zde mohly potkat všechny generace žijící v usedlosti, nebo přenocovat přátelé rodiny. Výrazná je i unikátní tapiserie v prostoru nad schodištěm. Nábytek a svítidla ze zlaté éry českého designu v pracovně doplňuje koberec od Antonína Kybala. Důležitou roli v interiéru hrají také obrazy od Viléma Baleje, architektova kamaráda ze studentských let.
- Autoři: Tomáš Petrášek
- Ateliér: DEBYT
- Země: Česká republika
- Město: Ostrovec - Lhotka
- Realizace: 2019
- Užitná plocha: 219.00m2
- Zahradní architektura: Tomáš Petrášek, Simona Rühmkorf, Vráťa Brabenec
Související projekty
Související architekti
Související ateliéry a firmy
Mohlo by vás zajímat




































